4,536,019 Ft
11,570 €
- 2,043m²








Ságvári raktárcsarnok KIADÓ!
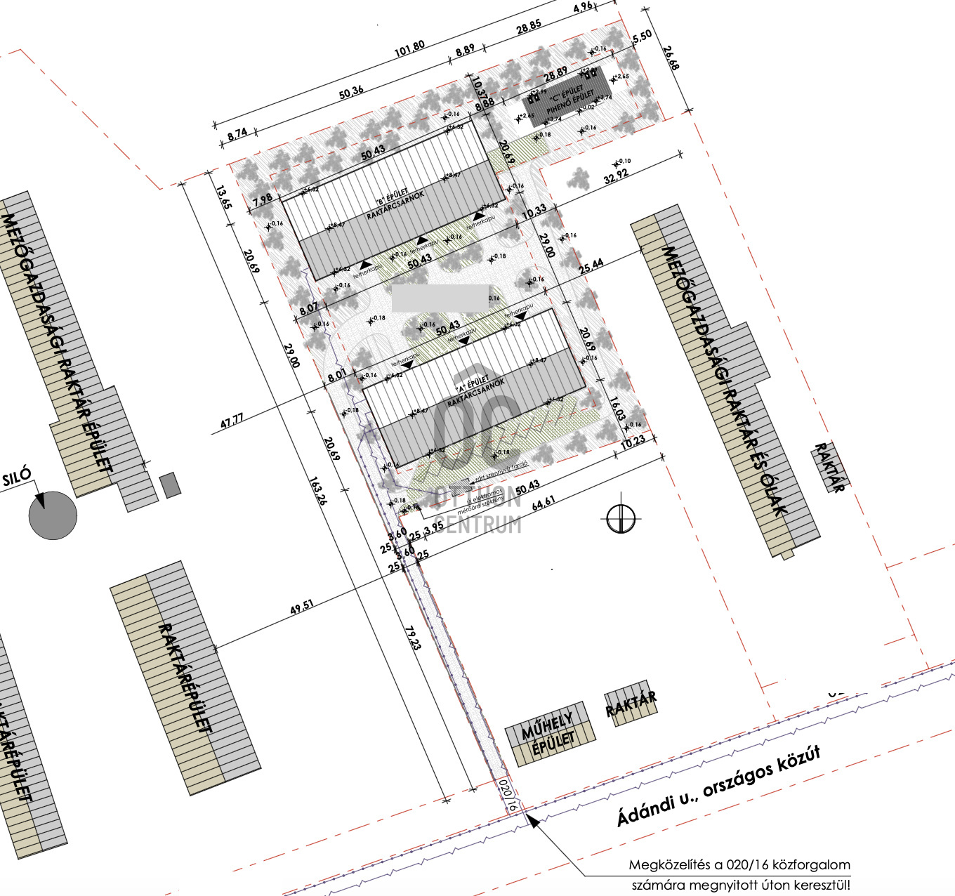
Ságváron, Siófokhoz és az M7 autópályához mindössze 7 km-re, 2x1.000 nm-es csarnok kiadó egy 7.723 m²-es telken!
- Méret: 2 x 1.000 m²-es csarnok
- belmagasság: 6-7 m
- Falvastagság: 12 cm
- Szintbeli kapuk mérete: 3x3m, és 2 db, 4,5 x 4,50m
- Villamos hálózat: 3x80 A
- Napelem: 50 mW teljesítmény
- Egyik csarnokban: 100 m² iroda, öltözők, zuhanyzók, külön női és férfi WC,
- Az ingatlan specialitása az övezeti besorolása: Kü-Hull, azaz hulladékkezelő terület (a területen a hulladékkezeléshez, feldolgozáshoz, időszakos tároláshoz szükséges épületek, építmények, valamint azok kiszolgáló létesítményei helyezhetők el),
- Bérleti díj:
- raktárnál 5,5 €/nm,
- irodánál 8,9 €/nm.
- Üzemeltetési díj: 0,3€/nm.
Bármi kérdéssel, vagy a bejárással kapcsolatban állok rendelkezésükre!
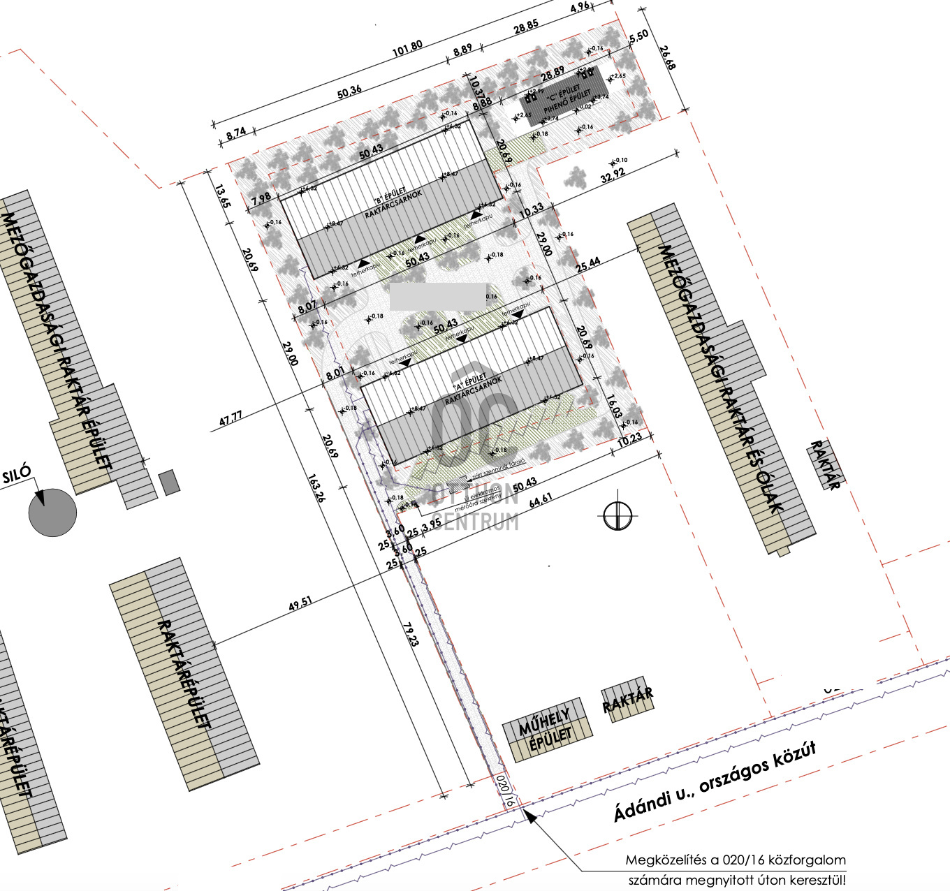
- Méret: 2 x 1.000 m²-es csarnok
- belmagasság: 6-7 m
- Falvastagság: 12 cm
- Szintbeli kapuk mérete: 3x3m, és 2 db, 4,5 x 4,50m
- Villamos hálózat: 3x80 A
- Napelem: 50 mW teljesítmény
- Egyik csarnokban: 100 m² iroda, öltözők, zuhanyzók, külön női és férfi WC,
- Az ingatlan specialitása az övezeti besorolása: Kü-Hull, azaz hulladékkezelő terület (a területen a hulladékkezeléshez, feldolgozáshoz, időszakos tároláshoz szükséges épületek, építmények, valamint azok kiszolgáló létesítményei helyezhetők el),
- Bérleti díj:
- raktárnál 5,5 €/nm,
- irodánál 8,9 €/nm.
- Üzemeltetési díj: 0,3€/nm.
Bármi kérdéssel, vagy a bejárással kapcsolatban állok rendelkezésükre!
Registration Number
UZ018555
Property Details
Sales
for rent
Legal Status
new
Character
commercial
Type of Business Property
entire building
Construction Method
panel
Net Size
2,043 m²
Plot Size
7,723 m²
Above-Ground Net Size
2,043 m²
Ceiling Height
680 cm
Condition
Excellent
Condition of Facade
Excellent
Year of Construction
2025
Water
Available
Gas
On the street
Electricity
Available
Sewer
Available
Possible Functions
retail, office, office and showroom or shop, office and warehouse, showroom and service or warehouse, industrial hall or warehouse, logistics center, agricultural site, other
Accessibility
Entrance from busy main road
Utilization
vacant

Kőrösi Róbert
Credit Expert