159,990,000 Ft
412,000 €
- 164m²
- 5 Rooms





XVIII. kerület Almáskert részén földszintes családi ház eladó!
Eladó újépítésű családi ház Budapest XVIII. kerület Almáskert csendes mellékutcában!
Az ingatlan egy hátsó telekrészen helyezkedik el, amit szolgalmi úton lehet megközlelíteni.
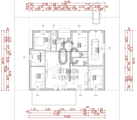
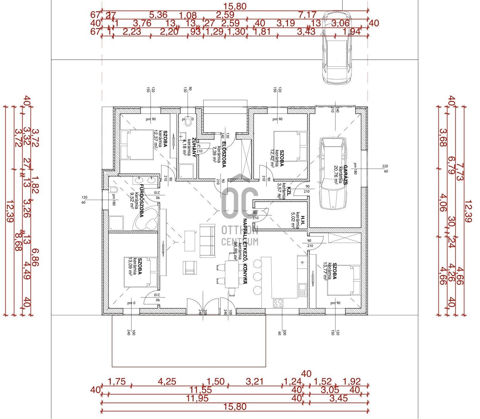
164 nm hasznos alapterületű földszíntes, amerikai konyhás nappali, 4 hálós, 2 fürdőszoba-wc, háztartási helyiség, terasz és saját 660m2 kert!
Helyiségei:
-szoba: 12,37-m2
-szoba:13,09-m2
-szoba:12,42-m2
-szoba:13,77m2
-konyh- ékező-nappali együtt: 57 m2
-kádas fürdő: 9,52m2
-zuhanyzós fűrdő:4,2m2
- háztartási helyiség :5m2
-előszoba:7,39 m2
- garázs 20,76m2
Műszaki tartalom (részlet)
- falazata 30-as Leier 10 cm-es grafitos szigeteléssel, lábazat 15 cm XPS szigetelés
- válaszfalak 10 cm-es Leier tégla
- födémen 20 cm-es kőzetgyapot szigeteléssel
- hőszivattyú padlófűtéssel
- 3 rétegű külső nyílászárók
A fűtése hőszivattyús, padlófűtés az egész házban
-választható vagy a nappaliban 3,5 kw-os klíma, vagy klíma kiállás kiépítése minden szobában!
-elektromos kapu,
-napelem előkészítés,
-komplett kamerarendszer riasztóval beépítve
Ami vételár részét képezi:
Meleg burkolat: 5000ft/m2 amely tartalmazza a filc alátétet és a szegélyt is.
Hideg burkolat: 5000ft/m2 amely tartalmazza a fugát és a burkolat váltókat is.
Belső tartozékok, szaniter árak:
-beltéri ajtó kilinccsel 80.000 Ft/db
-kád tartozékaival 80.000 Ft/db
-csap 20.000 Ft/db
-mosdó 20.000 Ft/db
-plusz víz csatorna kiállás kérésre 50.000 Ft/db
-villanykiállás fejegységenként 30.000 Ft/db
-Kerti csap ára kompletten szerelve: 100.000 Ft/db
szaniterek belső nyílászárók készültségi foktól függően választhatók.
Megbeszélés és egyeztetés alapján kérhetők plusz extrák és változtatások!
Az ingatlan osztatlan közös ügyvédi megosztással lesz!
A lakás az összes jelenleg futó támogatásra jogosult!
Az ingatlan 30% önerővel lefoglalható!
Várható átadás 2026.III. negyedév!
Amiben segítünk :független Hitelszakértő, ügyvédi háttér!!
Hívjon a hét bármelyik napján további információért!
Az ingatlan egy hátsó telekrészen helyezkedik el, amit szolgalmi úton lehet megközlelíteni.
164 nm hasznos alapterületű földszíntes, amerikai konyhás nappali, 4 hálós, 2 fürdőszoba-wc, háztartási helyiség, terasz és saját 660m2 kert!
Helyiségei:
-szoba: 12,37-m2
-szoba:13,09-m2
-szoba:12,42-m2
-szoba:13,77m2
-konyh- ékező-nappali együtt: 57 m2
-kádas fürdő: 9,52m2
-zuhanyzós fűrdő:4,2m2
- háztartási helyiség :5m2
-előszoba:7,39 m2
- garázs 20,76m2
Műszaki tartalom (részlet)
- falazata 30-as Leier 10 cm-es grafitos szigeteléssel, lábazat 15 cm XPS szigetelés
- válaszfalak 10 cm-es Leier tégla
- födémen 20 cm-es kőzetgyapot szigeteléssel
- hőszivattyú padlófűtéssel
- 3 rétegű külső nyílászárók
A fűtése hőszivattyús, padlófűtés az egész házban
-választható vagy a nappaliban 3,5 kw-os klíma, vagy klíma kiállás kiépítése minden szobában!
-elektromos kapu,
-napelem előkészítés,
-komplett kamerarendszer riasztóval beépítve
Ami vételár részét képezi:
Meleg burkolat: 5000ft/m2 amely tartalmazza a filc alátétet és a szegélyt is.
Hideg burkolat: 5000ft/m2 amely tartalmazza a fugát és a burkolat váltókat is.
Belső tartozékok, szaniter árak:
-beltéri ajtó kilinccsel 80.000 Ft/db
-kád tartozékaival 80.000 Ft/db
-csap 20.000 Ft/db
-mosdó 20.000 Ft/db
-plusz víz csatorna kiállás kérésre 50.000 Ft/db
-villanykiállás fejegységenként 30.000 Ft/db
-Kerti csap ára kompletten szerelve: 100.000 Ft/db
szaniterek belső nyílászárók készültségi foktól függően választhatók.
Megbeszélés és egyeztetés alapján kérhetők plusz extrák és változtatások!
Az ingatlan osztatlan közös ügyvédi megosztással lesz!
A lakás az összes jelenleg futó támogatásra jogosult!
Az ingatlan 30% önerővel lefoglalható!
Várható átadás 2026.III. negyedév!
Amiben segítünk :független Hitelszakértő, ügyvédi háttér!!
Hívjon a hét bármelyik napján további információért!
Registration Number
U0048709
Property Details
Sales
for sale
Legal Status
new
Character
house
Construction Method
brick
Net Size
164 m²
Gross Size
164 m²
Plot Size
660 m²
Heating
heat pump
Ceiling Height
270 cm
Orientation
South-West
Condition
Excellent
Condition of Facade
Excellent
Year of Construction
2025
Number of Bathrooms
2
Garage
Included in the price
Garage Spaces
1
Water
Available
Gas
On the street
Electricity
Available
Sewer
Available
Rooms
room
12.37 m²
room
13.09 m²
room
12.42 m²
room
13.77 m²
open-plan kitchen and living room
56.89 m²
utility room
5.05 m²
shower
4.18 m²
bathroom-toilet
9.52 m²