5,600,000 Ft
14,810 €
- 331m²
- 13 Rooms
KIADÓ, új, családi ház, 4 különálló lakással, teremgarázzsal Budapest II. kerületében
Kivételes lehetőség, akik egy új, modern otthonra vágynak Budapest egyik legfelkapottabb környékén!
Nemcsak magánszemélyeknek, hanem vállalkozások számára is vonzó lehetőségeket rejt a Vérhalom városrészben található ingatlanunk, mely impozáns, 331 négyzetméteres ház, egy 1215 négyzetméteres telken. A 13 szobával és 6 fürdőszobával rendelkező ingatlan, mely négy különálló lakásban található tökéletes választás lehet, irodai, bemutatótermi vagy akár szálláshely céljára is.
Az ingatlan felszereltsége magában foglalja a teremgarázst, a liftet, motoros redőnyöket, biztonsági ajtót, videókaputelefont, riasztórendszert, valamint a hőszivattyús fűtést, amely környezetbarát és gazdaságos megoldást nyújt.
Az integrált szúnyoghálók hozzájárulnak a kényelmes és nyugodt élethez, lehetővé téve, hogy a nyári estéket zavartalanul élvezhesse.
Az ingatlan környezete csendes, így ideális helyszín lehet a koncentrált munkavégzéshez, ugyanakkor a környék ellátottsága kiváló, számos bolt, étterem és szolgáltatás található a közelben, így minden szükséges dolog egy karnyújtásnyira van.
A közeli tömegközlekedési lehetőségek révén a napi ingázás egyszerű és gyors, míg a környék felkapottsága és központi elhelyezkedése biztosítja, hogy az ingatlan mindig keresett legyen.
Két kisebb és két nagyobb méretű lakás, tágas belső terek és modern technológiai megoldások biztosítják a kiváló életminőséget, de akár irodai vállalkozások számára is ideális lehet a bérlemény.
A lakások különleges előnyei közé tartoznak a nagy méretű teraszok és erkélyek, melyek lehetőséget biztosítanak a szabadban való pihenésre, valamint az üzleti megbeszélések lebonyolítására.
Ez az ingatlan nemcsak egy bérlemény, hanem egy életstílus, amely akár egy modern vállalkozás igényeit is maximálisan kielégíti.
Szívesen állunk rendelkezésére, hogy segítsünk Önnek megtalálni álmai otthonát vagy befektetési lehetőségét. Az ingatlanpiac ezen szegmense dinamikusan fejlődik, és mi itt vagyunk, hogy Ön a legjobb döntéseket hozhassa meg.
Nemcsak magánszemélyeknek, hanem vállalkozások számára is vonzó lehetőségeket rejt a Vérhalom városrészben található ingatlanunk, mely impozáns, 331 négyzetméteres ház, egy 1215 négyzetméteres telken. A 13 szobával és 6 fürdőszobával rendelkező ingatlan, mely négy különálló lakásban található tökéletes választás lehet, irodai, bemutatótermi vagy akár szálláshely céljára is.
Az ingatlan felszereltsége magában foglalja a teremgarázst, a liftet, motoros redőnyöket, biztonsági ajtót, videókaputelefont, riasztórendszert, valamint a hőszivattyús fűtést, amely környezetbarát és gazdaságos megoldást nyújt.
Az integrált szúnyoghálók hozzájárulnak a kényelmes és nyugodt élethez, lehetővé téve, hogy a nyári estéket zavartalanul élvezhesse.
Az ingatlan környezete csendes, így ideális helyszín lehet a koncentrált munkavégzéshez, ugyanakkor a környék ellátottsága kiváló, számos bolt, étterem és szolgáltatás található a közelben, így minden szükséges dolog egy karnyújtásnyira van.
A közeli tömegközlekedési lehetőségek révén a napi ingázás egyszerű és gyors, míg a környék felkapottsága és központi elhelyezkedése biztosítja, hogy az ingatlan mindig keresett legyen.
Két kisebb és két nagyobb méretű lakás, tágas belső terek és modern technológiai megoldások biztosítják a kiváló életminőséget, de akár irodai vállalkozások számára is ideális lehet a bérlemény.
A lakások különleges előnyei közé tartoznak a nagy méretű teraszok és erkélyek, melyek lehetőséget biztosítanak a szabadban való pihenésre, valamint az üzleti megbeszélések lebonyolítására.
Ez az ingatlan nemcsak egy bérlemény, hanem egy életstílus, amely akár egy modern vállalkozás igényeit is maximálisan kielégíti.
Szívesen állunk rendelkezésére, hogy segítsünk Önnek megtalálni álmai otthonát vagy befektetési lehetőségét. Az ingatlanpiac ezen szegmense dinamikusan fejlődik, és mi itt vagyunk, hogy Ön a legjobb döntéseket hozhassa meg.
Registration Number
U0047786
Property Details
Sales
for rent
Legal Status
new
Character
house
Construction Method
brick
Net Size
331 m²
Gross Size
517 m²
Plot Size
1,215 m²
Size of Terrace / Balcony
186 m²
Heating
heat pump
Ceiling Height
270 cm
Number of Levels Within the Property
4
Orientation
South
Condition
Excellent
Condition of Facade
Excellent
Neighborhood
quiet, good transport, central
Year of Construction
2024
Number of Bathrooms
6
Garage
Included in the price
Water
Available
Gas
On the street
Electricity
Available
Sewer
Available
Rooms
open-plan kitchen and living room
36.05 m²
room
8.58 m²
room
17.14 m²
room
10.98 m²
bathroom-toilet
3.84 m²
bathroom-toilet
1.81 m²
entryway
12.12 m²
storage
2.76 m²
balcony
31.8 m²
gallery
25 m²
values.realestate.szobatipus.49
43 m²
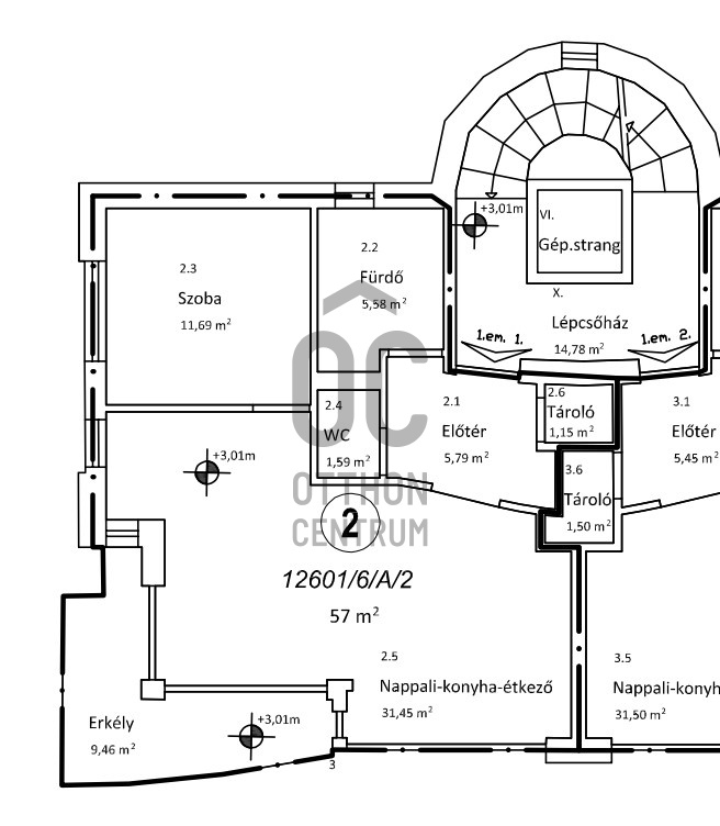
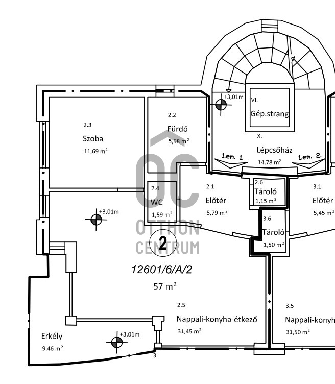
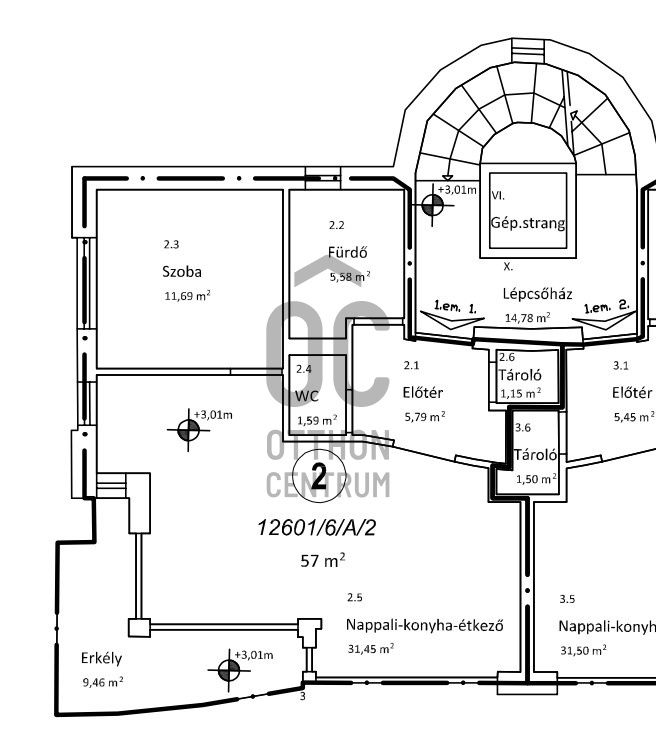
open-plan kitchen and living room
31.45 m²
room
11.69 m²
bathroom-toilet
5.58 m²
toilet-washbasin
1.59 m²
entryway
5.79 m²
balcony
9.37 m²
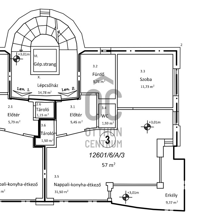
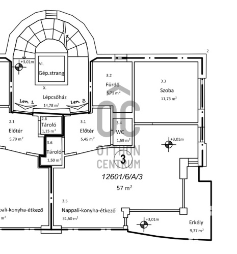
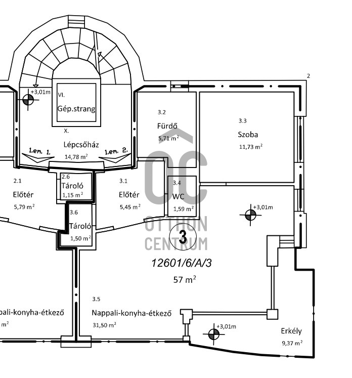
open-plan kitchen and living room
31.45 m²
room
11.69 m²
bathroom-toilet
5.58 m²
toilet-washbasin
1.59 m²
entryway
5.79 m²
balcony
9.46 m²
entryway
4.92 m²
room
9.7 m²
bathroom-toilet
6.69 m²
open-plan kitchen and living room
44.66 m²
toilet-washbasin
2.25 m²
bathroom-toilet
3.37 m²
corridor
5.61 m²
utility room
1.57 m²
room
10.73 m²
room
10.72 m²
room
8.59 m²
terrace
91 m²
Pongó Miklós
Credit Expert