1,000,000 Ft
2,650 €
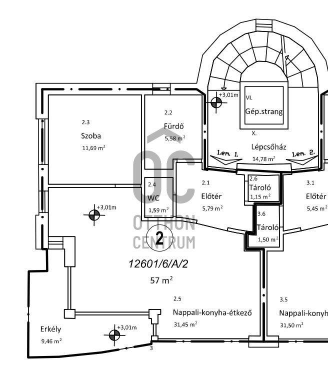
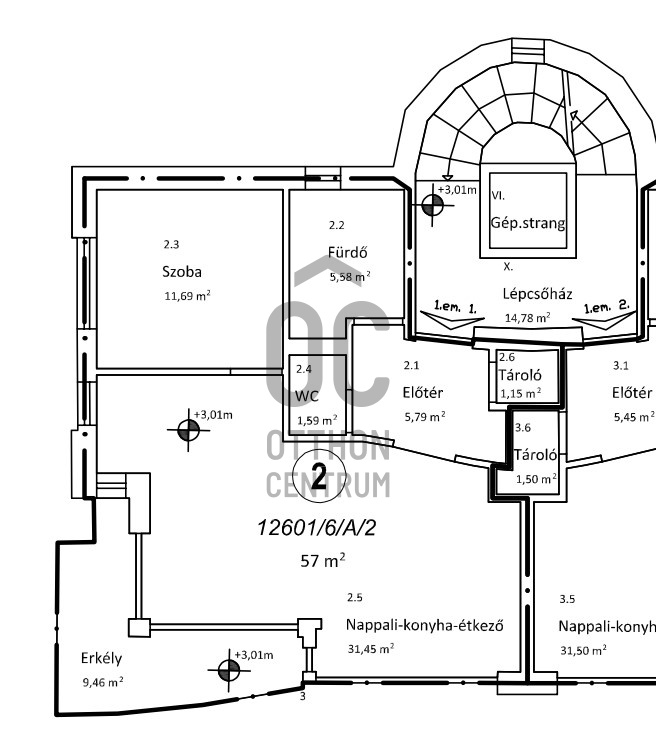
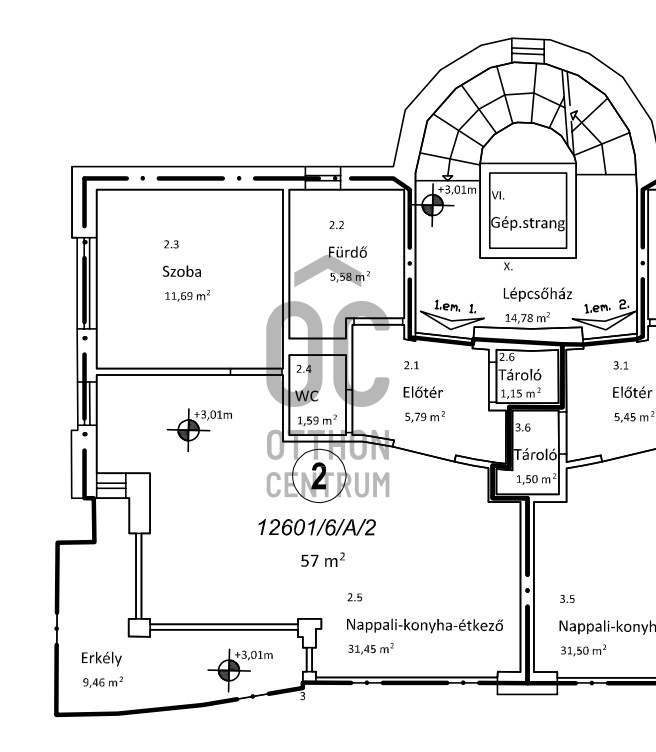
- 57m²
- 2 Rooms
- 1st floor
KIADÓ, új, 2 szobás lakás Budapest II. kerületében
A modern életstílus kedvelői számára kínálunk bérbeadásra egy különleges ingatlant, mely Budapest II. kerületének egyik legfelkapottabb részén található.
Ez az erkélyes, nappali plusz hálószobás lakás ideális választás lehet azok számára, akik a kényelmet és a minőséget keresik.
Az ingatlan alapterülete 57 négyzetméter + 9,5 nm erkély + teremgarázs hely. (Az épületben még található a földszinten egy 109 nm-es lakás 91 nm terasszal, kertkapcsolattal, valamint az első emeleten még egy (ennek a tükörképe) lakás, 57 nm + 9 nm erkély, továbbá a második emeleten egy belső kétszintes penthouse lakás, 108 nm, amihez kapcsolódik 2 x 6 nm erkély, 2 x 12 nm valamint egy 19 nm-es tetőterasz is még), illetve a terem garázsban 1 parkolóhely az első emeleti lakáshoz, 2-2 pedig a földszinti és a penthouse lakáshoz. Külön-külön is, de akár egyben az egész is kiadó!)
Az amerikai konyha és a világos nappali tökéletes teret ad a közös pillanatoknak, míg a 9,5 négyzetméteres erkély lehetőséget ad arra is, hogy a szabadban fogyassza el a reggeli kávéját, a friss levegőn. A lakás modern dizájnja és kiváló állapota egyedülálló lehetőséget teremt a nyugodt életvitelhez.
A lakás modern kialakítása mellett a legújabb technológiákat is felvonultatja, mint például a hőszivattyús fűtés, integrált szúnyoghálók és motoros redőnyök, amelyek garantálják a maximális kényelmet. A biztonsági ajtó és a lépcsőházban levő lift hozzáadott értéket képviselnek, hiszen a biztonság és kényelem mindannyiunk számára elsődleges fontosságú.
A környék ellátottsága kiváló, számos bolt, étterem és szórakozási lehetőség a közelben, nem utolsósorban a környék kedvelt bevásárló központja a Rózsakert, mindössze 5 perc sétatávolságra található.
A kitűnő közlekedésnek köszönhetően könnyedén elérheti a város bármely pontját, legyen szó autós közlekedésről vagy tömegközlekedésről.
Ez a lakás nem csupán egy ingatlan, hanem egy életstílus, amely a modern kényelem és a városi dinamizmus tökéletes egyensúlyát kínálja. Ha Ön is szeretne részese lenni ennek a különleges lehetőségnek, ne habozzon kapcsolatba lépni velem! Bizalommal kereshet bármilyen kérdéssel, szívesen segítek Önnek megtalálni a tökéletes otthont vagy befektetési lehetőséget.
Ez az erkélyes, nappali plusz hálószobás lakás ideális választás lehet azok számára, akik a kényelmet és a minőséget keresik.
Az ingatlan alapterülete 57 négyzetméter + 9,5 nm erkély + teremgarázs hely. (Az épületben még található a földszinten egy 109 nm-es lakás 91 nm terasszal, kertkapcsolattal, valamint az első emeleten még egy (ennek a tükörképe) lakás, 57 nm + 9 nm erkély, továbbá a második emeleten egy belső kétszintes penthouse lakás, 108 nm, amihez kapcsolódik 2 x 6 nm erkély, 2 x 12 nm valamint egy 19 nm-es tetőterasz is még), illetve a terem garázsban 1 parkolóhely az első emeleti lakáshoz, 2-2 pedig a földszinti és a penthouse lakáshoz. Külön-külön is, de akár egyben az egész is kiadó!)
Az amerikai konyha és a világos nappali tökéletes teret ad a közös pillanatoknak, míg a 9,5 négyzetméteres erkély lehetőséget ad arra is, hogy a szabadban fogyassza el a reggeli kávéját, a friss levegőn. A lakás modern dizájnja és kiváló állapota egyedülálló lehetőséget teremt a nyugodt életvitelhez.
A lakás modern kialakítása mellett a legújabb technológiákat is felvonultatja, mint például a hőszivattyús fűtés, integrált szúnyoghálók és motoros redőnyök, amelyek garantálják a maximális kényelmet. A biztonsági ajtó és a lépcsőházban levő lift hozzáadott értéket képviselnek, hiszen a biztonság és kényelem mindannyiunk számára elsődleges fontosságú.
A környék ellátottsága kiváló, számos bolt, étterem és szórakozási lehetőség a közelben, nem utolsósorban a környék kedvelt bevásárló központja a Rózsakert, mindössze 5 perc sétatávolságra található.
A kitűnő közlekedésnek köszönhetően könnyedén elérheti a város bármely pontját, legyen szó autós közlekedésről vagy tömegközlekedésről.
Ez a lakás nem csupán egy ingatlan, hanem egy életstílus, amely a modern kényelem és a városi dinamizmus tökéletes egyensúlyát kínálja. Ha Ön is szeretne részese lenni ennek a különleges lehetőségnek, ne habozzon kapcsolatba lépni velem! Bizalommal kereshet bármilyen kérdéssel, szívesen segítek Önnek megtalálni a tökéletes otthont vagy befektetési lehetőséget.
Registration Number
U0047701
Property Details
Sales
for rent
Legal Status
new
Character
apartment
Construction Method
brick
Net Size
57 m²
Gross Size
67 m²
Size of Terrace / Balcony
9.5 m²
Heating
heat pump
Ceiling Height
270 cm
Orientation
South-East
Staircase Type
enclosed staircase
Condition
Excellent
Condition of Facade
Excellent
Condition of Staircase
Excellent
Neighborhood
quiet, good transport, central
Year of Construction
2024
Number of Bathrooms
1
Position
courtyard-facing
Water
Available
Gas
On the street
Electricity
Available
Sewer
Available
Elevator
available
Rooms
open-plan kitchen and living room
31.45 m²
room
11.69 m²
bathroom-toilet
5.58 m²
toilet-washbasin
1.59 m²
entryway
5.79 m²
balcony
9.37 m²
Pongó Miklós
Credit Expert