200,000,000 Ft
513,000 €
- 136m²
- 5 Rooms
- ground floor






















2 lakásos új építésű ház medencével
2 új építésű, korszerű energetikai ellátású, kertes lakás várja tulajdonosait egy önálló családi házban. Lehetőség van a kettő együttes megvásárlására, illetve külön - külön is megvehetőek. A földszinti 84 m2-es lakás nappali +2 hálószobás, az emeleti 69 m2-es nappali + 1 hálószobás. Külön kazánokkal és önálló mérőórákkal lesznek ellátva, elektromos padlófűtés biztosítja a komfortos belső hőmérsékletet. Közös bejáraton keresztül lehet megközelíteni a lépcsőházat, innen lehet lejutni a pincébe, ahova a kazánok kerülnek, valamint tárolásra alkalmas területek és garázs áll rendelkezésre. A földszinti lakáshoz medence szerepel a tervekben, a pince használati megosztása külön értékesítés esetén az első vevő választási opciója, mint pl. a garázs lehetősége. A telek hátsó része füvesítés, parkosítás után kínál teret a szabadban pihenésnek, kikapcsolódásnak.
Registration Number
U0043208
Property Details
Sales
for sale
Legal Status
new
Character
house
Construction Method
brick
Net Size
136 m²
Gross Size
222 m²
Plot Size
791 m²
Heating
electric circulator
Ceiling Height
280 cm
Number of Levels Within the Property
1
Orientation
South
View
city view, Green view
Staircase Type
enclosed staircase
Condition
Excellent
Condition of Facade
Excellent
Condition of Staircase
Excellent
Basement
Shared
Neighborhood
good transport, green
Year of Construction
2022
Number of Bathrooms
2
Position
street-facing
Garage
Separately purchasable
Garage Spaces
1
Water
Available
Electricity
Available
Sewer
Available
Storage
Independent
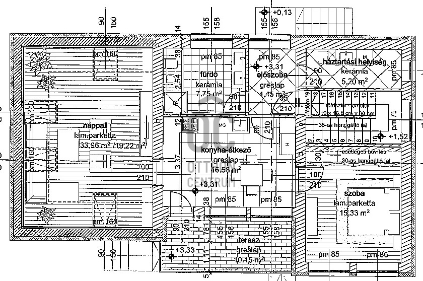
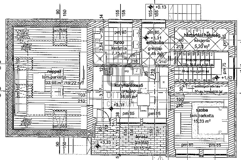
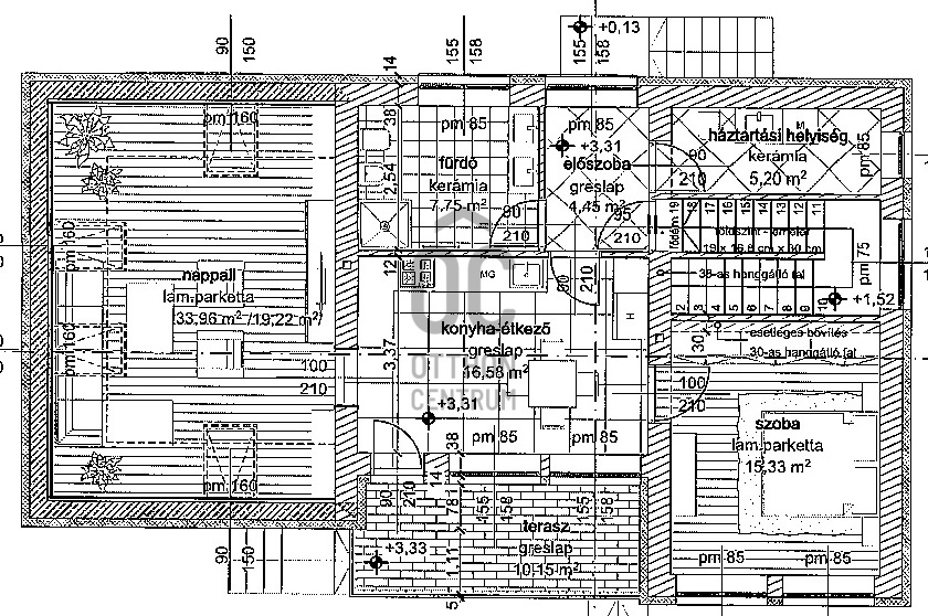
Rooms
entryway
2.06 m²
entryway
4.49 m²
storage
5.2 m²
living room
16.66 m²
toilet
1.32 m²
open-plan kitchen and dining room
18.54 m²
room
15.33 m²
room
15.46 m²
bathroom
5.03 m²
terrace
14.23 m²
terrace
6.25 m²
staircase
7.52 m²
entryway
4.45 m²
bathroom-toilet
7.75 m²
room
15.33 m²
living room
19.22 m²
utility room
5.2 m²
open-plan kitchen and dining room
16.58 m²
terrace
10.15 m²

Torday Tibor
Credit Expert