data_sheet.details.realestate.section.main.otthonstart_flag.label
For sale house part, H515341
Budapest XXII. kerület, Budafok, Liszt Ferenc út

80,000,000 Ft

206,000 €

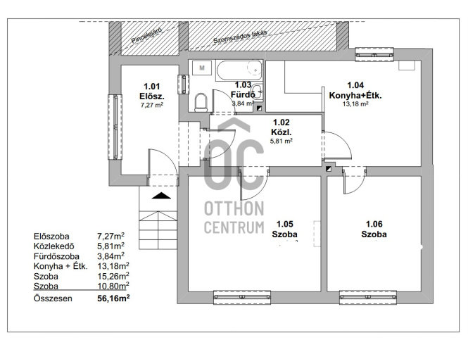
  • 56m²
  • 2 Rooms
  • ground floor
Exclusive Contract

Kertes- családias lakás minden korosztálynak!

22.kerületben, Budafok kertvárosi részén, közkedvelt utcában megvételre kínálok egy földszintes házrészt (lakást).
Három lakásos társasházon belül az eladó ingatlan a földszinten helyezkedik el.
Részlegesen már felújították, a nyílászárókat, parkettát és a kazánt kicserélték, jelenleg a fürdőszoba és az előszoba még felújítást igényel.
Saját, lekerített kertrész és pince tartozik a lakáshoz.
Kellemes, családias hangulatú házrész, kedves szomszédokkal. A kertet és a kertészkedést kedvelőknek kifejezetten a figyelmébe ajánlom.
Jogilag rendezett, osztatlan közös tulajdonú,ügyvédi ellenjegyzéssel ellátott használati megosztással rendelkezik.
Időseknek, de fiatal párnak is, kezdő lakásként ideális otthona lehet.
Rugalmasan megtekinthető, azonnal költözhető.

Registration Number

H515341

Property Details

Sales
for sale
Legal Status
used
Character
house
Construction Method
brick
Net Size
56 m²
Gross Size
56 m²
Plot Size
200 m²
Garden Size
100 m²
Heating
Gas circulator
Ceiling Height
270 cm
Orientation
North-East
View
Green view
Staircase Type
none
Condition
Average
Condition of Facade
Average
Condition of Staircase
Average
Basement
Shared
Neighborhood
quiet, good transport, green
Year of Construction
1960
Number of Bathrooms
1
Position
garden-facing
Condominium Garden
yes
Water
Available
Gas
Available
Electricity
Available
Sewer
Available

Rooms

entryway
7 m²
corridor
6 m²
bathroom-toilet
4 m²
open-plan kitchen and dining room
13 m²
room
15 m²
room
12 m²
Pongó Miklós
Pongó Miklós

Credit Expert

From Our Office Listings - XXII. kerület - Mária Terézia utca

for sale apartment

Index image
data_sheet.details.realestate.section.main.otthonstart_flag.label
27

for sale semi-detached house

Index image
15

for sale apartment

Index image
data_sheet.details.realestate.section.main.otthonstart_flag.label
18

for sale family house

Index image
34

for sale apartment

Index image
data_sheet.details.realestate.section.main.otthonstart_flag.label
11

for sale apartment

Index image
14

for sale family house

Index image
17

for sale family house

Index image
data_sheet.details.realestate.section.main.otthonstart_flag.label
14