data_sheet.details.realestate.section.main.otthonstart_flag.label
For sale apartment,
H512527
Debrecen, Nagyerdő
86,000,000 Ft
227,000 €
- 82m²
- 3 Rooms
- 3rd floor
Eladó 82 m²-es, 3 szobás társasházi lakás Debrecenben, a Nagyerdőn – Géresi utcában
Debrecen egyik legkedveltebb városrészében, a klasszikus Nagyerdőn, a Géresi utcában kínálunk megvételre egy 82 m²-es, téglaépítésű, egyedi gáz-cirkó fűtéses társasházi lakást.
Az ingatlan egy kilenc lakásos, zárt udvaros társasház felső szintjén helyezkedik el, így felső szomszéd nélkül, nyugodt, zavartalan lakókörnyezetet biztosítva.
Az ingatlan főbb jellemzői:
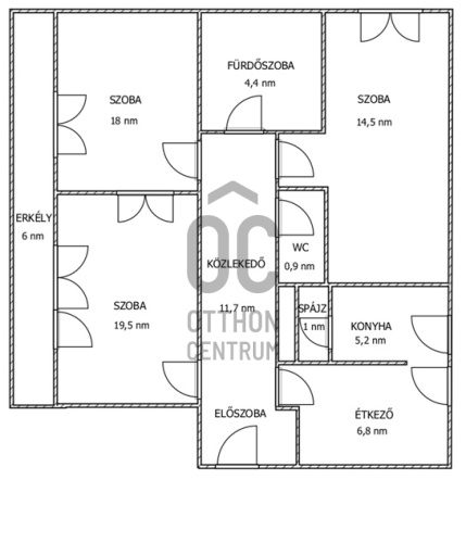
-82 m² alapterület
-3 külön nyíló szoba, konyha + étkező
-Tágas, napfényes belső terek
-Műanyag nyílászárók redőnnyel és szúnyoghálóval
-Egyedi gáz-cirkó fűtés kondenzációs kazánnal
-Klímaberendezés
-Fürdőszoba káddal és zuhanyzóval
-WC külön helyiségben
-Spájz
-Terasz
-Tégla építésű társasház
-Kis létszámú lakóközösség
-Alacsony fenntartási költségek
A lakás elrendezése rugalmas: a három külön nyíló szoba közül kettő egymásból is megközelíthető, így az alaprajz családoknak, pároknak vagy befektetési célra is kiválóan alakítható.
Az egyik szobából közvetlen kijárat a tágas erkélyre.
A társasházhoz gondozott kert tartozik, a környék csendes és rendezett.
Elhelyezkedés:
-Az ingatlan kiváló lokációval rendelkezik:
-Egyetemek, Klinikák, villamosmegálló néhány perc sétára
-Zöldövezeti parkok a közelben
-Iskola, óvoda, boltok, gyógyszertár, cukrászda gyalogosan elérhetőek
A lakás saját részre és befektetésnek egyaránt ideális választás.
Az alaprajz tájékoztató jellegű.
Amennyiben az ingatlan felkeltette érdeklődését, várom telefonos megkeresését további információért vagy megtekintés egyeztetéséhez.
Ez az ingatlan a „Hűségcsomag” megbízási portfóliónk része. Bővebb információkért keresse az Otthon Centrum weboldalán a Felezőcsomag menüpontot, vagy hívjon minket bizalommal!
Az ingatlan egy kilenc lakásos, zárt udvaros társasház felső szintjén helyezkedik el, így felső szomszéd nélkül, nyugodt, zavartalan lakókörnyezetet biztosítva.
Az ingatlan főbb jellemzői:
-82 m² alapterület
-3 külön nyíló szoba, konyha + étkező
-Tágas, napfényes belső terek
-Műanyag nyílászárók redőnnyel és szúnyoghálóval
-Egyedi gáz-cirkó fűtés kondenzációs kazánnal
-Klímaberendezés
-Fürdőszoba káddal és zuhanyzóval
-WC külön helyiségben
-Spájz
-Terasz
-Tégla építésű társasház
-Kis létszámú lakóközösség
-Alacsony fenntartási költségek
A lakás elrendezése rugalmas: a három külön nyíló szoba közül kettő egymásból is megközelíthető, így az alaprajz családoknak, pároknak vagy befektetési célra is kiválóan alakítható.
Az egyik szobából közvetlen kijárat a tágas erkélyre.
A társasházhoz gondozott kert tartozik, a környék csendes és rendezett.
Elhelyezkedés:
-Az ingatlan kiváló lokációval rendelkezik:
-Egyetemek, Klinikák, villamosmegálló néhány perc sétára
-Zöldövezeti parkok a közelben
-Iskola, óvoda, boltok, gyógyszertár, cukrászda gyalogosan elérhetőek
A lakás saját részre és befektetésnek egyaránt ideális választás.
Az alaprajz tájékoztató jellegű.
Amennyiben az ingatlan felkeltette érdeklődését, várom telefonos megkeresését további információért vagy megtekintés egyeztetéséhez.
Ez az ingatlan a „Hűségcsomag” megbízási portfóliónk része. Bővebb információkért keresse az Otthon Centrum weboldalán a Felezőcsomag menüpontot, vagy hívjon minket bizalommal!
Registration Number
H512527
Property Details
Sales
for sale
Legal Status
used
Character
apartment
Construction Method
brick
Net Size
82 m²
Gross Size
82 m²
Size of Terrace / Balcony
6 m²
Heating
Gas circulator
Ceiling Height
270 cm
Orientation
South
View
Green view
Staircase Type
enclosed staircase
Condition
Good
Condition of Facade
Average
Condition of Staircase
Average
Neighborhood
quiet, good transport, green
Year of Construction
1978
Number of Bathrooms
1
Position
courtyard-facing
Common Costs
12300
Water
Available
Gas
Available
Electricity
Available
Sewer
Available
Rooms
room
14.5 m²
room
18 m²
room
19.5 m²
kitchen
5.2 m²
dining room
6.8 m²
corridor
11.7 m²
bathroom
4.4 m²
toilet
0.9 m²
storage
1 m²
Czellér András
Credit Expert