data_sheet.details.realestate.section.main.otthonstart_flag.label
For sale family house,
H501869
Leányfalu
129,900,000 Ft
331,000 €
- 240m²
- 7 Rooms


























ELEGÁNS, POLGÁRI STÍLUSÚ VILLAÉPÜLET LEÁNYFALU KÖZPONTJÁBAN!
Leányfalu központjában, a Móricz Zsigmond úton ELADÓ egy kivételes adottságokkal rendelkező, igazi múltat hordozó, patinás polgári stílusú ház!
Az ingatlan különlegességét nem csak az egyedi megjelenése és tágas terei adják, hanem az is, hogy az 1940-es években Rimanóczy Gyula, a modern magyar építészet egyik legjelentősebb alakja tervezte.
A 852 nm-es telken álló, kétszintes épület stílusosan ötvözi a régi idők eleganciáját és a klasszikus polgári hangulatot.
Az ingatlan rendkívül egyedi, architektúrája és térszervezése kiváló alapot kínál egy színvonalas családi otthon vagy szolgáltató tevékenység - rendelő, iroda, szálláshely - kialakítására!
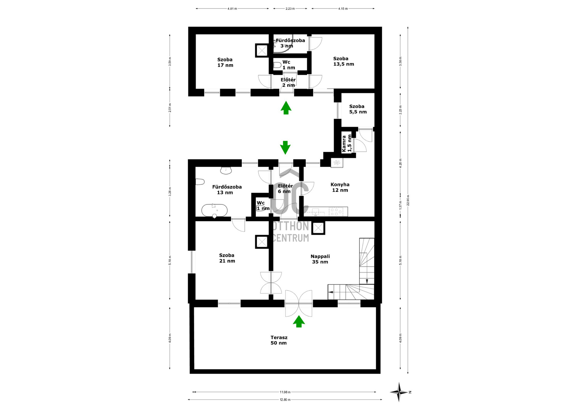
Az épület elosztása:
- Bejárat egy nagyméretű, 50 nm-es, tornácos teraszon keresztül, amely az ingatlan egyik meghatározó eleme
- A földszinten egy tágas nappali cserépkályhával, egy hálószoba, nagyméretű fürdőszoba, konyha, külön wc, kamra, és egy félszoba (korábbi cselédszoba)
- Az emeletre egy impozáns lépcső vezet fel, ahol kettő nagyméretű, világos szoba kapott helyet
- A belmagasság mindkét szinten 3 méter, ami tovább növeli a térérzetet és az eleganciát.
Műszaki jellemzők:
- Fűtés vegyes tüzelésű , dekoratív cserépkályhákkal megoldott (gáz az utcán elérhető, telken belül nincs bevezetve)
- Eredeti, régi fa nyílászárók
- Burkolat jellemzően klasszikus fa padló és parketta
- Tárolási lehetőségként egy pince, egy zárt garázs és 3-4 autó számára parkolási lehetőség a telken belül megoldott
A telken belül, egy belső udvaron és a nagy ház mellett kívülről is megközelíthető egy különálló lakrész, ami korábban kertészlak, majd fogorvosi rendelőként funkcionált. Itt jelenleg egy tágas, cserépkályhával ellátott szoba, egy étkezős konyha, egy zuhanyzós fürdőszoba és egy különálló wc található. Ez az épületrész is számos lehetőséget rejt - ideális külön lakrésznek, vendégháznak, irodának, szolgáltatás célra vagy újra rendelőnek.
A ház közvetlenül a 11-es főút mellett helyezkedik el, jól megközelíthető, jól látható helyen. A település központja, iskola, üzletek, buszmegálló pár perces sétára elérhető. A Duna-part szintén könnyen, pár méterre megközelíthető, így az otthoni nyugalom és a komfortos közlekedés egyszerre adott.
Olyan új tulajdonost keresünk, aki egy stílusos, nagypolgári múltú, különleges hangulatú házat keres a Dunakanyar kapujában , amely egyben otthon és értékálló befektetés is!
Aki vállalkozást, rendelőt, szálláshelyet vagy szolgáltatói egységet alakítana ki egy jól látható, központi helyen!
Aki többgenerációs otthont keres, ahol külön lakrészben mégis egy helyen képzeli el jövőjét a családtagokkal!
Ez az ingatlan valódi ritkaság a piacon! Történelmi érték, különleges hangulat, központi lokáció, mindez egy építészettörténeti jelentőségű házban!
Az ingatlan tehermentes, rövid időn belül birtokba vehető!
További információkért és megtekintési szándékkal kapcsolatban várom hívását!
Leányfalu központjában, a Móricz Zsigmond úton ELADÓ egy kivételes adottságokkal rendelkező, igazi múltat hordozó, patinás polgári stílusú ház!
Az ingatlan különlegességét nem csak az egyedi megjelenése és tágas terei adják, hanem az is, hogy az 1940-es években Rimanóczy Gyula, a modern magyar építészet egyik legjelentősebb alakja tervezte.
A 852 nm-es telken álló, kétszintes épület stílusosan ötvözi a régi idők eleganciáját és a klasszikus polgári hangulatot.
Az ingatlan rendkívül egyedi, architektúrája és térszervezése kiváló alapot kínál egy színvonalas családi otthon vagy szolgáltató tevékenység - rendelő, iroda, szálláshely - kialakítására!
Az épület elosztása:
- Bejárat egy nagyméretű, 50 nm-es, tornácos teraszon keresztül, amely az ingatlan egyik meghatározó eleme
- A földszinten egy tágas nappali cserépkályhával, egy hálószoba, nagyméretű fürdőszoba, konyha, külön wc, kamra, és egy félszoba (korábbi cselédszoba)
- Az emeletre egy impozáns lépcső vezet fel, ahol kettő nagyméretű, világos szoba kapott helyet
- A belmagasság mindkét szinten 3 méter, ami tovább növeli a térérzetet és az eleganciát.
Műszaki jellemzők:
- Fűtés vegyes tüzelésű , dekoratív cserépkályhákkal megoldott (gáz az utcán elérhető, telken belül nincs bevezetve)
- Eredeti, régi fa nyílászárók
- Burkolat jellemzően klasszikus fa padló és parketta
- Tárolási lehetőségként egy pince, egy zárt garázs és 3-4 autó számára parkolási lehetőség a telken belül megoldott
A telken belül, egy belső udvaron és a nagy ház mellett kívülről is megközelíthető egy különálló lakrész, ami korábban kertészlak, majd fogorvosi rendelőként funkcionált. Itt jelenleg egy tágas, cserépkályhával ellátott szoba, egy étkezős konyha, egy zuhanyzós fürdőszoba és egy különálló wc található. Ez az épületrész is számos lehetőséget rejt - ideális külön lakrésznek, vendégháznak, irodának, szolgáltatás célra vagy újra rendelőnek.
A ház közvetlenül a 11-es főút mellett helyezkedik el, jól megközelíthető, jól látható helyen. A település központja, iskola, üzletek, buszmegálló pár perces sétára elérhető. A Duna-part szintén könnyen, pár méterre megközelíthető, így az otthoni nyugalom és a komfortos közlekedés egyszerre adott.
Olyan új tulajdonost keresünk, aki egy stílusos, nagypolgári múltú, különleges hangulatú házat keres a Dunakanyar kapujában , amely egyben otthon és értékálló befektetés is!
Aki vállalkozást, rendelőt, szálláshelyet vagy szolgáltatói egységet alakítana ki egy jól látható, központi helyen!
Aki többgenerációs otthont keres, ahol külön lakrészben mégis egy helyen képzeli el jövőjét a családtagokkal!
Ez az ingatlan valódi ritkaság a piacon! Történelmi érték, különleges hangulat, központi lokáció, mindez egy építészettörténeti jelentőségű házban!
Az ingatlan tehermentes, rövid időn belül birtokba vehető!
További információkért és megtekintési szándékkal kapcsolatban várom hívását!
Registration Number
H501869
Property Details
Sales
for sale
Legal Status
used
Character
house
Construction Method
brick
Net Size
240 m²
Gross Size
240 m²
Plot Size
852 m²
Size of Terrace / Balcony
50 m²
Heating
tile stove (mixed)
Ceiling Height
310 cm
Number of Levels Within the Property
2
Orientation
East
Condition
Average
Condition of Facade
Average
Basement
Independent
Neighborhood
good transport, green
Year of Construction
1940
Number of Bathrooms
2
Garage
Included in the price
Garage Spaces
1
Water
Available
Gas
On the street
Electricity
Available
Sewer
Available
Multi-Generational
yes
Distance to Waterfront
200 meters
Rooms
terrace
50 m²
living room
35 m²
bedroom
21 m²
bathroom-toilet
13 m²
kitchen
12 m²
bedroom
5.4 m²
entryway
6.2 m²
toilet
1 m²
bedroom
23 m²
bedroom
21.5 m²
bedroom
17 m²
open-plan kitchen and dining room
13.5 m²
bathroom
3 m²
toilet
1 m²
entryway
2 m²
staircase
8 m²