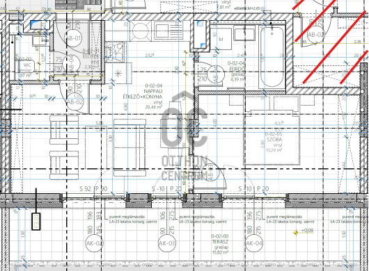
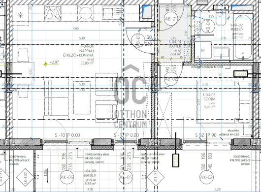
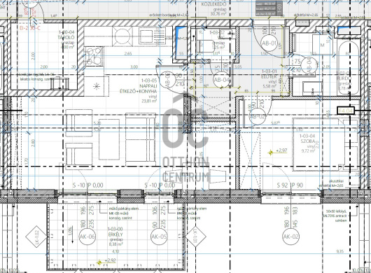
Gyöngyösi 91 projekt ingatlanjai

31 property
12 / 31 properties