data_sheet.details.realestate.section.main.otthonstart_flag.label
For sale new construction semi-detached house,
U0049408
Bocskaikert
85,070,000 Ft
238,000 €
- 92.9m²
- 4 Rooms
Az otthon, ahol a minőség alapfelszereltség!
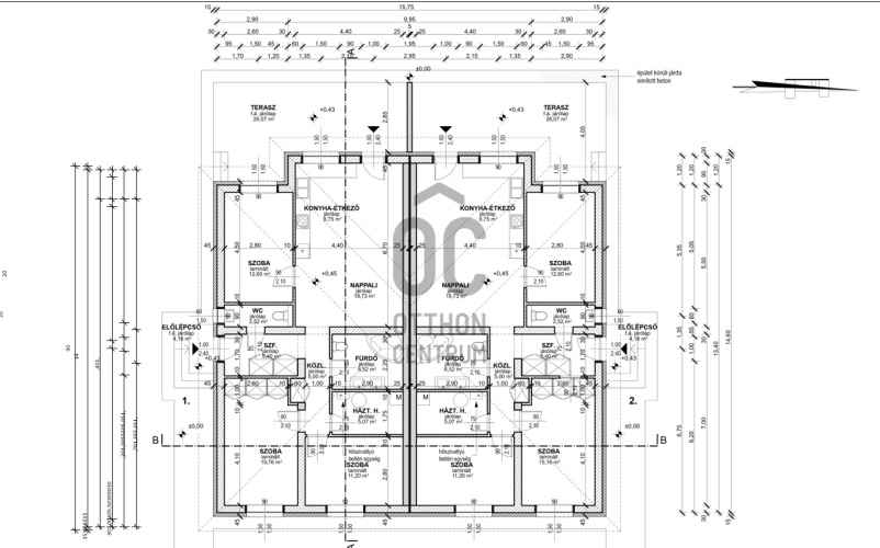
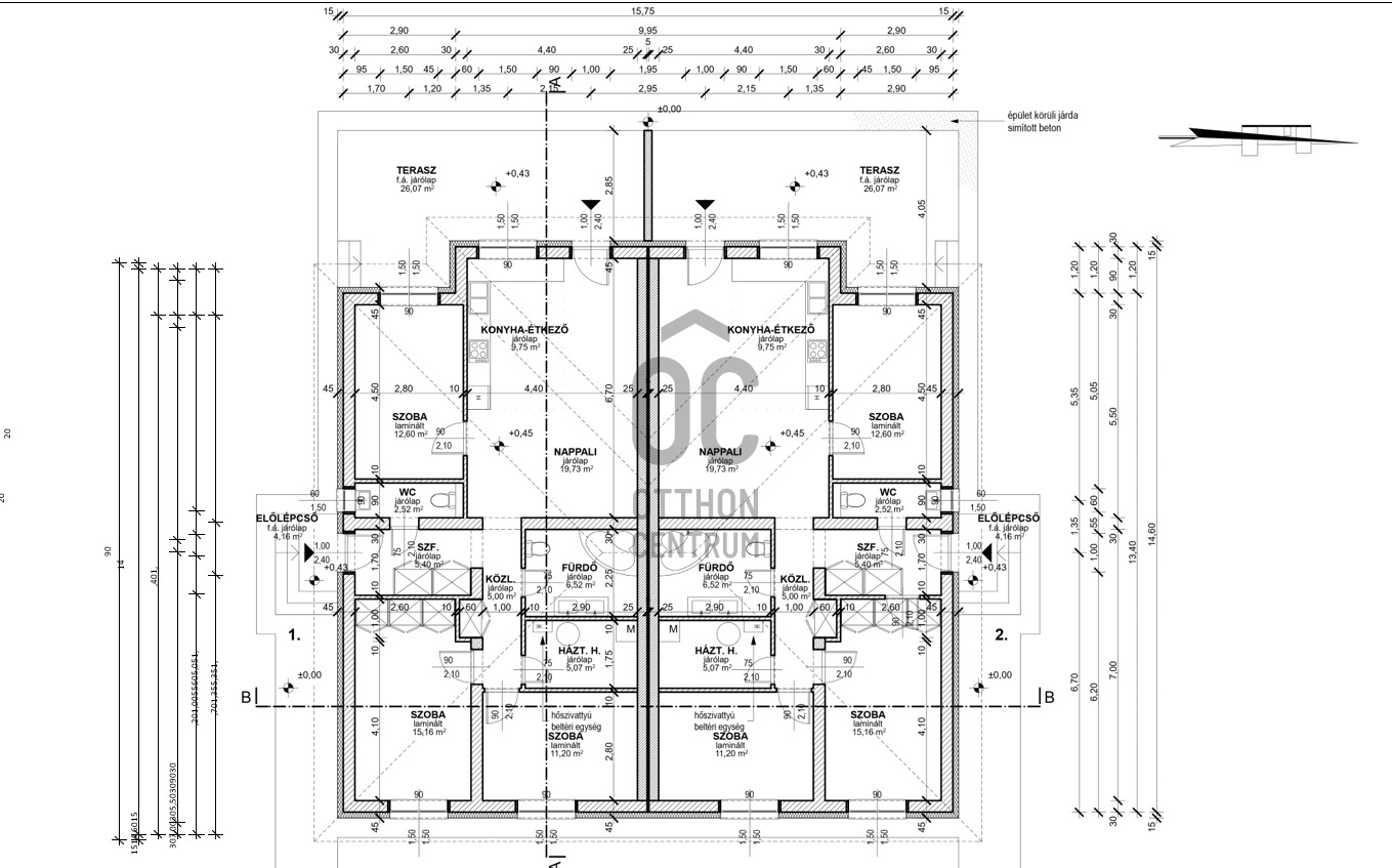
Bocskaikert csendes, nyugodt részén, 570 m²-es telken modern kialakítású, új építésű ikerház épül, amely ideális választás mindazok számára, akik korszerű és energiatakarékos otthont keresnek.
Az ingatlan egy 92,86 m²-es, új építésű, 3 szobás + amerikai konyhás-nappalis ikerház, amely átgondolt térkialakítással és kimagasló műszaki tartalommal valósul meg.
Szerkezet és szigetelés:
- 30 cm-es Porotherm/Leier tégla falazat
- 15 cm homlokzati EPS hőszigetelés
- 10 cm XPS lábazati szigetelés
- 30 cm födémszigetelés
- 3 rétegű üvegezésű, 6 légkamrás műanyag nyílászárók
- A korszerű gépészet és a modern technológia hosszú távon alacsony fenntartási költséget biztosít.
Fűtés és gépészet:
- korszerű padlófűtés, vagy gáz hiányában modern hőszivattyús rendszer
- a vételár része 2 db inverteres klíma
- energiahatékony, alacsony rezsijű működés
- közművek telken belüli csatlakoztatása (amennyiben adott)
- városi víz hiányában házi vízmű
- csatorna hiányában 3 m³-es zárt szennyvíztartály (igény szerint nagyobb kapacitással, felár ellenében)
Az építkezés kezdete: 2026.
A kivitelező az ügyfél igényei szerint is vállalja az építést, akár családi ház kivitelezését is 1141 m²-es telken, 600 000 Ft/m² áron, 2026. március 15-ig érvényes ajánlattal.
Ez az ingatlan kiváló választás mindazoknak, akik megbízható kivitelezésű, jól szigetelt, energiatakarékos új otthont szeretnének nyugodt környezetben, Bocskaikert kedvelt részén.
Érdeklődjön most, és foglalja le időben új otthonát!
Az ingatlan egy 92,86 m²-es, új építésű, 3 szobás + amerikai konyhás-nappalis ikerház, amely átgondolt térkialakítással és kimagasló műszaki tartalommal valósul meg.
Szerkezet és szigetelés:
- 30 cm-es Porotherm/Leier tégla falazat
- 15 cm homlokzati EPS hőszigetelés
- 10 cm XPS lábazati szigetelés
- 30 cm födémszigetelés
- 3 rétegű üvegezésű, 6 légkamrás műanyag nyílászárók
- A korszerű gépészet és a modern technológia hosszú távon alacsony fenntartási költséget biztosít.
Fűtés és gépészet:
- korszerű padlófűtés, vagy gáz hiányában modern hőszivattyús rendszer
- a vételár része 2 db inverteres klíma
- energiahatékony, alacsony rezsijű működés
- közművek telken belüli csatlakoztatása (amennyiben adott)
- városi víz hiányában házi vízmű
- csatorna hiányában 3 m³-es zárt szennyvíztartály (igény szerint nagyobb kapacitással, felár ellenében)
Az építkezés kezdete: 2026.
A kivitelező az ügyfél igényei szerint is vállalja az építést, akár családi ház kivitelezését is 1141 m²-es telken, 600 000 Ft/m² áron, 2026. március 15-ig érvényes ajánlattal.
Ez az ingatlan kiváló választás mindazoknak, akik megbízható kivitelezésű, jól szigetelt, energiatakarékos új otthont szeretnének nyugodt környezetben, Bocskaikert kedvelt részén.
Érdeklődjön most, és foglalja le időben új otthonát!
Registration Number
U0049408
Property Details
Sales
for sale
Legal Status
new
Character
house
Construction Method
brick
Net Size
92.9 m²
Gross Size
92.9 m²
Plot Size
570.5 m²
Size of Terrace / Balcony
30.1 m²
Heating
Gas circulator
Ceiling Height
260 cm
Orientation
South-East
View
Green view
Condition
Excellent
Condition of Facade
Excellent
Neighborhood
quiet
Year of Construction
2026
Number of Bathrooms
1
Water
On the street
Gas
On the street
Electricity
Available
Sewer
On the street
Rooms
bedroom
12.6 m²
bedroom
15.16 m²
bedroom
11.2 m²
living room
19.73 m²
open-plan kitchen and dining room
9.75 m²
corridor
5 m²
bathroom-toilet
6.52 m²
toilet
2.52 m²
utility room
5.07 m²
entryway
5.4 m²
Czellér András
Credit Expert