78,000,000 Ft
201,000 €
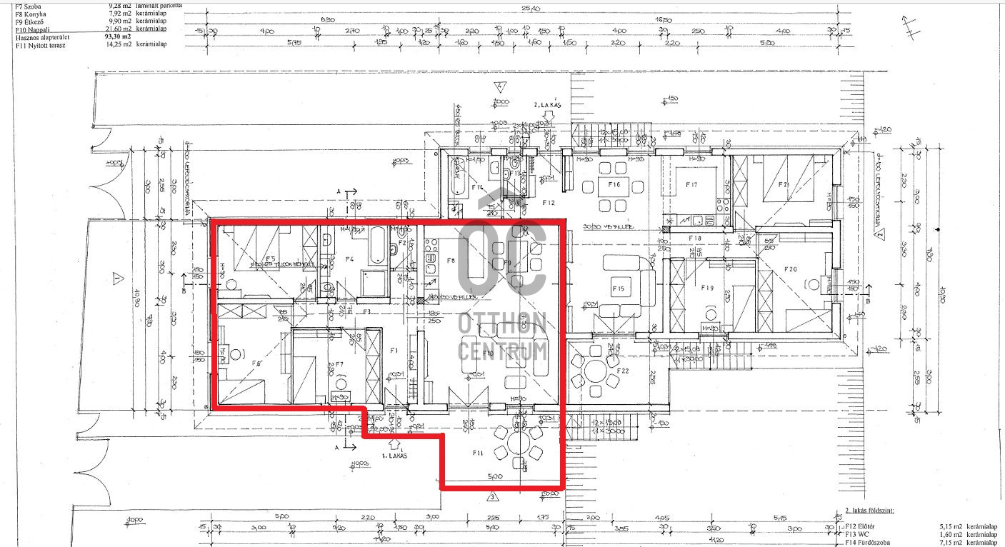
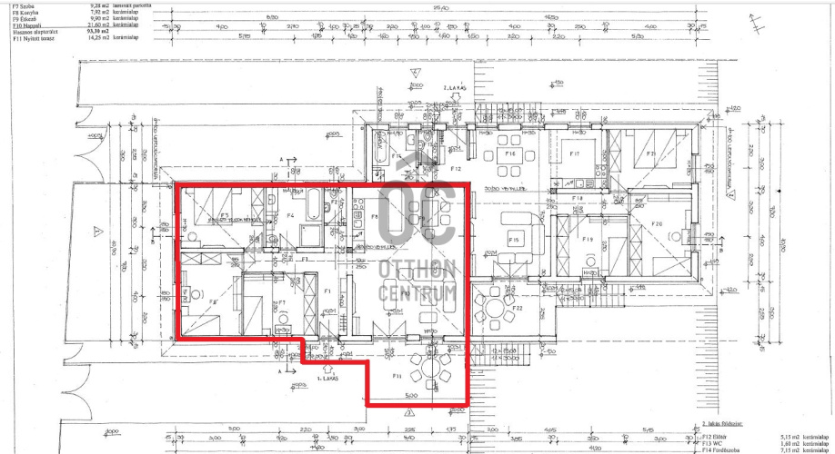
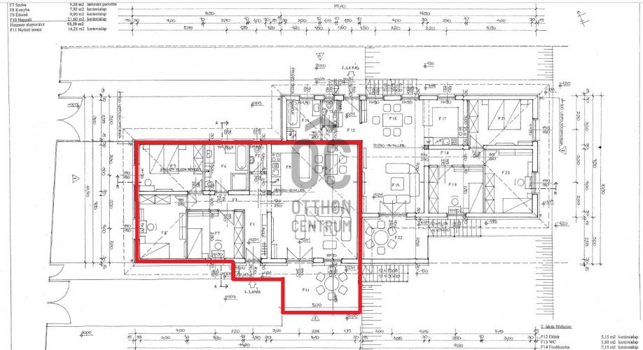
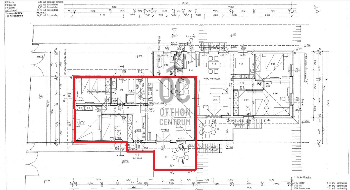
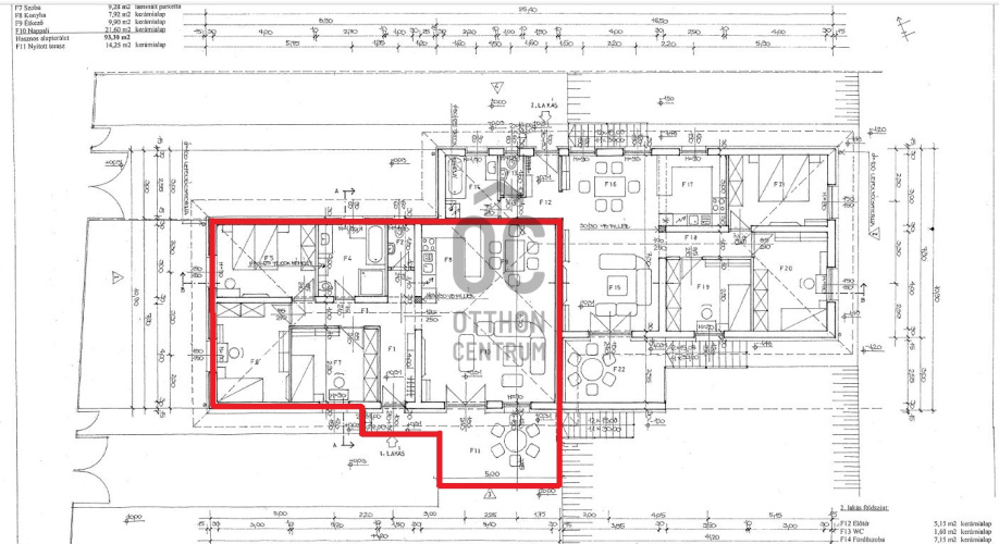
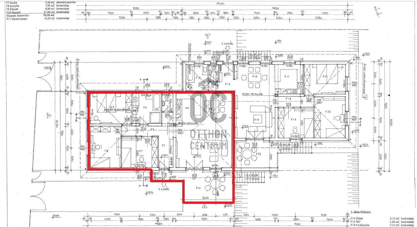
- 93.3m²
- 4 Rooms
 
            
                                                             
            
                                                             
            
                                                            Modern Kétlakásos Újépítésű Otthon – Szigetszentmárton szívében
(Otthon Start hitellel is megvásárolható!)
Főbb jellemzők:
- Épület típusa: földszintes, kétlakásos, társasház
- Telek mérete: 763 m²
- Hasznos alapterület összesen: 93,3 m² + 14,25 m² nyitott terasz
- Helyiségek lakásonként: nappali–étkező–konyha egy légtérben, 3 hálószoba, fürdőszoba, külön WC, előtér, közlekedő
- Tető: 25° hajlásszögű kontyolt nyeregtető, sötétbarna betoncserép
- Nyílászárók: háromrétegű hőszigetelő üvegezés, fehér műanyag
- Fűtés és HMV: lakásonkénti kondenzációs gázkazán, központi melegvizes fűtés
- Villamos rendszer: modern, energiatakarékos világítás és dugaljrendszer, napelemrendszer kiépíthető
- Szerkezet: vasbeton sávalap, 30 cm-es tégla teherhordó falak, fagerendás födém, 15 cm EPS hőszigetelés
- Gépkocsi elhelyezés: telken belül biztosított
Elhelyezkedés:
Szigetszentmárton hangulatos, nyugodt kis település a Ráckevei-Duna partján, kiváló közlekedési kapcsolatokkal Budapest irányába is. A csendes utca, családias kertvárosi övezet, barátságos lakóközösséggel, zöld környezettel és fejlődő infrastruktúrával.
Ne hagyja ki ezt a kivételes lehetőséget! Vegye fel velünk a kapcsolatot még ma, és biztosítsa új otthonát – akár Otthon Start hitellel is!
- - -
Adatbázisunkban további több ezer ingatlanból választhat, hívjon bizalommal, hogy megtaláljuk a legmegfelelőbbet!
Teljes körű és díjmentes hitel-ügyintézéssel áll rendelkezésére szakértő kollégánk. Kérje személyre szabott ajánlatunkat!
                    Főbb jellemzők:
- Épület típusa: földszintes, kétlakásos, társasház
- Telek mérete: 763 m²
- Hasznos alapterület összesen: 93,3 m² + 14,25 m² nyitott terasz
- Helyiségek lakásonként: nappali–étkező–konyha egy légtérben, 3 hálószoba, fürdőszoba, külön WC, előtér, közlekedő
- Tető: 25° hajlásszögű kontyolt nyeregtető, sötétbarna betoncserép
- Nyílászárók: háromrétegű hőszigetelő üvegezés, fehér műanyag
- Fűtés és HMV: lakásonkénti kondenzációs gázkazán, központi melegvizes fűtés
- Villamos rendszer: modern, energiatakarékos világítás és dugaljrendszer, napelemrendszer kiépíthető
- Szerkezet: vasbeton sávalap, 30 cm-es tégla teherhordó falak, fagerendás födém, 15 cm EPS hőszigetelés
- Gépkocsi elhelyezés: telken belül biztosított
Elhelyezkedés:
Szigetszentmárton hangulatos, nyugodt kis település a Ráckevei-Duna partján, kiváló közlekedési kapcsolatokkal Budapest irányába is. A csendes utca, családias kertvárosi övezet, barátságos lakóközösséggel, zöld környezettel és fejlődő infrastruktúrával.
Ne hagyja ki ezt a kivételes lehetőséget! Vegye fel velünk a kapcsolatot még ma, és biztosítsa új otthonát – akár Otthon Start hitellel is!
- - -
Adatbázisunkban további több ezer ingatlanból választhat, hívjon bizalommal, hogy megtaláljuk a legmegfelelőbbet!
Teljes körű és díjmentes hitel-ügyintézéssel áll rendelkezésére szakértő kollégánk. Kérje személyre szabott ajánlatunkat!
Registration Number
U0048816
                Property Details
Sales
                                        for sale
                                                                                                                                                Legal Status
                                        new
                                                                                                                                                Character
                                        house
                                                                                                                                                                                                                                                                                        Construction Method
                                        brick
                                                                                                                                                                                                                                                                                                                                                                                                                                                                                                    Net Size
                                        93.3 m²
                                                                                                                                                Gross Size
                                        107.5 m²
                                                                                                                                                Plot Size
                                        763 m²
                                                                                                                                                Size of Terrace / Balcony
                                        14.2 m²
                                                                                                                                                                                                                                                                                                                                                                                                                                Heating
                                        Gas circulator
                                                                                                                                                Ceiling Height
                                        260 cm
                                                                                                                                                                                                                    Orientation
                                        South
                                                                                                                                                                                                                                                                                        Condition
                                        Excellent
                                                                                                                                                Condition of Facade
                                        Excellent
                                                                                                                                                                                                                                                                                        Neighborhood
                                        quiet, green
                                                                                                                                                Year of Construction
                                        2025
                                                                                                                                                Number of Bathrooms
                                        1
                                                                                                                                                                                                                                                                                                                                                                                                                                                                                                                                                                                                                                                                                                                Water
                                        Available
                                                                                                                                                Gas
                                        Available
                                                                                                                                                Electricity
                                        Available
                                                                                                                                                Sewer
                                        Available
                                                                                                                                                                                                                                                                                                                                                                                                                                                                                                                                                                                            Rooms
entryway
                                        7.4 m²
                                                                            toilet
                                        1.8 m²
                                                                            corridor
                                        3.3 m²
                                                                            bathroom
                                        8.1 m²
                                                                            bedroom
                                        12 m²
                                                                            bedroom
                                        12 m²
                                                                            bedroom
                                        8.28 m²
                                                                            kitchen
                                        7.92 m²
                                                                            dining room
                                        9.9 m²
                                                                            living room
                                        20.6 m²
                                                                            terrace
                                        14.25 m²
                                                                     
            
                            Joó Krisztina
Credit Expert
 
                    
                 
                         
                         
                         
                    
                 
                 
                 
                 
                 
                 
                 
                 
                 
                 
                 
                