data_sheet.details.realestate.section.main.otthonstart_flag.label
For sale new construction family house,
U0047222
Vácrátót, Szent István-lakópark
74,850,000 Ft
193,000 €
- 80m²
- 4 Rooms









ÚJ ÉPÍTÉSŰ FÖLDSZINTES CSALÁDI HÁZ LAKÓPARKBAN ELADÓ!
Vácrátót egyik legfelkapottabb részén, a Szent István-LAKÓPARKBAN várja Önt ez az új építésű, PRÉMIUM kivitelezésű családi ház.
A környék BIZTONSÁGOS, barátságos lakóközösséggel rendelkezik, amely ideális választás CSALÁDOK számára, de befektetési célokra is tökéletes lehetőség.
A tömegközlekedési lehetőségek kiválóak, így a város többi része is könnyen elérhető, legyen szó munkáról vagy szabadidős programokról.
A Szent István-lakópark CSÖNDES környezete garantálja a NYUGODT életvitelt, miközben a város központja és a legfontosabb közlekedési csomópontok mindössze néhány percre találhatók.
Ez az újonnan épülő ingatlan ebben a különleges lakóparkban nem csupán egy OTTHON, hanem egy ÉLETSTÍLUS, amely a modern kényelmet és a természet közelségét ötvözi, és ahol a kutyát sétáltató és babakocsit tologató szomszédok kedvesen egymásra köszönnek.
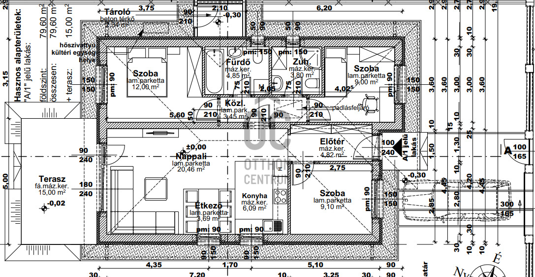
Az ingatlan 80 négyzetméteres alapterülettel és egy 400 négyzetméteres kerttel rendelkezik, amely tökéletes helyszín a pihenéshez és a szabadidős tevékenységekhez.
A házban NÉGY TÁGAS SZOBA található, amelyek világos és barátságos teret adnak lakóinak.
A 30nm-es AMERIKAI KONYHÁS nappali a modern életstílusnak megfelelően lesz kialakítva és ideális helyszín lesz a családi összejövetelekhez vagy baráti találkozókhoz.
A 2 FÜRDŐSZOBA egyedi tervezésű, a legújabb trendeknek megfelelő burkolatokkal lesznek kivitelezve.
Az egyik fürdő kádas, a másik zuhanyzós, mindkettőben van wc és kézmosó, ami nagyban "csökkenti a sorállást" a reggeli és esti készülődéseknél.
A 15 négyzetméteres TERASZRÓL gyönyörű kilátás nyílik a kertünkre, a rendezett lakóparkra és a csöndes utcára.
A kert és terasz tökéletes helyszín a reggeli kávé elfogyasztására vagy a naplementék élvezetére.
Az ingatlan HŐSZIVATTYÚVAL és PADLÓFŰTÉSSEL rendelkezik, amely nemcsak környezetbarát, hanem gazdaságos megoldást is jelent a fűtési költségek csökkentésére.
Az árban benne van egy viacolorozott AUTÓBEÁLLÓ és egy KERTI TÁROLÓ is.
A PRÉMIUM kivitelezés és a VILÁGOS terek egyedülálló élményt kínálnak, ráadásul a burkolatok még választhatók, így a kialakításba Ön még beleszólhat.
Amennyiben bármilyen kérdése van az ingatlannal vagy a környékkel kapcsolatban, vagy szeretné megtekinteni, hívjon bizalommal a hét bármely napján.
Irodánk ingyen Csok+ és hitelügyintézéssel támogatja a vásárlókat.
A környék BIZTONSÁGOS, barátságos lakóközösséggel rendelkezik, amely ideális választás CSALÁDOK számára, de befektetési célokra is tökéletes lehetőség.
A tömegközlekedési lehetőségek kiválóak, így a város többi része is könnyen elérhető, legyen szó munkáról vagy szabadidős programokról.
A Szent István-lakópark CSÖNDES környezete garantálja a NYUGODT életvitelt, miközben a város központja és a legfontosabb közlekedési csomópontok mindössze néhány percre találhatók.
Ez az újonnan épülő ingatlan ebben a különleges lakóparkban nem csupán egy OTTHON, hanem egy ÉLETSTÍLUS, amely a modern kényelmet és a természet közelségét ötvözi, és ahol a kutyát sétáltató és babakocsit tologató szomszédok kedvesen egymásra köszönnek.
Az ingatlan 80 négyzetméteres alapterülettel és egy 400 négyzetméteres kerttel rendelkezik, amely tökéletes helyszín a pihenéshez és a szabadidős tevékenységekhez.
A házban NÉGY TÁGAS SZOBA található, amelyek világos és barátságos teret adnak lakóinak.
A 30nm-es AMERIKAI KONYHÁS nappali a modern életstílusnak megfelelően lesz kialakítva és ideális helyszín lesz a családi összejövetelekhez vagy baráti találkozókhoz.
A 2 FÜRDŐSZOBA egyedi tervezésű, a legújabb trendeknek megfelelő burkolatokkal lesznek kivitelezve.
Az egyik fürdő kádas, a másik zuhanyzós, mindkettőben van wc és kézmosó, ami nagyban "csökkenti a sorállást" a reggeli és esti készülődéseknél.
A 15 négyzetméteres TERASZRÓL gyönyörű kilátás nyílik a kertünkre, a rendezett lakóparkra és a csöndes utcára.
A kert és terasz tökéletes helyszín a reggeli kávé elfogyasztására vagy a naplementék élvezetére.
Az ingatlan HŐSZIVATTYÚVAL és PADLÓFŰTÉSSEL rendelkezik, amely nemcsak környezetbarát, hanem gazdaságos megoldást is jelent a fűtési költségek csökkentésére.
Az árban benne van egy viacolorozott AUTÓBEÁLLÓ és egy KERTI TÁROLÓ is.
A PRÉMIUM kivitelezés és a VILÁGOS terek egyedülálló élményt kínálnak, ráadásul a burkolatok még választhatók, így a kialakításba Ön még beleszólhat.
Amennyiben bármilyen kérdése van az ingatlannal vagy a környékkel kapcsolatban, vagy szeretné megtekinteni, hívjon bizalommal a hét bármely napján.
Irodánk ingyen Csok+ és hitelügyintézéssel támogatja a vásárlókat.
Registration Number
U0047222
Property Details
Sales
for sale
Legal Status
new
Character
house
Construction Method
brick
Net Size
80 m²
Gross Size
88 m²
Plot Size
400 m²
Size of Terrace / Balcony
15 m²
Heating
heat pump
Ceiling Height
270 cm
Orientation
South-West
Condition
Excellent
Condition of Facade
Excellent
Neighborhood
quiet, green
Year of Construction
2025
Number of Bathrooms
1
Water
Available
Gas
Available
Electricity
Available
Sewer
Available
Storage
Independent
Rooms
entryway
4.82 m²
room
9.1 m²
open-plan kitchen and living room
3024 m²
corridor
3.45 m²
room
9 m²
room
12 m²
bathroom-toilet
4.85 m²
bathroom-toilet
3.8 m²
terrace
15 m²
storage
2.34 m²

Víg Attila
Credit Expert