data_sheet.details.realestate.section.main.otthonstart_flag.label
For sale new construction row house,
P3907-39-02-NA-164
Vác, Alsóváros
75,900,000 Ft
201,000 €
- 73m²
- 3 Rooms
VÁCON a KASTÉLYLIGET LAKÓPARKBAN kínálunk eladásra ÚJ ÉPÍTÉSŰ sorházakat 2027-es átadással!
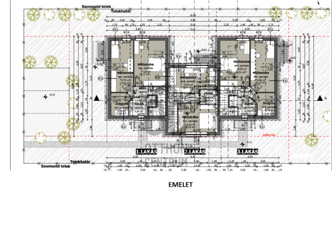
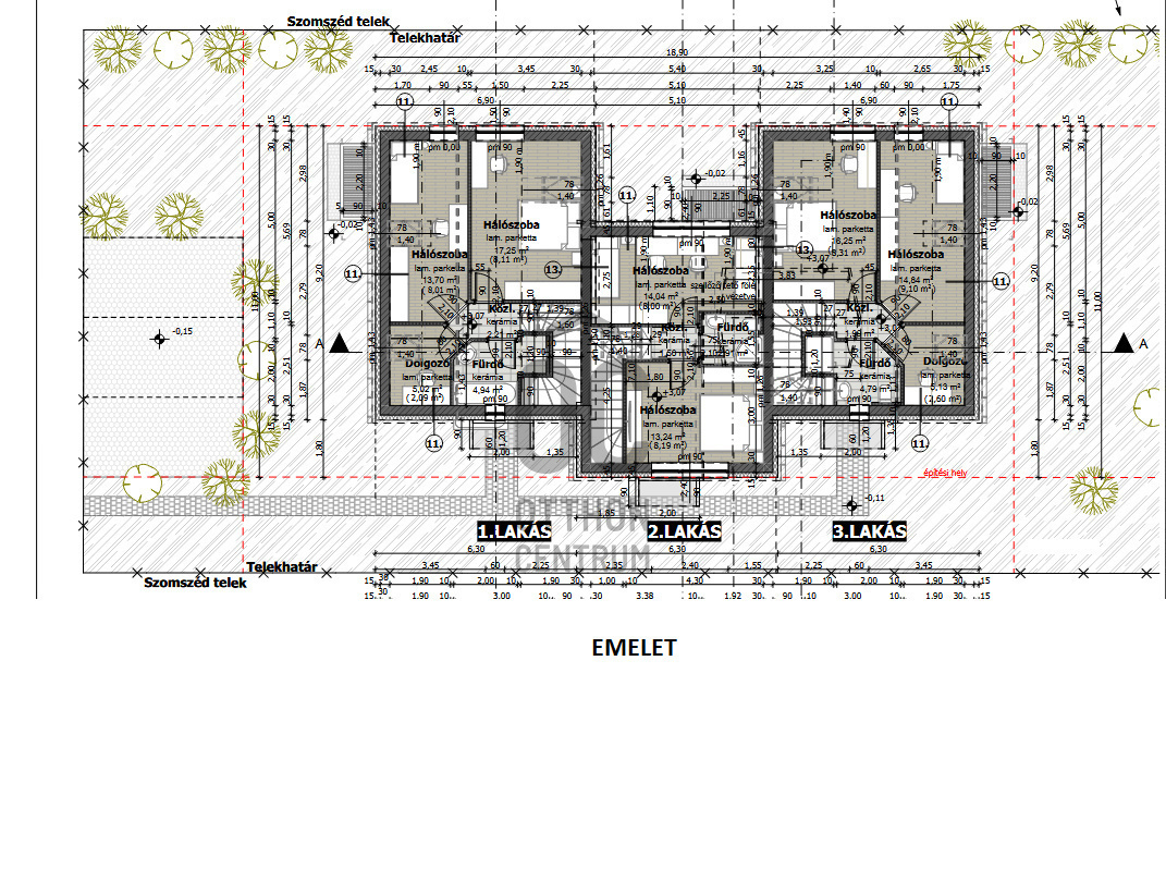
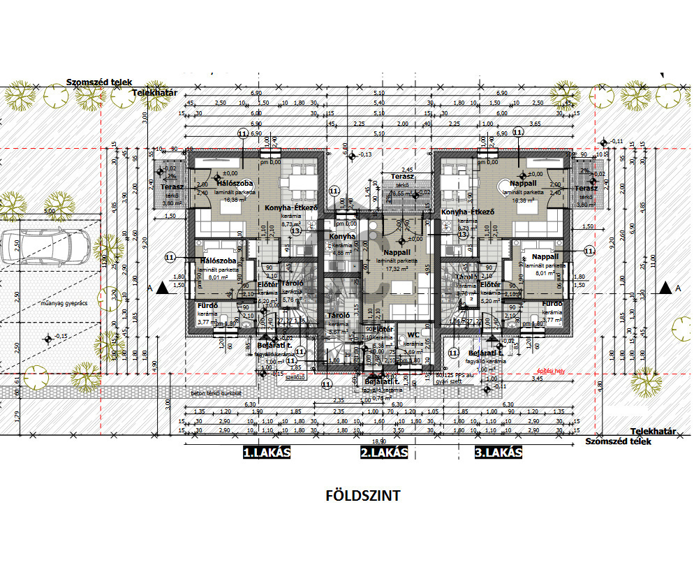
A háromlakásos sorház két szélső lakása 96-96 nm, a középső lakás pedig 73 nm alapterületű.
Valamennyi lakás belső kétszintes tetőtér beépítéses, mindkét szinten 1-1 fürdőszobával rendelkezik.
Minden lakáshoz külön bejárat, saját használatú változó nagyságú körbekerített kert és kocsibeálló tartozik.
A vásárláshoz valamennyi OTTHONTEREMTÉSI TÁMOGATÁS és az ILLETÉKKEDVEZMÉNY is igénybe vehető.
CÉGES ÉPÍTKEZÉS !
KORSZERŰ ALACSONY ENERGIAIGÉNYŰ OTTHONOK.
A 73 nm-es belső kétszintes lakások földszintjén tároló, WC, konyha-étkező, valamint egy kertkapcsolatos nappali kapott helyet.
A tetőtérben két hálószoba , közlekedő és egy zuhanyzó+WC található.
A hirdetés az alaprajzon látható 2. számú középső lakásra vonatkozik, melynek ára 75,9 M Ft.
A második ütemben épülő 3 és 4 lakásos sorházak belső kétszintesek, 71 nm, 73 nm, 84 nm, és 96 nm-es kivitelben elérhetőek.
Választható lakások:
- 71 nm-es. Földszintjén konyha, WC, étkező, kertkapcsolatos nappalival. Tetőtérben 2 háló, fürdő+WC,és gardrób.
Vételár :70,9-73,9 M Ft.
- 73 nm-es . Földszinten konyha-étkező, kertkapcsolatos nappali, tároló, fürdő+WC. Tetőtérben 2 háló , közlekedő, zuhanyzó+WC.
Vételár: 75,9 M Ft.
- 84 nm-es. Földszinten konyha-étkező, nappali kertkapcsolattal, kamra, WC, gardrób. Tetőtérben 3 háló, fürdő+WC, gardrób.
Vételár: 85,9-98,9 M Ft.
- 96 nm-es. Földszinten 1 háló, konyha-étkező, kertkapcsolatos nappali, fürdő+WC és tároló. Tetőtérben 2 háló, dolgozószoba, és fürdő.
Vételár:
A belső 3. számú lakás eladási ára 99,9 M Ft.
Az utcafronti 1. számú lakás eladási ára 97,9 M Ft.
A sorház modern stílusban praktikus elosztással lett tervezve, hogy minél élhetőbb és barátságosabb otthont biztosítson a leendő
tulajdonosának és családjának.
Csendes nyugodt környék, átmenőforgalomtól mentes külvárosias környezetben, aszfaltozott úthálózattal, térkövezett járdákkal
és közvilágítással.
Átgondolt tervezés, minőségi anyaghasználat és precíz kivitelezés egy megbízható referenciákkal bíró kivitelezőtől.
Műszaki paraméterek:
-Sávalapozás 60 cm szélességben. Külső falazat 30 cm-es kerámia blokk+15 cm homlokzati szigetelés
-Lakáselválasztó fal 30-as hanggátló téglából.
-Földszinten műanyag nyílászárók 3 rétegű üvegezéssel, kiegészítve beépített hőszigetelt redőnytokkal elektromos előkészítéssel.
-Hőszivattyús fűtés, a földszinten és az emeleten is padlófűtéssel.
-Elektromos és gépészeti előcsövezés a fan-coil rendszerhez.
-Opcionális lehetőség a teljes fan-coil rendszer kivitelezéséhez.
-Riasztó és kaputelefon előkészítés.
-Az elektromos hálózat 1x32A, de 3 fázisra bővíthetőségre előkészítve.
-H tarifás mérőóra.
Közlekedés:
-Buszmegálló 5 perc sétával elérhető, ahonnan a Vác-alsóvárosi vasútállomás 3 perc
-Vác-Alsóváros-Bp Nyugati pályaudvar 29 perc vonattal
-Autóval az M2-es autóúton 20 perc alatt elérhető Budapest
Amivel segíteni tudjuk az Ön ingatlanvásárlását:
-ingyenes, bankfüggetlen hitelügyintézés
-értékbecslés
-jogi háttér
-földhivatali ügyintézés
-energetikai tanúsítvány készítése
Amennyiben a hirdetés felkeltette érdeklődését kérem forduljon hozzám bizalommal.
A háromlakásos sorház két szélső lakása 96-96 nm, a középső lakás pedig 73 nm alapterületű.
Valamennyi lakás belső kétszintes tetőtér beépítéses, mindkét szinten 1-1 fürdőszobával rendelkezik.
Minden lakáshoz külön bejárat, saját használatú változó nagyságú körbekerített kert és kocsibeálló tartozik.
A vásárláshoz valamennyi OTTHONTEREMTÉSI TÁMOGATÁS és az ILLETÉKKEDVEZMÉNY is igénybe vehető.
CÉGES ÉPÍTKEZÉS !
KORSZERŰ ALACSONY ENERGIAIGÉNYŰ OTTHONOK.
A 73 nm-es belső kétszintes lakások földszintjén tároló, WC, konyha-étkező, valamint egy kertkapcsolatos nappali kapott helyet.
A tetőtérben két hálószoba , közlekedő és egy zuhanyzó+WC található.
A hirdetés az alaprajzon látható 2. számú középső lakásra vonatkozik, melynek ára 75,9 M Ft.
A második ütemben épülő 3 és 4 lakásos sorházak belső kétszintesek, 71 nm, 73 nm, 84 nm, és 96 nm-es kivitelben elérhetőek.
Választható lakások:
- 71 nm-es. Földszintjén konyha, WC, étkező, kertkapcsolatos nappalival. Tetőtérben 2 háló, fürdő+WC,és gardrób.
Vételár :70,9-73,9 M Ft.
- 73 nm-es . Földszinten konyha-étkező, kertkapcsolatos nappali, tároló, fürdő+WC. Tetőtérben 2 háló , közlekedő, zuhanyzó+WC.
Vételár: 75,9 M Ft.
- 84 nm-es. Földszinten konyha-étkező, nappali kertkapcsolattal, kamra, WC, gardrób. Tetőtérben 3 háló, fürdő+WC, gardrób.
Vételár: 85,9-98,9 M Ft.
- 96 nm-es. Földszinten 1 háló, konyha-étkező, kertkapcsolatos nappali, fürdő+WC és tároló. Tetőtérben 2 háló, dolgozószoba, és fürdő.
Vételár:
A belső 3. számú lakás eladási ára 99,9 M Ft.
Az utcafronti 1. számú lakás eladási ára 97,9 M Ft.
A sorház modern stílusban praktikus elosztással lett tervezve, hogy minél élhetőbb és barátságosabb otthont biztosítson a leendő
tulajdonosának és családjának.
Csendes nyugodt környék, átmenőforgalomtól mentes külvárosias környezetben, aszfaltozott úthálózattal, térkövezett járdákkal
és közvilágítással.
Átgondolt tervezés, minőségi anyaghasználat és precíz kivitelezés egy megbízható referenciákkal bíró kivitelezőtől.
Műszaki paraméterek:
-Sávalapozás 60 cm szélességben. Külső falazat 30 cm-es kerámia blokk+15 cm homlokzati szigetelés
-Lakáselválasztó fal 30-as hanggátló téglából.
-Földszinten műanyag nyílászárók 3 rétegű üvegezéssel, kiegészítve beépített hőszigetelt redőnytokkal elektromos előkészítéssel.
-Hőszivattyús fűtés, a földszinten és az emeleten is padlófűtéssel.
-Elektromos és gépészeti előcsövezés a fan-coil rendszerhez.
-Opcionális lehetőség a teljes fan-coil rendszer kivitelezéséhez.
-Riasztó és kaputelefon előkészítés.
-Az elektromos hálózat 1x32A, de 3 fázisra bővíthetőségre előkészítve.
-H tarifás mérőóra.
Közlekedés:
-Buszmegálló 5 perc sétával elérhető, ahonnan a Vác-alsóvárosi vasútállomás 3 perc
-Vác-Alsóváros-Bp Nyugati pályaudvar 29 perc vonattal
-Autóval az M2-es autóúton 20 perc alatt elérhető Budapest
Amivel segíteni tudjuk az Ön ingatlanvásárlását:
-ingyenes, bankfüggetlen hitelügyintézés
-értékbecslés
-jogi háttér
-földhivatali ügyintézés
-energetikai tanúsítvány készítése
Amennyiben a hirdetés felkeltette érdeklődését kérem forduljon hozzám bizalommal.
Registration Number
P3907-39-02-NA-164
Property Details
Sales
for sale
Legal Status
new
Character
house
Construction Method
brick
Net Size
73 m²
Gross Size
73 m²
Plot Size
600 m²
Heating
heat pump (air-to-air)
Ceiling Height
270 cm
Number of Levels Within the Property
2
Orientation
South
Condition
Excellent
Condition of Facade
Excellent
Condition of Staircase
Excellent
Neighborhood
quiet, green
Year of Construction
2026
Number of Bathrooms
2
Condominium Garden
yes
Water
Available
Electricity
Available
Sewer
Available
Storage
Independent
Rooms
entryway
3.91 m²
bathroom-toilet
4.39 m²
storage
1.52 m²
storage
3.58 m²
staircase
1.26 m²
corridor
0.83 m²
living room
16.03 m²
kitchen
5.13 m²
staircase
3.41 m²
corridor
1.56 m²
bathroom-toilet
3.36 m²
bedroom
13.54 m²
bedroom
14.7 m²
Bán Marianna
Credit Expert