data_sheet.details.realestate.section.main.otthonstart_flag.label
For sale apartment, OHH180290
Mosonmagyaróvár, Városközpont

44,900,000 Ft

116,000 €

  • 47m²
  • 2 Rooms
  • ground floor
Exclusive Contract


MOSONMAGYARÓVÁR BELVÁROS KÖZELI, legjobb helyen lévő részén eladó egy 47 M²- es, stílusos, modern, fiatalos hangulatú társasházi lakás, amely kiváló elosztásával igazán kellemes, harmonikus otthont kínál.

A TÉGLAépítésű, újszerű, AMERIKAI KONYHA NAPPALIs és 1 külön HÁLÓSZOBÁS lakás egy 2008. évben épült társasház FÖLDSZINTjén található.    A napfényes terek, az amerikai konyhás nappali és a külön hálószoba KÉNYELMES, JÓL ÉLHETŐ LAKÓTERET biztosítanak.
A lakás központi élettere a tágas amerikai konyha–nappali, ahol a természetes fény, a nyitott tér kellemes, BARÁTSÁGOS HANGULATot teremt, a főzés, a beszélgetések és a mindennapi élet természetes TALÁLKAHELYe!

A nappali és a teljes lakás kellemes hőmérsékletét még a legmelegebb nyári napokon is biztosítja a pár éve üzembe helyezett HŰTŐ-FŰTŐ KLÍMA.
A fűtésről és a melegvíz ellátásáról a legmodernebb, leggazdaságosabb saját kondenzációs kazán gondoskodik!
A lakás KIVÁLÓ BENAPOZOTTSÁGának köszönhetően pedig a helyiségek egész nap világosak és barátságosak.
Praktikus megoldás, hogy a WC KÜLÖN helyiségben található, ami a mindennapos komfortot tovább növeli.

A teljes méretű ABLAKKAL RENDELKEZŐ külön HÁLÓSZOBA nyugodt elvonulási lehetőséget, meghitt pihenést biztosít!

A lakás FELÚJÍTOTT állapotú, AZONNAL KÖLTÖZHETŐ!

*
TÁGAS konyha étkezővel, nappalival

*
Fürdőszoba ZUHANYZÓval

*
KÜLÖN WC

*
KÜLÖN HÁLÓSZOBA

*
Hűtő - fűtő klíma

*
TÉGLA falazat és beton födém

A társasház előtt INGYENES PARKOLÁSt biztosító parkoló található a gépkocsik számára, amely különösen értékes ebben a városban.

Lokáció szempontjából kiváló választás:

- BELVÁROSI LAKÁS

- Közelben található több ÉLELMISZERÜZLET

- ISKOLA, ÓVODA, BÖLCSŐDE sétatávolságra található

- LAJTA folyó 50 méterre csörgedezik

- A VÁR közvetlen közelében helyezkedik el

 - Éttermek, kávézók, cukrászdák, fagyizók a közelben

 - Sétálóutca a szomszéd utcában

- BUSZMEGÁLLÓ kettő perc sétára van, így a logisztika, közlekedés és életminőség szempontjából is ideális választás

A lakás IDEÁLIS VÁLASZTÁS lehet ELSŐ OTTHONnak, EGYEDÜLÁLLÓKnak, FIATAL PÁRoknak, EGY GYERMEKES CSALÁDoknak, vagy akár BEFEKTETŐKnek, hiszen a jól kihasználható terek és a barátságos hangulat hosszú távon is ÉRTÉKET KÉPVISELnek.
Ha egy STÍLUSOS, MODERN, FIATALOS HANGULATÚ, NAPFÉNYES, KÖNNYEN SZERETHETŐ OTTHONt keres, amely azonnal HARMONIKUS HANGULATot áraszt, érdemes személyesen is MEGTEKINTENI!

Registration Number

OHH180290

Property Details

Sales
for sale
Legal Status
used
Character
apartment
Construction Method
brick
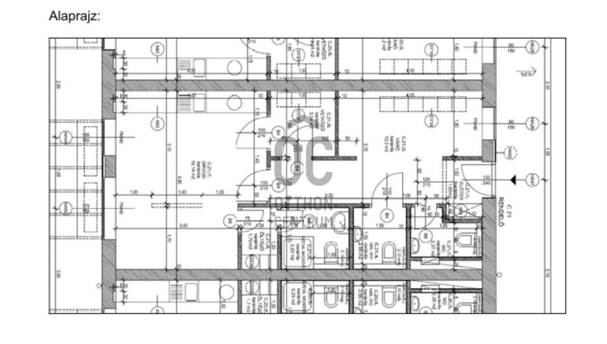
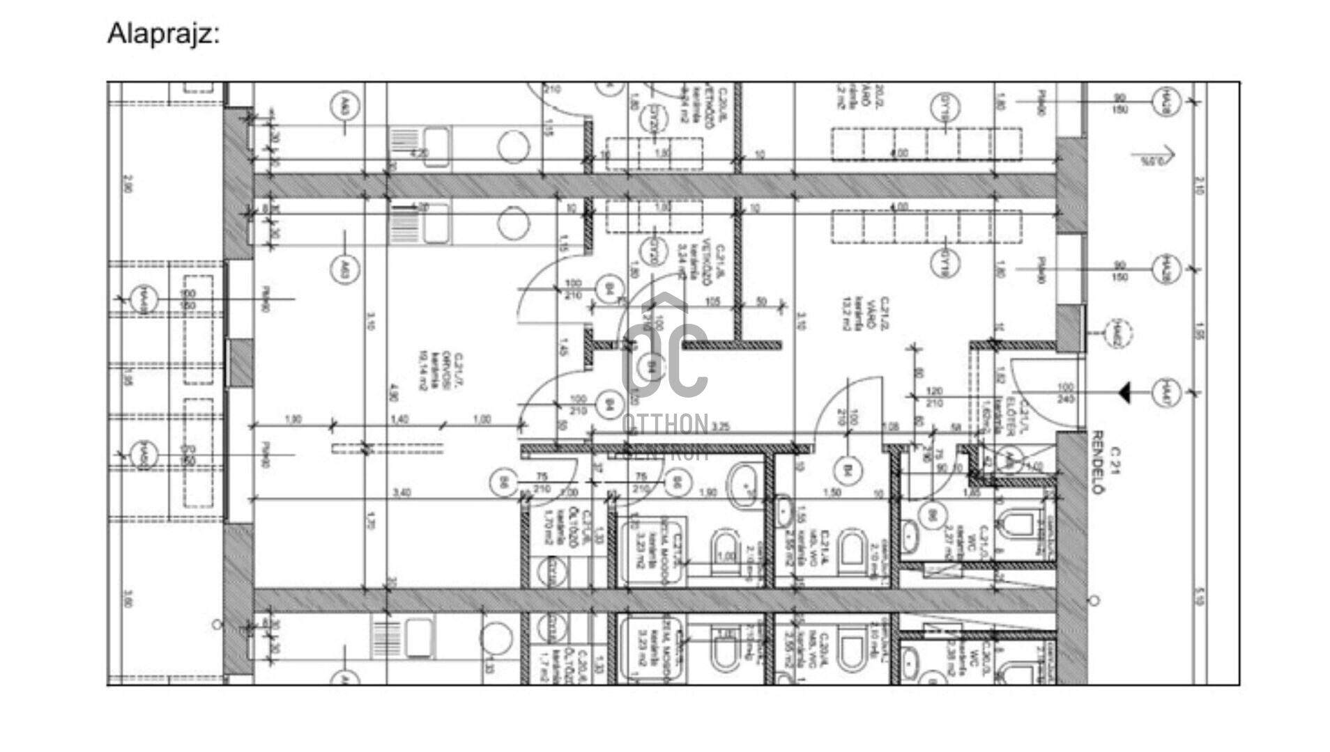
Net Size
47 m²
Heating
other
Condition
Good
Year of Construction
2008

Rooms

other
19.14 m²
other
13.2 m²
corridor
1.62 m²
corridor
1.7 m²
bathroom
3.23 m²
toilet
2.38 m²
toilet
2.55 m²
storage
3.24 m²

From Our Office Listings - Győr - Batthyány tér

for sale new construction family house

Index image
data_sheet.details.realestate.section.main.otthonstart_flag.label
9

for sale apartment

Index image
18

for sale apartment

Index image
data_sheet.details.realestate.section.main.otthonstart_flag.label
14

for sale family house

Index image
data_sheet.details.realestate.section.main.otthonstart_flag.label
20

for sale family house

Index image
23

for sale family house

Index image
data_sheet.details.realestate.section.main.otthonstart_flag.label
39

for sale family house

Index image
26

for sale family house

Index image
data_sheet.details.realestate.section.main.otthonstart_flag.label
23

for sale family house

Index image
data_sheet.details.realestate.section.main.otthonstart_flag.label
18

for sale apartment

Index image
data_sheet.details.realestate.section.main.otthonstart_flag.label
11