data_sheet.details.realestate.section.main.otthonstart_flag.label
For sale family house,
OHH177325
Bőszénfa
10,900,000 Ft
28,000 €
- 73.7m²
- 3 Rooms
- ground floor





























FELÚJÍTANDÓ CSALÁDI HÁZ ELADÓ BŐSZÉNFA SZÍVÉBEN – A ZSELIC KAPUJÁBAN!
Bőszénfa központi részén, a NEMZEDÉKEK PARKJA szomszédságában kínálunk eladásra egy 76 M²-ES, 3 SZOBÁS CSALÁDI HÁZAT, amely egy IMPOZÁNS, 5356 M²-ES TELKEN helyezkedik el.
Az ingatlan jellemzői:
* Felújítandó állapot – alakítsa saját igényei szerint!
* Hagyományos fa nyílászárók
* Ásott kút és pince a telken
* Víz és gáz telken belül, villany az utcában
Környezet és elhelyezkedés:
* Közvetlenül a NEMZEDÉKEK PARKJA mellett: játszótér, sétányok, dísztó és sportpályák
* Pár perc sétára a BŐSZÉNFAI SZARVASFARMTÓL – családi programok, állatsimogatás
* A ZSELICI DOMBVIDÉK kapujában – csendes, zöld környezet, friss levegő
FEDEZZE FEL A NYUGALOM SZIGETÉT SOMOGYBAN!
ZSELICI TÁJ – AHOL A TERMÉSZET MESÉL:
Bőszénfa a Zselici Tájvédelmi Körzet kapujában fekszik, ahol dombos erdők, patakok és tiszta égbolt várja a természetkedvelőket. A környék különlegessége a Zselici Csillagpark, valamint a híres Bőszénfai Szarvasfarm, ahol gímszarvasok, muflonok és vaddisznók élnek. A település ideális választás mindazoknak, akik nyugodt, zöld környezetben, tiszta levegőn, közösségközeli életre vágynak – távol a városi zajtól, mégis minden fontos szolgáltatáshoz közel.
Registration Number
OHH177325
Property Details
Sales
for sale
Legal Status
used
Character
house
Construction Method
brick
Net Size
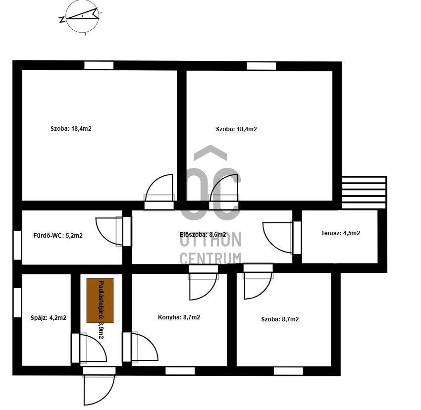
73.7 m²
Plot Size
5,356 m²
Size of Terrace / Balcony
4.5 m²
Heating
other
Condition
To be renovated
Year of Construction
1970
Rooms
room
18.4 m²
room
18.4 m²
room
8.7 m²
kitchen
8.7 m²
entryway
8.6 m²
bathroom
5.2 m²
pantry
4.2 m²
other
3.8 m²
terrace
4.5 m²

Horváth Szabina
Credit Expert