34,900,000 Ft
92,000 €
- 56m²
- 2 Rooms
Dörgicse külterületén, az Agyaglik-dűlőben eladó ez a művelésből kivont, 507 nm-es terület, a rajta feltüntetett 56 nm-es kőházzal.
Az épület kő falazata nyomokban még áll, de elbontandó, helyére a jelenlegi mérettel megegyező gazdasági épület van megtervezve és engedélyeztetve!
Tehát NEM KELL sem kifüggeszteni, sem szőlővel telepíteni, azonnal megkezdhető az építkezés!
A telken áll az új áram bekötés, az úttal határos a telek, tehát egész évben kényelmesen megközelíthető.
Egyéb közmű nincsen, zárt emésztős szennyvíztárolás lehetséges és kútfúrással (vagy ciszternával) megoldható a vízellátás.
A terület minimálisan lejt, körülötte táblás mezőgazdasági területek vannak, szomszédságában kisebb régi pincék, amelyek sorra szépülnek meg. A Balaton is látszódik! ;)
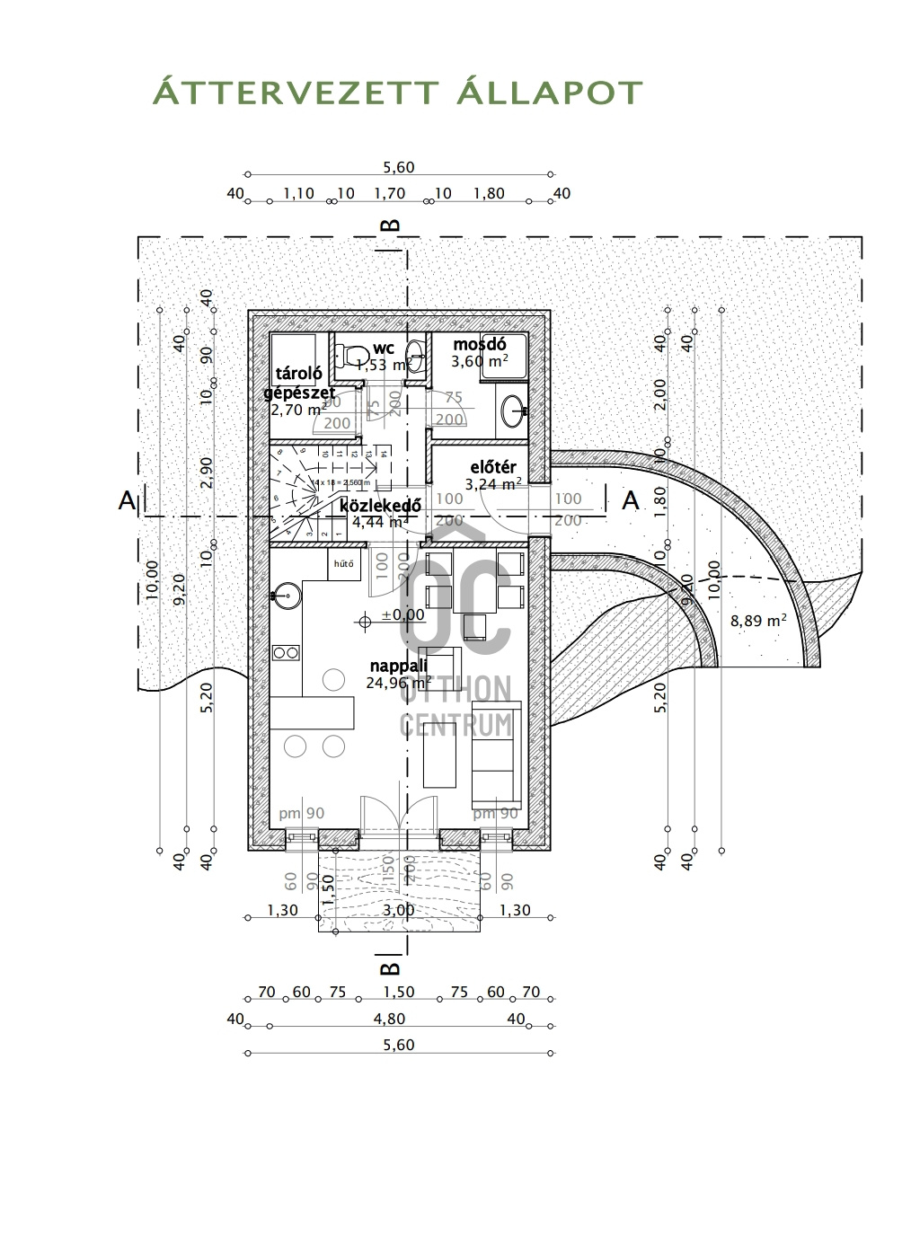
A képek között megtalálható a tervezett épület alaprajza és látványterve, de minden egyéb információ is rendelkezésre áll.
Kevés ilyen lehetőséget találni, jöjjön, nézze meg!
Az épület kő falazata nyomokban még áll, de elbontandó, helyére a jelenlegi mérettel megegyező gazdasági épület van megtervezve és engedélyeztetve!
Tehát NEM KELL sem kifüggeszteni, sem szőlővel telepíteni, azonnal megkezdhető az építkezés!
A telken áll az új áram bekötés, az úttal határos a telek, tehát egész évben kényelmesen megközelíthető.
Egyéb közmű nincsen, zárt emésztős szennyvíztárolás lehetséges és kútfúrással (vagy ciszternával) megoldható a vízellátás.
A terület minimálisan lejt, körülötte táblás mezőgazdasági területek vannak, szomszédságában kisebb régi pincék, amelyek sorra szépülnek meg. A Balaton is látszódik! ;)
A képek között megtalálható a tervezett épület alaprajza és látványterve, de minden egyéb információ is rendelkezésre áll.
Kevés ilyen lehetőséget találni, jöjjön, nézze meg!
Registration Number
NY012994
Property Details
Sales
for sale
Legal Status
used
Character
vacation home
Type of Vacation Home
house
Construction Method
stone
Net Size
56 m²
Gross Size
56 m²
Plot Size
507 m²
Ceiling Height
250 cm
Number of Levels Within the Property
2
Orientation
South
View
Green view
Condition
To be renovated
Condition of Facade
Poor
Neighborhood
quiet, green
Year of Construction
1900
Number of Bathrooms
2
Electricity
Available
Distance to Waterfront
more than 500 meters
Rooms
living room
25 m²
bedroom
13 m²
bathroom-toilet
5 m²
corridor
4 m²
Edve János
Credit Expert