For sale family house, H514760
Budapest XIV. kerület, Alsórákos

169,900,000 Ft

475,000 €

  • 103m²
  • 3 Rooms

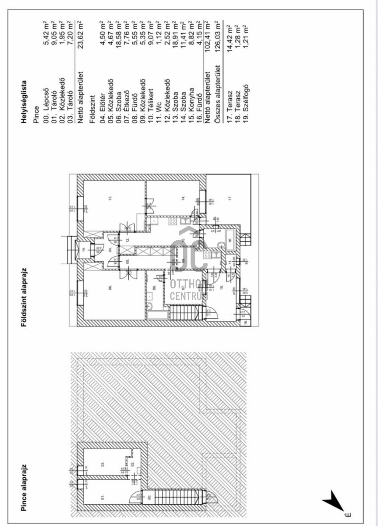
Budapest 14. kerületében, Alsórákos csendes és barátságos utcájában kínálom eladásra ezt a 103 négyzetméteres, használt házat, amely ideális választás lehet családok számára, vagy azoknak, akik befektetési céllal keresnek ingatlant. A 521 négyzetméteres telek lehetőséget biztosít a szabadtéri tevékenységekre, kertészkedésre, vagy akár egy kis pihenőhely kialakítására is, ahol a felnőttek és gyerekek egyaránt élvezhetik a szabadban eltöltött időt. A ház 3 szobával és 1 fürdőszobával rendelkezik, amelyek kényelmes teret biztosítanak a mindennapi élethez. A fűtés gáz (cirko) rendszerrel megoldott, amely biztosítja a kellemes hőmérsékletet a hideg téli hónapokban. Az Alsórákos városrész nemcsak a nyugalom szigete, hanem a környék infrastruktúrája is kiemelkedő. A közlekedés szempontjából kiváló elhelyezkedésének köszönhetően könnyen megközelíthetők a város fontosabb pontjai. A tömegközlekedési lehetőségek, mint például a buszjáratok, gyors és kényelmes közlekedést biztosítanak, így a napi ingázás sem jelent problémát. Ezen kívül a környéken található boltok, iskolák és egészségügyi intézmények mind hozzájárulnak ahhoz, hogy a mindennapi élet kényelmesen és gördülékenyen zajlódjon.
Érdeklődés esetén keressen, akár hétvégén is!

Registration Number

H514760

Property Details

Sales
for sale
Legal Status
used
Character
house
Construction Method
brick
Net Size
103 m²
Gross Size
108 m²
Plot Size
521 m²
Heating
Gas circulator
Ceiling Height
270 cm
Orientation
North-East
Condition
Average
Condition of Facade
Average
Neighborhood
quiet
Year of Construction
1975
Number of Bathrooms
1
Water
Available
Gas
Available
Electricity
Available
Sewer
Available

Rooms

entryway
4.5 m²
corridor
4.67 m²
room
18.587 m²
room
18.91 m²
room
11.41 m²
toilet
4 m²
Németh István
Németh István

Credit Expert

From Our Office Listings - XIII. kerület - Dagály Residence

for sale row house

Index image
data_sheet.details.realestate.section.main.otthonstart_flag.label
9

for sale plot

Index image
7

for sale apartment

Index image
16

for sale apartment

Index image
15

for sale apartment

Index image
10

for sale apartment

Index image
10

for sale apartment

Index image
data_sheet.details.realestate.section.main.otthonstart_flag.label
19