194,900,000 Ft
545,000 €
- 119.4m²
- 4 Rooms
- ground floor
PANORÁMÁS, MODERN, LETISZTULT CSALÁDI OTTHON
Képzeld el, hogy egy olyan otthonra lelsz, amely nemcsak a kényelmet, hanem a modern életstílust is tükrözi!
Törökbálint szívében, a felkapott Tükörhegy városrészben kínálok eladásra egy 120 nm-es, kiváló állapotú , 2021-es építésű, két szintes, kertkapcsolatos lakást, amely tökéletes választás lehet számodra.
Fizikálisan ikerház, és az ikerház másik felével csak a lépcsőház és a fürdőszobák kapcsolódnak.
A lakáshoz 183 nm-es saját használatú kert tartozik, így elegendő hely áll rendelkezésedre a pihenéshez és a szórakozáshoz egyaránt.
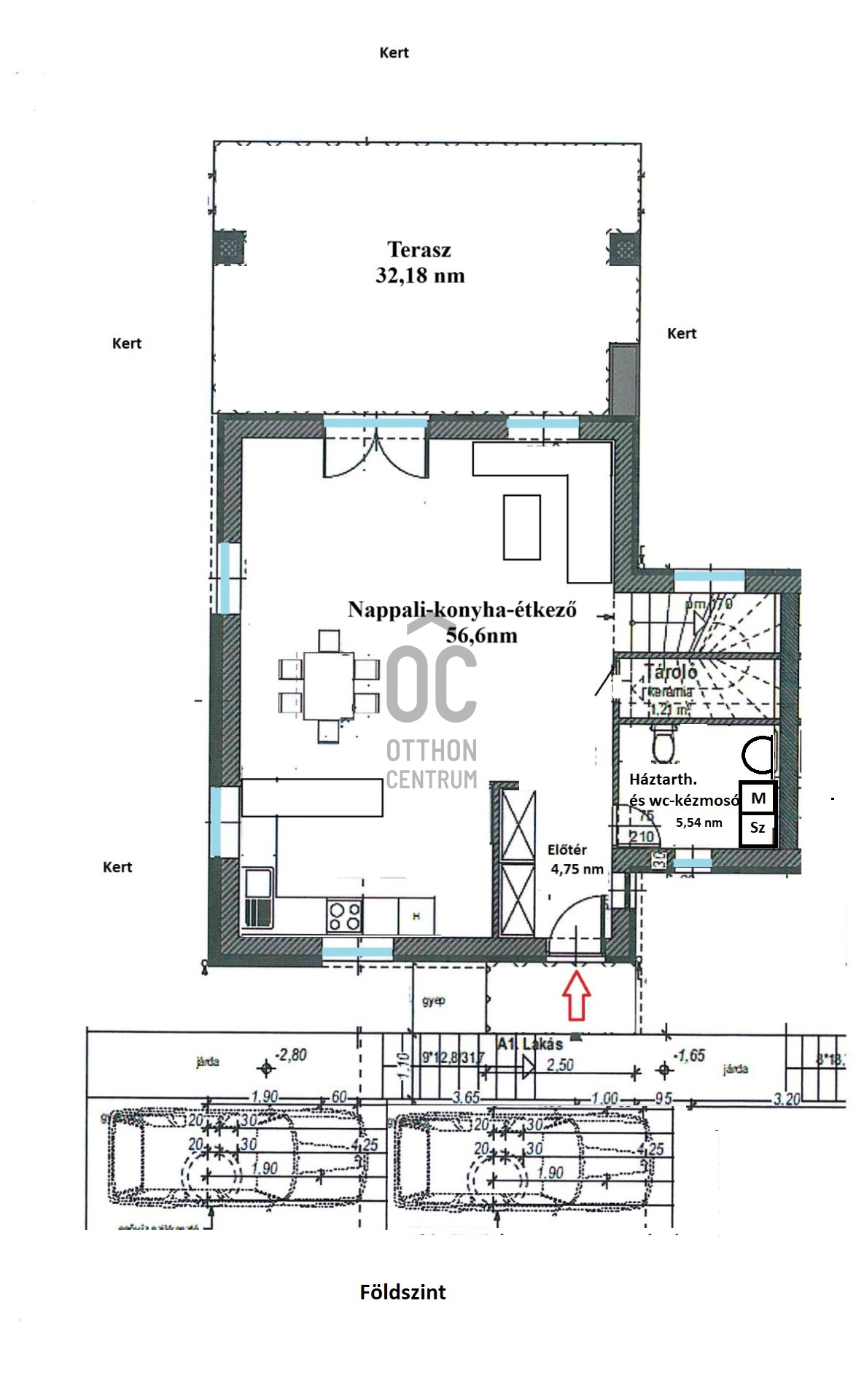
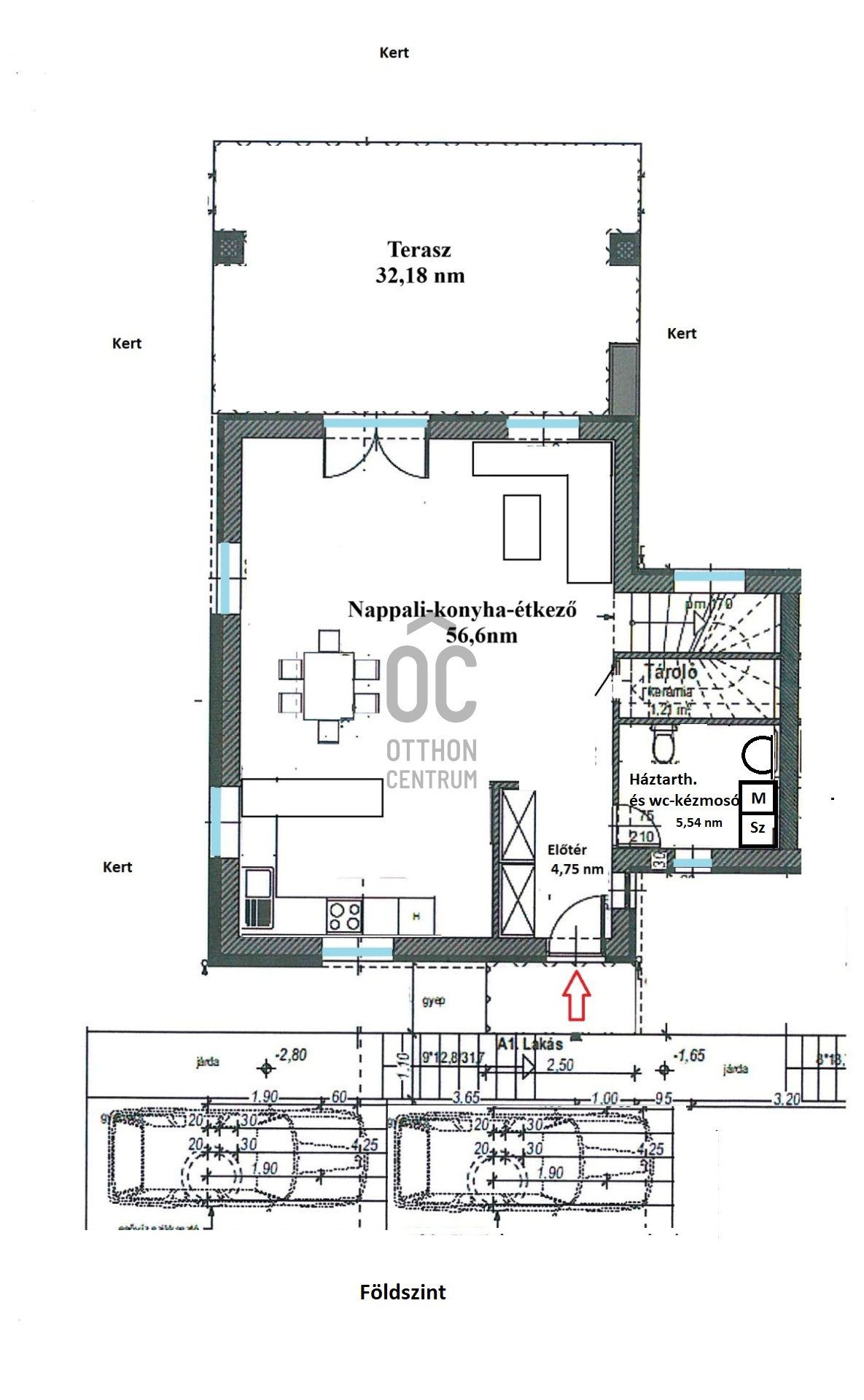
Ez a gyönyörű otthon 4 szobával rendelkezik, melyek között egy tágas nappali is található, ahol barátaiddal és családoddal töltheted el az időt. Fűtése egyedi cirkós, földszinten padlófűtéssel, emeleten radiátoros hőleadókkal.
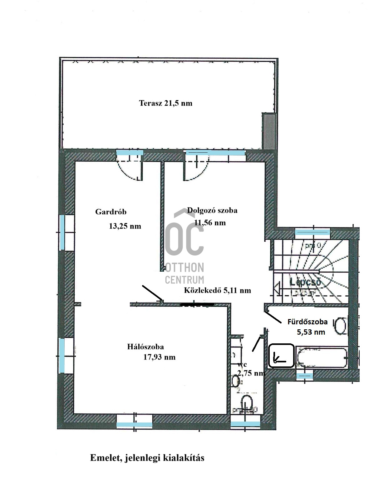
Az ingatlan egyik különlegessége a földszinten lévő 32.18 nm-es terasz és az emeleten lévő 21.45 nm-es terasz, ahonnan csodás panorámás kilátás nyílik a környékre.
Az ingatlan prémium kivitelezésű, és mindezt egy rendezett kert egészíti ki, amely automata öntözőrendszerrel, fűszerkerttel, grillező hellyel ellátott, valamint kerti tárolásra hely is kialakított.
Az 5 fős jakuzzi a kertben egy igazán exkluzív élményt nyújt, ahol a pihenés és a feltöltődés garantált.
A környék csendes, biztonságos, és remek közlekedési lehetőségekkel rendelkezik. Az autóval könnyen megközelítheted a főbb útvonalakat, míg a tömegközlekedés is jó, így a város bármely pontja gyorsan elérhető. Törökbálint nemcsak a fiatalok, hanem a családok körében is népszerű választás, hiszen számos, bolt és szórakozási lehetőség található a közelben.
Extrák, amelyek a mindennapi életed kényelmét szolgálják: padlófűtés, riasztórendszer, 3db hűtő–fűtő klímaberendezések, elektromos redőnyök- szúnyoghálóval, öntözőrendszer, jakuzzi, zuhany és kád is, 2db felszíni autóbeálló, 3 fázis bevezetve, elektromos autó töltő kiépíthető.
Vételár részét képezi az összes beépített bútor és beépített műszaki felszerelés is, 3db hűtő–fűtő klíma, csillárok, lámpatestek és a jakuzzi is.
Minden más bútor és műszaki felszerelés külön megállapodás tárgyát képezi, ha szükség van rájuk.
Ha egy modern, világos és tágas otthonra vágysz, amely minden igényt kielégít, ne habozz!
Ez a tehermentes, rövid birtokbaadási idővel költözhető ingatlan tökéletes választás lehet számodra, legyen szó saját ingatlanról vagy befektetési céllal való vásárlásról.
Az ingatlan ára: 194,9 MFt
2db autóbeálló mely megvásárolandó,darabja 2,5 MFt az ingatlan vételárán felül.
Bármilyen kérdésed van, bizalommal kereshetsz, szívesen segítek neked megtalálni az álmaid otthonát!
(Jelenleg nappali + dolgozószoba + hálószoba-gardrób kialakítású, viszont a tulajdonos vállalja, hogy ha kell visszaalakítja nappali+ 3 hálóssá) Van fotó feltöltve az eredeti emeleti alaprajzról is.
Az energetikai tanúsítvány készítése folyamatban van, amint rendelkezésre áll, úgy azzal a hirdetés frissítésre kerül.
Törökbálint szívében, a felkapott Tükörhegy városrészben kínálok eladásra egy 120 nm-es, kiváló állapotú , 2021-es építésű, két szintes, kertkapcsolatos lakást, amely tökéletes választás lehet számodra.
Fizikálisan ikerház, és az ikerház másik felével csak a lépcsőház és a fürdőszobák kapcsolódnak.
A lakáshoz 183 nm-es saját használatú kert tartozik, így elegendő hely áll rendelkezésedre a pihenéshez és a szórakozáshoz egyaránt.
Ez a gyönyörű otthon 4 szobával rendelkezik, melyek között egy tágas nappali is található, ahol barátaiddal és családoddal töltheted el az időt. Fűtése egyedi cirkós, földszinten padlófűtéssel, emeleten radiátoros hőleadókkal.
Az ingatlan egyik különlegessége a földszinten lévő 32.18 nm-es terasz és az emeleten lévő 21.45 nm-es terasz, ahonnan csodás panorámás kilátás nyílik a környékre.
Az ingatlan prémium kivitelezésű, és mindezt egy rendezett kert egészíti ki, amely automata öntözőrendszerrel, fűszerkerttel, grillező hellyel ellátott, valamint kerti tárolásra hely is kialakított.
Az 5 fős jakuzzi a kertben egy igazán exkluzív élményt nyújt, ahol a pihenés és a feltöltődés garantált.
A környék csendes, biztonságos, és remek közlekedési lehetőségekkel rendelkezik. Az autóval könnyen megközelítheted a főbb útvonalakat, míg a tömegközlekedés is jó, így a város bármely pontja gyorsan elérhető. Törökbálint nemcsak a fiatalok, hanem a családok körében is népszerű választás, hiszen számos, bolt és szórakozási lehetőség található a közelben.
Extrák, amelyek a mindennapi életed kényelmét szolgálják: padlófűtés, riasztórendszer, 3db hűtő–fűtő klímaberendezések, elektromos redőnyök- szúnyoghálóval, öntözőrendszer, jakuzzi, zuhany és kád is, 2db felszíni autóbeálló, 3 fázis bevezetve, elektromos autó töltő kiépíthető.
Vételár részét képezi az összes beépített bútor és beépített műszaki felszerelés is, 3db hűtő–fűtő klíma, csillárok, lámpatestek és a jakuzzi is.
Minden más bútor és műszaki felszerelés külön megállapodás tárgyát képezi, ha szükség van rájuk.
Ha egy modern, világos és tágas otthonra vágysz, amely minden igényt kielégít, ne habozz!
Ez a tehermentes, rövid birtokbaadási idővel költözhető ingatlan tökéletes választás lehet számodra, legyen szó saját ingatlanról vagy befektetési céllal való vásárlásról.
Az ingatlan ára: 194,9 MFt
2db autóbeálló mely megvásárolandó,darabja 2,5 MFt az ingatlan vételárán felül.
Bármilyen kérdésed van, bizalommal kereshetsz, szívesen segítek neked megtalálni az álmaid otthonát!
(Jelenleg nappali + dolgozószoba + hálószoba-gardrób kialakítású, viszont a tulajdonos vállalja, hogy ha kell visszaalakítja nappali+ 3 hálóssá) Van fotó feltöltve az eredeti emeleti alaprajzról is.
Az energetikai tanúsítvány készítése folyamatban van, amint rendelkezésre áll, úgy azzal a hirdetés frissítésre kerül.
Registration Number
H513970
Property Details
Sales
for sale
Legal Status
used
Character
apartment
Construction Method
brick
Net Size
119.4 m²
Gross Size
150 m²
Size of Terrace / Balcony
53.6 m²
Garden Size
183 m²
Heating
Gas circulator
Ceiling Height
280 cm
Number of Levels Within the Property
2
Orientation
South-West
Staircase Type
none
Condition
Excellent
Condition of Facade
Excellent
Condition of Staircase
Excellent
Neighborhood
quiet, green
Year of Construction
2020
Number of Bathrooms
1
Position
garden-facing
Condominium Garden
yes
Common Costs
34999
Water
Available
Electricity
Available
Sewer
Available
Connected to Garden
yes
Rooms
open-plan kitchen and living room
56.6 m²
utility room
5.54 m²
entryway
4.75 m²
storage
1.2 m²
staircase
5.25 m²
bedroom
13.25 m²
bedroom
11.56 m²
bedroom
17.93 m²
corridor
5.11 m²
bathroom
5.53 m²
toilet-washbasin
2.75 m²
terrace
32.18 m²
terrace
21.5 m²
Ruczek János
Credit Expert