data_sheet.details.realestate.section.main.otthonstart_flag.label
For sale family house, H511654
Győr, Gyirmót

52,000,000 Ft

133,000 €

  • 60m²
  • 2 Rooms

Természetben!

KIZÁRÓLAG AZ OTTHON CENTRUMNÁL,
KIZÁRÓLAG NÁLAM!

Egy olyan ingatlant ajánlanék amire sokan csak vágynak!!!

Saját vízparti, állandó lakhatásra is kiválóan alkalmas!!!

-Győr-Gyirmót, Horgászfalu
-Tehermentes
-Teljesen egészében tégla
-Kompletten felújított
-Szigetelt!!!!
-2 szobás
-Óriási fedett terasszal
-Tárolóval
-Garázzsal
-Cserépkályha illetve klímás hűtés/fűtés
-SAJÁT STÉGGEL
-Erkéllyel
-Telek körbekerítve
-Parkosított
-Kifejezetten a természet és a víz szerelmeseinek!!!

Ez egy kis “csoda”!

Győri panel ár alatt ez egy vízparti családi ház!!!
A ház akár a koplett bútorzattal átvehető, melyet az ár tartalmaz!

Kérdéseivel, észrevételeivel kérem keressen!
Köszönöm

Registration Number

H511654

Property Details

Sales
for sale
Legal Status
used
Character
house
Construction Method
brick
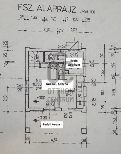
Net Size
60 m²
Gross Size
85 m²
Plot Size
200 m²
Size of Terrace / Balcony
30 m²
Heating
renewable
Ceiling Height
260 cm
Number of Levels Within the Property
2
Orientation
South
Condition
Good
Condition of Facade
Good
Year of Construction
2018
Number of Bathrooms
1
Garage
Included in the price
Garage Spaces
1
Water
Available
Electricity
Available
Storage
Independent

Rooms

open-plan kitchen and dining room
14 m²
room
12 m²
bathroom-toilet
4 m²

From Our Office Listings - Győr - Batthyány tér

for sale family house

Index image
data_sheet.details.realestate.section.main.otthonstart_flag.label
18

for sale apartment

Index image
data_sheet.details.realestate.section.main.otthonstart_flag.label
11

eladó családi ház

Index image
Elérhető Otthon Start hitellel
35

for sale family house

Index image
data_sheet.details.realestate.section.main.otthonstart_flag.label
17

for sale family house

Index image
data_sheet.details.realestate.section.main.otthonstart_flag.label
30

for sale family house

Index image
data_sheet.details.realestate.section.main.otthonstart_flag.label
19

eladó újépítésű lakás

Index image
Elérhető Otthon Start hitellel
10

eladó újépítésű lakás

Index image
Elérhető Otthon Start hitellel
10

eladó újépítésű lakás

Index image
Elérhető Otthon Start hitellel
9