115,000,000 Ft
293,000 €
- 292m²
- 8 Rooms






















Gyenesdiáson, a Balatonhoz közel, több-generációs családiház eladó!
A ház a strandtól kb. 200 méterre, a bevásárló központtól 1 km-re, egy csendes, nyugodt utcában található.
A telek 1197 nm, minimálisan lejtős, gondozott, gyümölcsfákkal telepített.
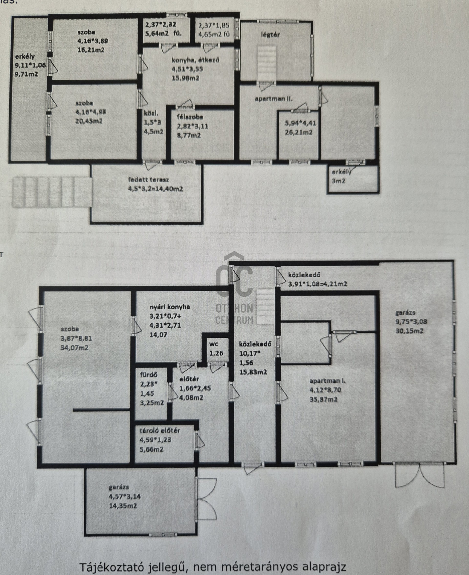
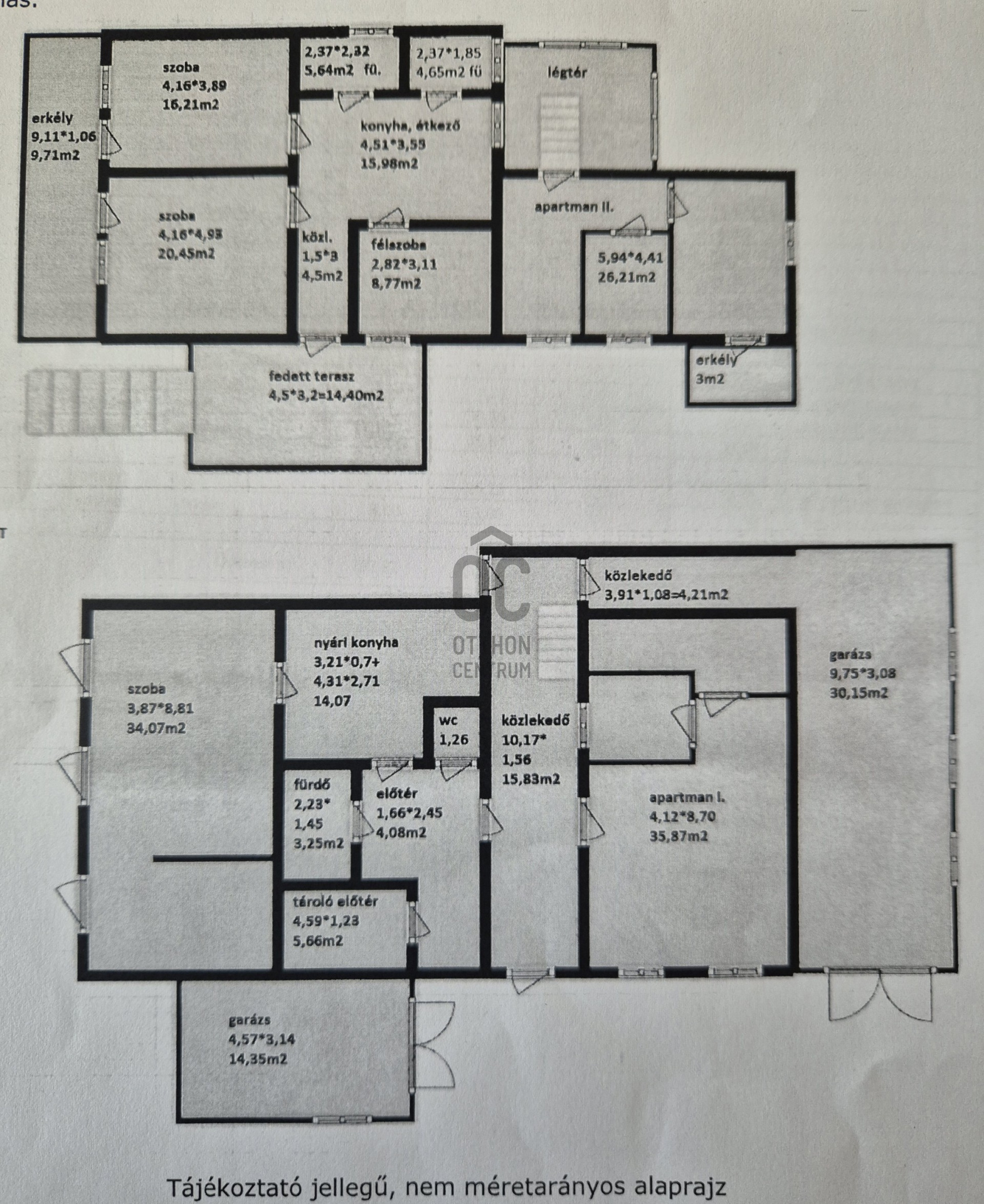
A ház hasznos területe 292 nm, három lakrészre osztott, két garázs is tartozik hozzá.
A három lakrész a következő, szuterén, emelet, és a kert felőli, hátsó lakrész.
Összesen 8 szoba, 5 fürdőszoba, 3 konyha, kazánház, tároló áll rendelkezésre.
Valamennyi közmű be van vezetve.
A fűtés az gáz-cirkóval megoldott.
A nyílászárók egy része már műanyag, hőszigetelt.
A ház csekély mértékű felújítás után lakható, fizető vendég fogadására viszont nagyobb beruházásra lesz szükség.
Amennyiben az ingatlan felkeltette érdeklődését, kérem hívjon bizalommal.
A telek 1197 nm, minimálisan lejtős, gondozott, gyümölcsfákkal telepített.
A ház hasznos területe 292 nm, három lakrészre osztott, két garázs is tartozik hozzá.
A három lakrész a következő, szuterén, emelet, és a kert felőli, hátsó lakrész.
Összesen 8 szoba, 5 fürdőszoba, 3 konyha, kazánház, tároló áll rendelkezésre.
Valamennyi közmű be van vezetve.
A fűtés az gáz-cirkóval megoldott.
A nyílászárók egy része már műanyag, hőszigetelt.
A ház csekély mértékű felújítás után lakható, fizető vendég fogadására viszont nagyobb beruházásra lesz szükség.
Amennyiben az ingatlan felkeltette érdeklődését, kérem hívjon bizalommal.
Registration Number
H508422
Property Details
Sales
for sale
Legal Status
used
Character
house
Construction Method
brick
Net Size
292 m²
Gross Size
320 m²
Plot Size
1,197 m²
Size of Terrace / Balcony
12 m²
Heating
Gas circulator
Ceiling Height
260 cm
Number of Levels Within the Property
2
Orientation
West
View
Green view
Condition
Average
Condition of Facade
Average
Neighborhood
quiet, good transport, green
Year of Construction
1980
Number of Bathrooms
5
Garage
Included in the price
Garage Spaces
3
Water
Available
Gas
Available
Electricity
Available
Sewer
Available
Distance to Waterfront
500 meters
Rooms
room
1 m²
study
1 m²
bedroom
1 m²
room
1 m²
room
1 m²
bedroom
1 m²
bedroom
1 m²
room
1 m²
kitchen
1 m²
kitchen
1 m²
kitchen
1 m²
bathroom-toilet
1 m²
bathroom-toilet
1 m²
bathroom-toilet
1 m²
bathroom-toilet
1 m²
bathroom-toilet
1 m²
garage
1 m²
garage
1 m²