data_sheet.details.realestate.section.main.otthonstart_flag.label
For sale family house,
H502849
Dunabogdány, Ófalu
67,900,000 Ft
175,000 €
- 140m²
- 6 Rooms





















SOKOLDALÚAN HASZNOSÍTHATÓ OTTHON A TEMPLOMKERT SZOMSZÉDSÁGÁBAN!
Dunabogdány Ófalu részén, a Nepomuki Szent János-templom közvetlen közelében, egy hangulatos, csendes, kis utcában, mégis közel a központhoz ELADÓ egy 140 nm alapterületű (bruttó 170) összesen 6 szobás családi ház, mely számos kiaknázatlan potenciált rejt magában!
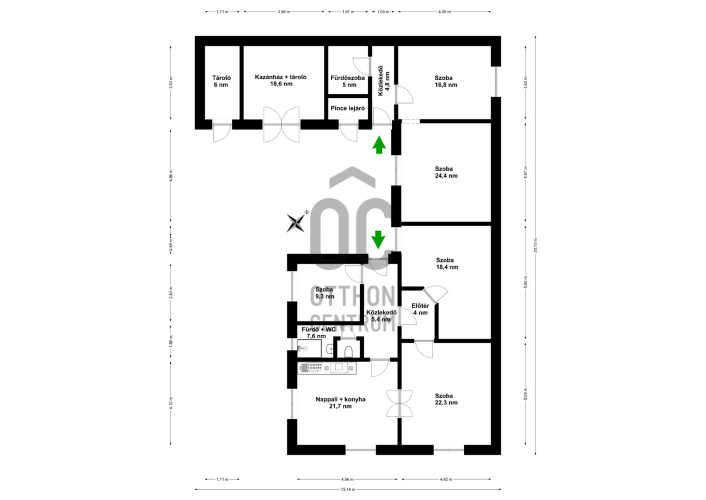
A 1960-as években épült tégla és vegyes falazatú ház két különálló lakrészből áll, melyből jelenleg az egyik lakott, ez összesen 90 nm területű. A világos, amerikai konyhás nappalin kívül három különnyíló szoba és egy zuhanyzóval felszerelt fürdőszoba került kialakításra benne. Ez a része a háznak lakható, átlagos állapotban van, fűtéséről jelenleg gáz kazán gondoskodik radiátoros hőleadókkal, néhány ablaka cserélve lett műanyag nyílászárókra, de javasolt a ház többi részét is korszerűsíteni, felújítani.
A másik lakrész területe 51 nm, amiben jelenleg 2 nagyméretű szoba és egy kádas fürdőszoba található. A háznak ez a része teljesen felújítandó állapotban van így jelenleg nem lakható.
A két lakrész könnyedén egybe nyitható, ezáltal egy tágas terekkel rendelkező, 6 szobás otthon alakítható ki belőle.
Mindkét lakrész külön bejárattal rendelkezik, melyek az udvarból megközelíthetőek, így igény szerint 2 generációnak is tökéletesen alkalmas.
A ház további helyiségekkel is rendelkezik, melyek tárolásra kiválóan alkalmasak. Egy külön bejáratú tároló ami kb 6 nm-es, egy nagy tároló helyiség amiben a kazán is helyett kapott , és egy kis pince ami szintén külön bejárattal rendelkezik.
A telek 364 nm-es, összközműves, a Templom közből lehet megközelíteni, ami egy kis zsákutca összesen néhány házzal.
Az utca végében már a templomkert található mely igazán különleges hangulatot kölcsönöz ennek a területnek.
Az ingatlan különlegessége, hogy csendes, nyugodt környezetben helyezkedik el, mégis pár lépésre a település központjától. Gyalogosan is néhány perc alatt elérhető minden, ami a hétköznapi élethez szükséges.
Iskola, Óvoda, élelmiszerbolt, pékség, Bank, orvosi rendelők, Gyógyszertár, éttermek.
Dunabogdány egy rendkívül hangulatos település, a Dunakanyar egyik gyöngyszeme. Az Ófalu történelmi hangulatú, macskaköves utcái igazán egyedi atmoszférát biztosítanak az itt lakóknak.
A település nyáron különösen kedvelt csodás dunaparti strandja, rendezvényei, éttermeinek köszönhetően. A települést hegyek veszik körül, ami nemcsak különösen szép látványt nyújt, de számos kirándulási és sportolási lehetőséget biztosít minden évszakban.
Olyan új tulajdonost keresünk, aki egy karakteres, remek elhelyezkedésű, jól alakítható otthont keres, ahol megvalósíthatja saját elképzeléseit, egyedi igényeit!
Kiváló alap a ház családi otthonnak, befektetésre, vendégháznak, kiadásra vagy két generációnak!
További információkért és megtekintési szándékkal kapcsolatban várom hívását!
Dunabogdány Ófalu részén, a Nepomuki Szent János-templom közvetlen közelében, egy hangulatos, csendes, kis utcában, mégis közel a központhoz ELADÓ egy 140 nm alapterületű (bruttó 170) összesen 6 szobás családi ház, mely számos kiaknázatlan potenciált rejt magában!
A 1960-as években épült tégla és vegyes falazatú ház két különálló lakrészből áll, melyből jelenleg az egyik lakott, ez összesen 90 nm területű. A világos, amerikai konyhás nappalin kívül három különnyíló szoba és egy zuhanyzóval felszerelt fürdőszoba került kialakításra benne. Ez a része a háznak lakható, átlagos állapotban van, fűtéséről jelenleg gáz kazán gondoskodik radiátoros hőleadókkal, néhány ablaka cserélve lett műanyag nyílászárókra, de javasolt a ház többi részét is korszerűsíteni, felújítani.
A másik lakrész területe 51 nm, amiben jelenleg 2 nagyméretű szoba és egy kádas fürdőszoba található. A háznak ez a része teljesen felújítandó állapotban van így jelenleg nem lakható.
A két lakrész könnyedén egybe nyitható, ezáltal egy tágas terekkel rendelkező, 6 szobás otthon alakítható ki belőle.
Mindkét lakrész külön bejárattal rendelkezik, melyek az udvarból megközelíthetőek, így igény szerint 2 generációnak is tökéletesen alkalmas.
A ház további helyiségekkel is rendelkezik, melyek tárolásra kiválóan alkalmasak. Egy külön bejáratú tároló ami kb 6 nm-es, egy nagy tároló helyiség amiben a kazán is helyett kapott , és egy kis pince ami szintén külön bejárattal rendelkezik.
A telek 364 nm-es, összközműves, a Templom közből lehet megközelíteni, ami egy kis zsákutca összesen néhány házzal.
Az utca végében már a templomkert található mely igazán különleges hangulatot kölcsönöz ennek a területnek.
Az ingatlan különlegessége, hogy csendes, nyugodt környezetben helyezkedik el, mégis pár lépésre a település központjától. Gyalogosan is néhány perc alatt elérhető minden, ami a hétköznapi élethez szükséges.
Iskola, Óvoda, élelmiszerbolt, pékség, Bank, orvosi rendelők, Gyógyszertár, éttermek.
Dunabogdány egy rendkívül hangulatos település, a Dunakanyar egyik gyöngyszeme. Az Ófalu történelmi hangulatú, macskaköves utcái igazán egyedi atmoszférát biztosítanak az itt lakóknak.
A település nyáron különösen kedvelt csodás dunaparti strandja, rendezvényei, éttermeinek köszönhetően. A települést hegyek veszik körül, ami nemcsak különösen szép látványt nyújt, de számos kirándulási és sportolási lehetőséget biztosít minden évszakban.
Olyan új tulajdonost keresünk, aki egy karakteres, remek elhelyezkedésű, jól alakítható otthont keres, ahol megvalósíthatja saját elképzeléseit, egyedi igényeit!
Kiváló alap a ház családi otthonnak, befektetésre, vendégháznak, kiadásra vagy két generációnak!
További információkért és megtekintési szándékkal kapcsolatban várom hívását!
Registration Number
H502849
Property Details
Sales
for sale
Legal Status
used
Character
house
Construction Method
brick
Net Size
140 m²
Gross Size
170 m²
Plot Size
364 m²
Heating
Gas circulator
Ceiling Height
285 cm
Number of Levels Within the Property
1
Orientation
South-West
Condition
Average
Condition of Facade
Average
Basement
Independent
Neighborhood
quiet, green, central
Year of Construction
1960
Number of Bathrooms
1
Water
Available
Gas
Available
Electricity
Available
Sewer
Available
Storage
Independent
Rooms
open-plan kitchen and living room
21.7 m²
bedroom
9.3 m²
room
22.3 m²
room
22.4 m²
bathroom-toilet
7.6 m²
corridor
5.4 m²
room
24.4 m²
room
16.8 m²
corridor
4.8 m²
bathroom
5 m²
cellar
6 m²
boiler room
18.6 m²
storage
6 m²