744,971,000 Ft
1,900,000 €
- 844m²
- 18 Rooms













































Stunning location, endless possibilities
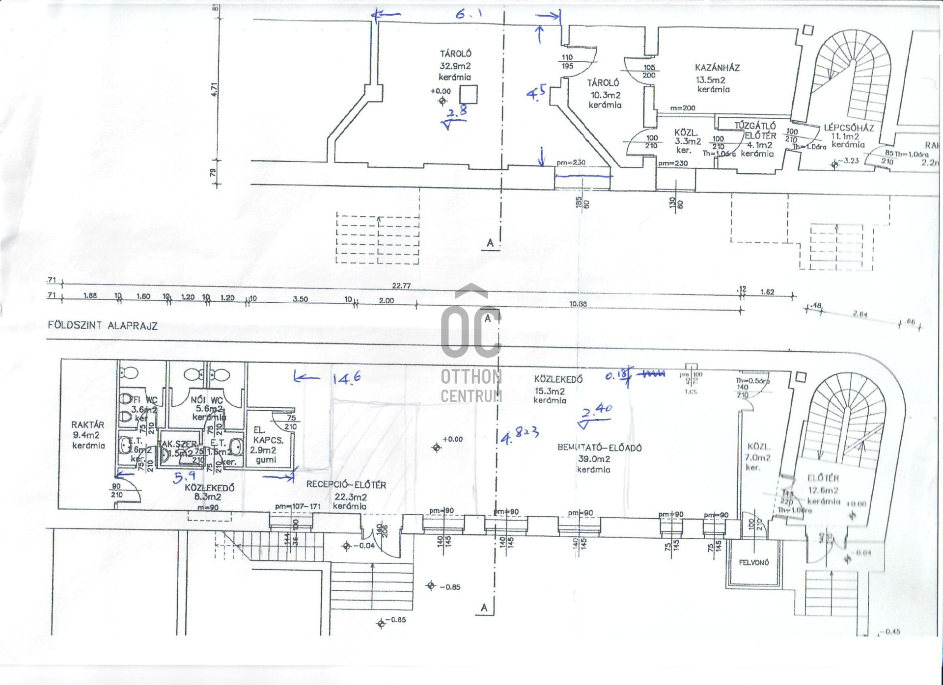
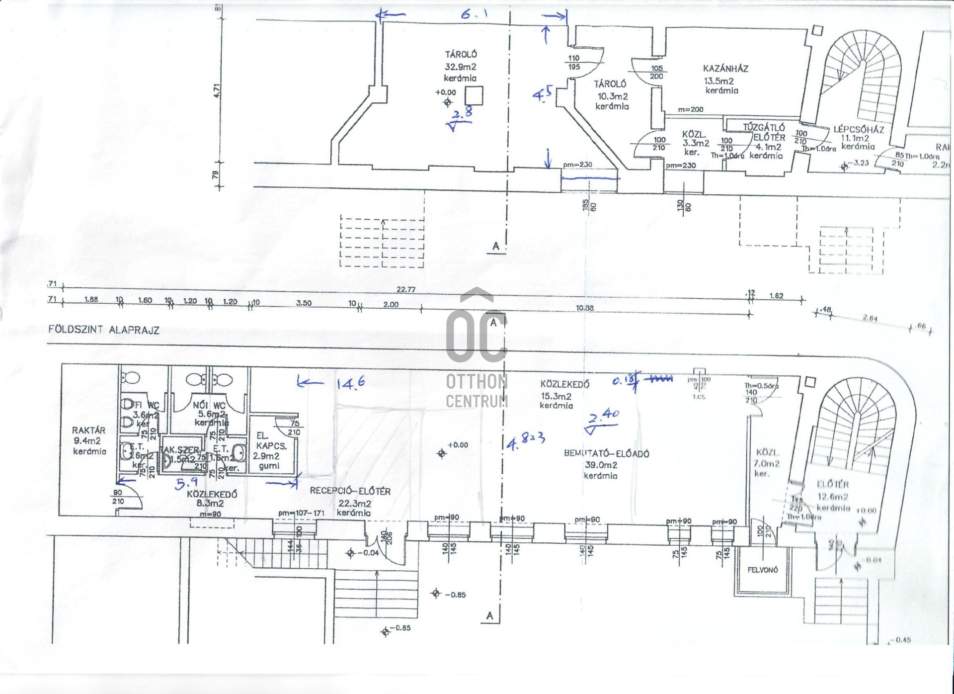
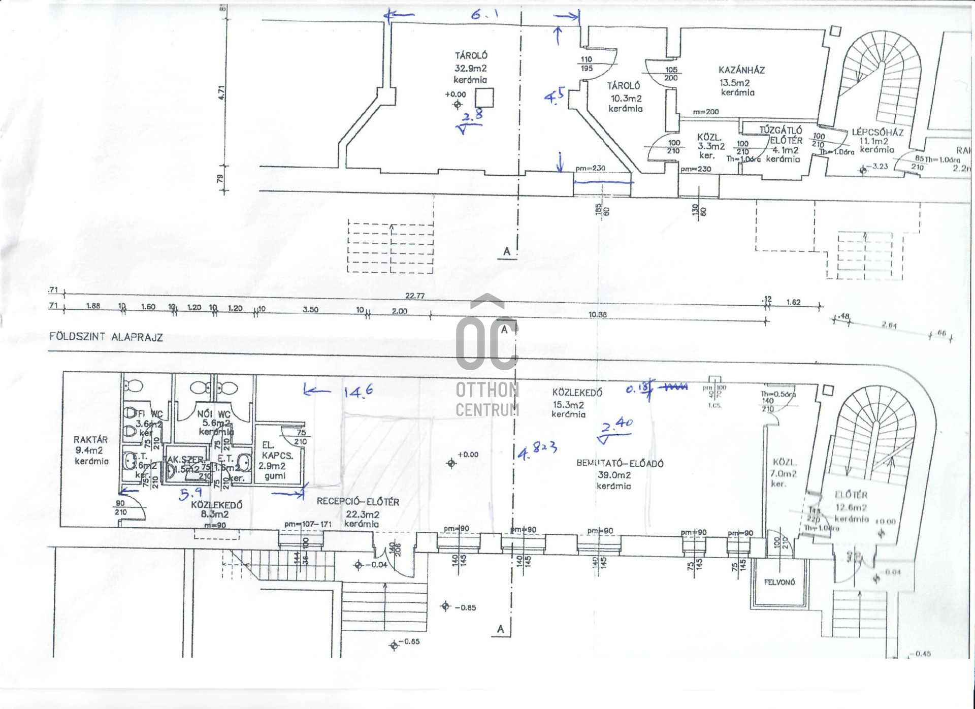
Condominium, healthcare institution, or hostel? The possibilities are endless. In the heart of Víziváros, in the I. district of Budapest, this 6-story brick building awaits its new owner. According to the current zoning classification (Vt-V/I/03), it is suitable for residential property development. There is an opportunity to create an additional level on the roof, which will provide a panoramic view of Buda for the new owner. The condition of the building, which has an elevator, is good, making it ready for immediate occupancy. Thanks to the central heating system, the maintenance costs are favorable. The area is excellently serviced, with numerous restaurants, cafés, and services in close proximity. Víziváros is a vibrant area with perfect infrastructure, where green parks harmoniously combine with the bustling world of modern business and historic buildings. The central location of the property allows for quick and easy access to any point in the city. The M2 metro line, the 4/6 trams, and several bus and other tram lines are just a 2-minute walk away. This property, free of encumbrances, offers the future owner the opportunity to make a profitable investment. The advertisement includes ideas for renovations and visual plans for the establishment of a healthcare institution, hostel, or apartments.
We support our buyer clients with free, independent mortgage consulting to help them make the most advantageous financing decisions. With our optional additional services – such as legal assistance, energy certification, or electrical safety inspection – we provide comprehensive professional support at every step of the sales process.
We support our buyer clients with free, independent mortgage consulting to help them make the most advantageous financing decisions. With our optional additional services – such as legal assistance, energy certification, or electrical safety inspection – we provide comprehensive professional support at every step of the sales process.
Registration Number
H498983
Property Details
Sales
for sale
Legal Status
used
Character
house
Construction Method
brick
Net Size
844 m²
Gross Size
844 m²
Plot Size
140 m²
Heating
unmetered central heating
Ceiling Height
310 cm
Orientation
North-West
View
Other
Condition
Good
Condition of Facade
Good
Basement
Independent
Neighborhood
good transport, central
Year of Construction
1990
Number of Bathrooms
6
Water
Available
Gas
Available
Electricity
Available
Sewer
Available
Rooms
other room
70 m²
other room
70 m²
other room
70 m²
other room
70 m²
other room
70 m²
other room
70 m²
bathroom-toilet
10 m²
bathroom-toilet
10 m²
bathroom-toilet
10 m²
bathroom-toilet
10 m²
staircase
30 m²
terrace
80 m²
other room
50 m²
other room
50 m²
other room
50 m²
other room
50 m²
other room
50 m²
other room
50 m²
other
14 m²
other
14 m²
other
14 m²
other
14 m²
other
14 m²
other
14 m²

Ruczek Krisztina
Credit Expert