data_sheet.details.realestate.section.main.otthonstart_flag.label
For sale family house,
H493660
Balatonberény
84,900,000 Ft
217,000 €
- 167m²
- 6 Rooms





























ELADÓ CSALÁDI HÁZ BALATONBERÉNY SZÍVÉBEN!
ELADÁSRA KÍNÁLOK EGY 167NM-ES CSALÁDI HÁZAT BALATONBERÉNYBEN!
CSAK AZ OTTHON CENTRUM KÍNÁLATÁBAN!
Nyaralóként használt, jó állapotban lévő családi ház főbb jellemzői:
- A tulajdonosok tudomása szerint a ház 1987-ben épült. Nagy közösségi terek jellemzik, de igény esetén elvonulást biztosít a pihenni vágyók részére. A belső terek jól átgondoltak és praktikusak, 2 hálószoba, és 3 félszoba biztosítja a család együttélését, akár 13 fő elszállásolásával, így teret adva a kellemes nyári összejövetelek helyszíneként.
- Gáz cirkó kazán gondoskodik a fűtésről, ezt kiegészíthetjük hűtő- fűtő klímával.
- Műanyag, és fa nyílászárók, redőnnyel, és szúnyoghálóval.
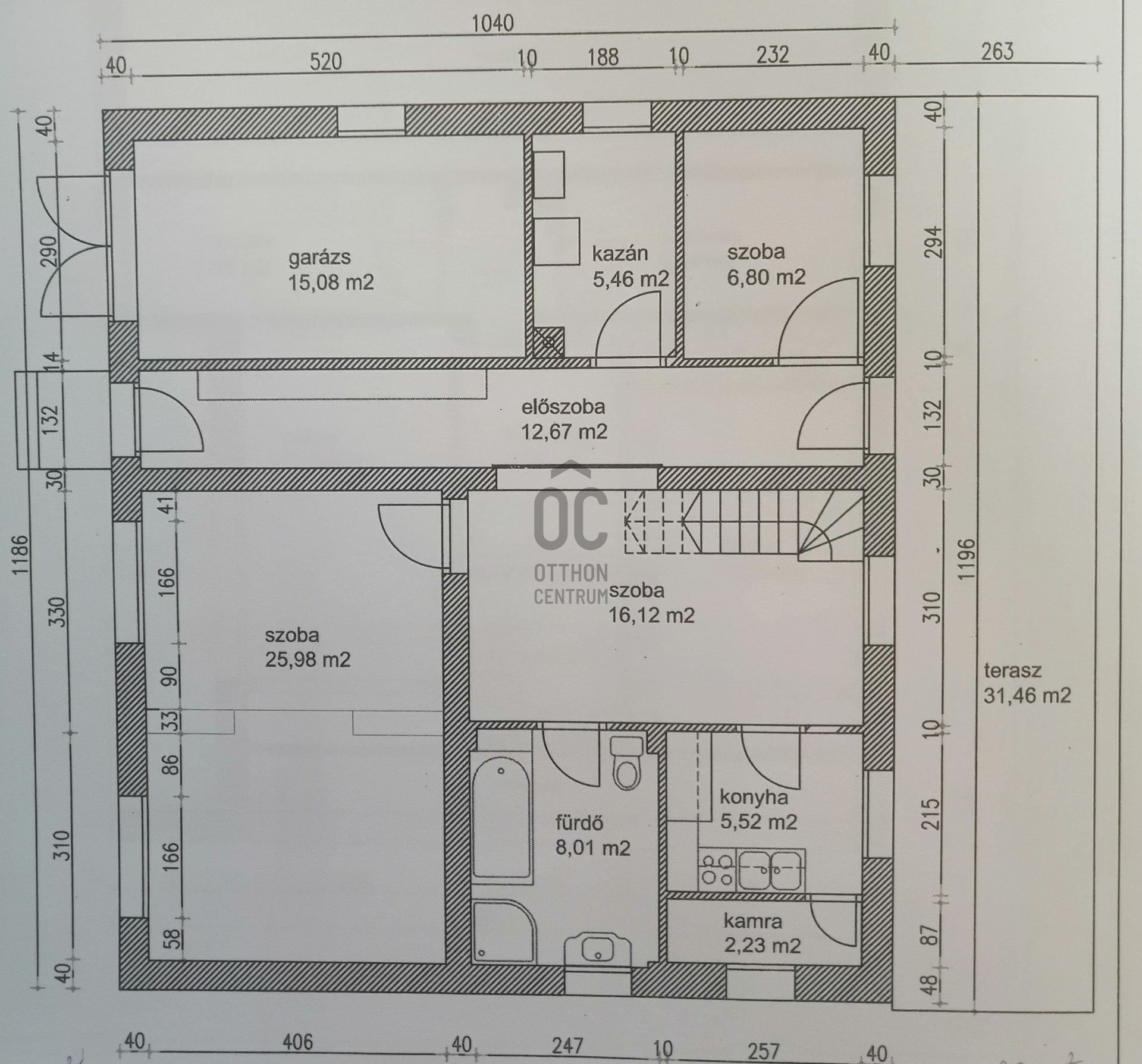
- A ház földszintje 83 nm, a terasz 31,46 nm, és a garázs 15,08 nm. Az emelet 57 nm, és az erkély 9,8 nm.
- A telek 669 nm. Itt kapott helyet egy tároló, és egy két helyiségből álló lakrész ,amit kis átalakítással nyárikonyhává, vagy apartmanná alakítható.
- A kertben igényesen karbantartott növények találhatóak.
- Az ingatlant rendezett tulajdonviszonyok jellemzik.
A családi ház nagy üvegfelületeinek köszönhetően egész nap fényárban úszik.
Nagyszerű ingatlan azok számára, akik minden igényt kielégítő, esztétikus környezetben szeretnék megtapasztalni a balatoni életstílust, mind otthonként , mind nyaralóként használva.
Amennyiben egy állandó otthont keres, vagy álmai balatoni nyaralóját, keressen bizalommal, egy egyeztetett időpontban megmutatom!
CSAK AZ OTTHON CENTRUM KÍNÁLATÁBAN!
Nyaralóként használt, jó állapotban lévő családi ház főbb jellemzői:
- A tulajdonosok tudomása szerint a ház 1987-ben épült. Nagy közösségi terek jellemzik, de igény esetén elvonulást biztosít a pihenni vágyók részére. A belső terek jól átgondoltak és praktikusak, 2 hálószoba, és 3 félszoba biztosítja a család együttélését, akár 13 fő elszállásolásával, így teret adva a kellemes nyári összejövetelek helyszíneként.
- Gáz cirkó kazán gondoskodik a fűtésről, ezt kiegészíthetjük hűtő- fűtő klímával.
- Műanyag, és fa nyílászárók, redőnnyel, és szúnyoghálóval.
- A ház földszintje 83 nm, a terasz 31,46 nm, és a garázs 15,08 nm. Az emelet 57 nm, és az erkély 9,8 nm.
- A telek 669 nm. Itt kapott helyet egy tároló, és egy két helyiségből álló lakrész ,amit kis átalakítással nyárikonyhává, vagy apartmanná alakítható.
- A kertben igényesen karbantartott növények találhatóak.
- Az ingatlant rendezett tulajdonviszonyok jellemzik.
A családi ház nagy üvegfelületeinek köszönhetően egész nap fényárban úszik.
Nagyszerű ingatlan azok számára, akik minden igényt kielégítő, esztétikus környezetben szeretnék megtapasztalni a balatoni életstílust, mind otthonként , mind nyaralóként használva.
Amennyiben egy állandó otthont keres, vagy álmai balatoni nyaralóját, keressen bizalommal, egy egyeztetett időpontban megmutatom!
Registration Number
H493660
Property Details
Sales
for sale
Legal Status
used
Character
house
Construction Method
brick
Net Size
167 m²
Gross Size
200 m²
Plot Size
669 m²
Size of Terrace / Balcony
41.2 m²
Heating
Gas circulator
Ceiling Height
270 cm
Number of Levels Within the Property
1
Orientation
South
Condition
Good
Condition of Facade
Good
Neighborhood
quiet, green
Year of Construction
1987
Number of Bathrooms
2
Garage
Included in the price
Garage Spaces
1
Water
Available
Gas
Available
Electricity
Available
Sewer
Available
Rooms
living room
25.98 m²
bathroom-toilet
8.01 m²
pantry
2.23 m²
boiler room
5.46 m²
entryway
12.67 m²
bedroom
14.79 m²
half room
7.05 m²
corridor
9.25 m²
balcony
9.8 m²
dining room
16.12 m²
kitchen
5.52 m²
bedroom
6.8 m²
garage
15.08 m²
terrace
31.46 m²
bedroom
13.8 m²
half room
5.46 m²
bathroom-toilet
4.55 m²