data_sheet.details.realestate.section.main.otthonstart_flag.label
                                        
                                    
                                                                For sale family house,
                                H480081
                            Kisvárda
                            35,000,000 Ft
91,000 €
- 90m²
- 3 Rooms
 
            
                                                             
            
                                                             
            
                                                             
            
                                                             
            
                                                             
            
                                                             
            
                                                             
            
                                                             
            
                                                             
            
                                                             
            
                                                            Kisvárdán felújítandó családi ház eladó
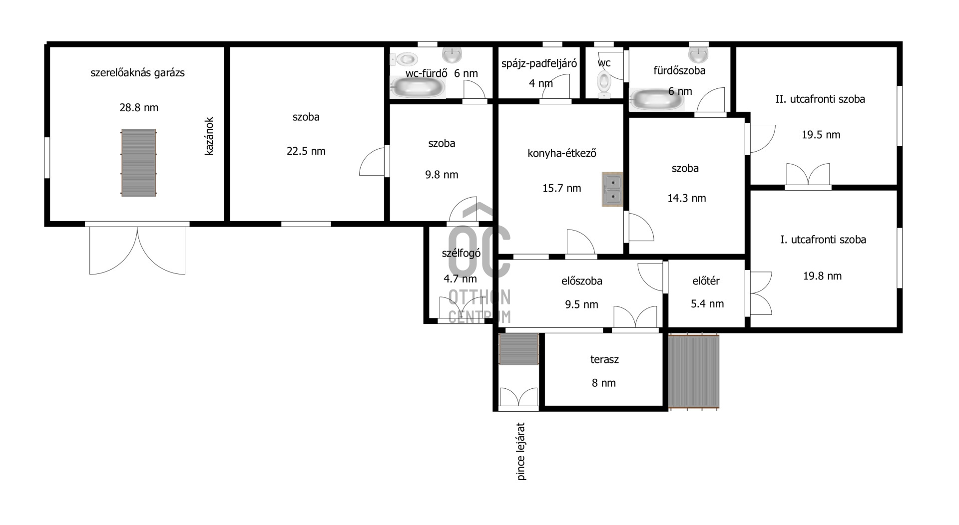
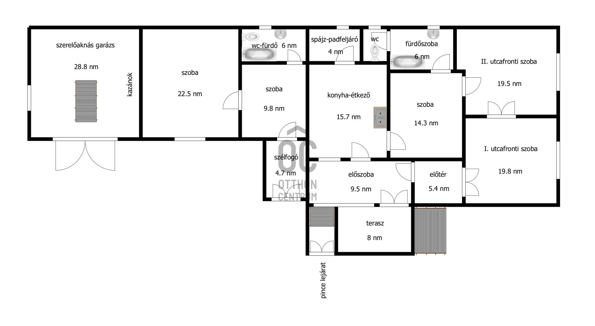
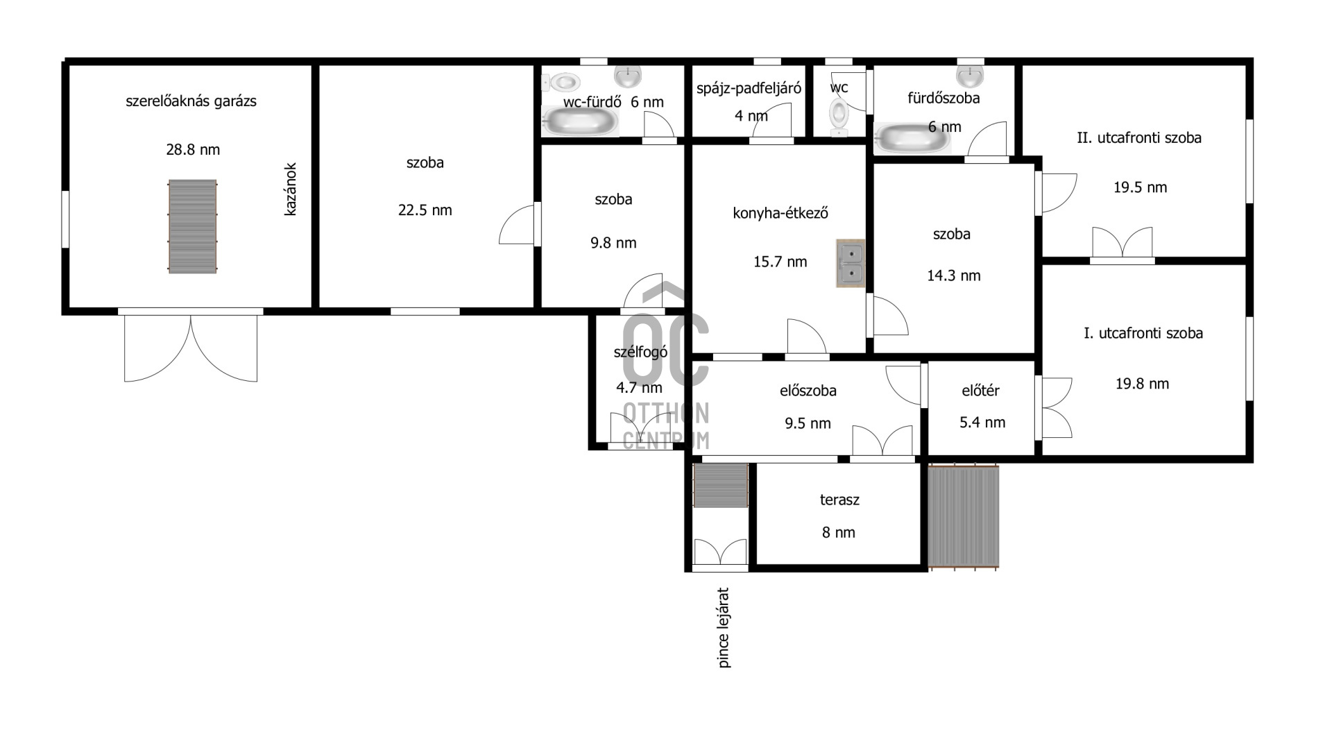
Megvételre kínálunk Kisvárda legfrekventáltabb környékén egy felújítandó vegyes falazatú / vályog+tégla/ két generációs, palával fedett családi házat 662 nm-es 17 méter széles telken. Az ingatlanban két szoba és nappali található, melyeket padlóval, illetve parkettával,  a wc-fürdőszobát járólappal burkolták.
Az épülethez tartozik egy külön bejáratú vályogból épült, szoba- konyha fürdőszobával rendelkező, de szintén felújítandó lakrész is. Az ingatlan melegéről gáz és vegyes tüzelésű kazán gondoskodik. Az udvaron egy téglából épült garázs és melléképület található.
Kisvárda családi ház eladó
                    Az épülethez tartozik egy külön bejáratú vályogból épült, szoba- konyha fürdőszobával rendelkező, de szintén felújítandó lakrész is. Az ingatlan melegéről gáz és vegyes tüzelésű kazán gondoskodik. Az udvaron egy téglából épült garázs és melléképület található.
Kisvárda családi ház eladó
Registration Number
H480081
                Property Details
Sales
                                        for sale
                                                                                                                                                Legal Status
                                        used
                                                                                                                                                Character
                                        house
                                                                                                                                                                                                                                                                                        Construction Method
                                        mixed masonry
                                                                                                                                                                                                                                                                                                                                                                                                                                                                                                    Net Size
                                        90 m²
                                                                                                                                                Gross Size
                                        100 m²
                                                                                                                                                Plot Size
                                        662 m²
                                                                                                                                                                                                                                                                                                                                                                                                                                                                                                    Heating
                                        Gas circulator
                                                                                                                                                Ceiling Height
                                        280 cm
                                                                                                                                                                                                                    Orientation
                                        East
                                                                                                                                                                                                                                                                                        Condition
                                        To be renovated
                                                                                                                                                Condition of Facade
                                        Poor
                                                                                                                                                                                                                    Basement
                                        Independent
                                                                                                                                                                                                                    Year of Construction
                                        1932
                                                                                                                                                Number of Bathrooms
                                        1
                                                                                                                                                                                                                                                                                                                                                                                                                                Garage
                                        Included in the price
                                                                                                                                                                                                                                                                                                                                                            Water
                                        Available
                                                                                                                                                Gas
                                        Available
                                                                                                                                                Electricity
                                        Available
                                                                                                                                                                                                                                                                                                                                                                                                                                                                                                                                                                                                                                                                Rooms
room
                                        20 m²
                                                                            bedroom
                                        18 m²
                                                                            living room
                                        13.6 m²
                                                                            bathroom
                                        5.5 m²
                                                                     
                    
                 
                         
                         
                         
                         
                         
                         
                         
                         
                         
                         
                         
                    
                 
                 
                 
                 
                 
                 
                 
                 
                 
                 
                 
                