data_sheet.details.realestate.section.main.otthonstart_flag.label
For sale family house,
H480039
Bakonszeg
26,900,000 Ft
69,000 €
- 100m²
- 3 Rooms




























Eladó Bakonszegi 3 szobás ingatlan
Eladó egy 100 négyzetméteres családi ház Bakonszeg csendes környékén, a festői Remete Tó szomszédságában. A 808 négyzetméteres telek tökéletes otthont kínál azoknak, akik szeretnék élvezni a nyugalmat és a természet szépségeit.
Ez a két szintes ingatlan korábban bisztróként szolgált. A földszint és tetőtér praktikus elrendezése bőséges helyet kínál családi életre vagy kreatív tevékenységekre. A fűtést vegyes tüzelésű kazán és hűtő-fűtő klímák biztosítják, így mindig kellemes a hőmérséklet a házban.
Az ingatlan ipari árammal rendelkezik, és H tarifa is elérhető, így az energiaigénye könnyedén kielégíthető. Az udvaron található egy 5 helyiségből álló tároló is, ideális megoldás a tárolási igények kielégítésére.
Az ingatlan megnevezése hétvégi ház és melléképület.
Bakonszeg elhelyezkedése ideális, mindössze 7 kilométerre kelet-északkeletre található Berettyóújfalu városától. A közelben Zsáka, Nagyrábé és Bihartorda is megtalálható, így a település kiválóan kapcsolódik a környező vidékekhez.
Ha szeretne megtudni többet, hívjon minket még ma, és nézze meg, miért érdemes Bakonszegre költözni!
3 szoba, 100 nm, Bakonszeg, Berettyóújfalu
Ez a két szintes ingatlan korábban bisztróként szolgált. A földszint és tetőtér praktikus elrendezése bőséges helyet kínál családi életre vagy kreatív tevékenységekre. A fűtést vegyes tüzelésű kazán és hűtő-fűtő klímák biztosítják, így mindig kellemes a hőmérséklet a házban.
Az ingatlan ipari árammal rendelkezik, és H tarifa is elérhető, így az energiaigénye könnyedén kielégíthető. Az udvaron található egy 5 helyiségből álló tároló is, ideális megoldás a tárolási igények kielégítésére.
Az ingatlan megnevezése hétvégi ház és melléképület.
Bakonszeg elhelyezkedése ideális, mindössze 7 kilométerre kelet-északkeletre található Berettyóújfalu városától. A közelben Zsáka, Nagyrábé és Bihartorda is megtalálható, így a település kiválóan kapcsolódik a környező vidékekhez.
Ha szeretne megtudni többet, hívjon minket még ma, és nézze meg, miért érdemes Bakonszegre költözni!
3 szoba, 100 nm, Bakonszeg, Berettyóújfalu
Registration Number
H480039
Property Details
Sales
for sale
Legal Status
used
Character
house
Construction Method
brick
Net Size
100 m²
Gross Size
100 m²
Plot Size
818 m²
Heating
mixed-fuel boiler
Ceiling Height
248 cm
Number of Levels Within the Property
2
Orientation
South
Condition
Average
Condition of Facade
Average
Neighborhood
quiet
Year of Construction
2000
Number of Bathrooms
2
Water
Available
Electricity
Available
Storage
Independent
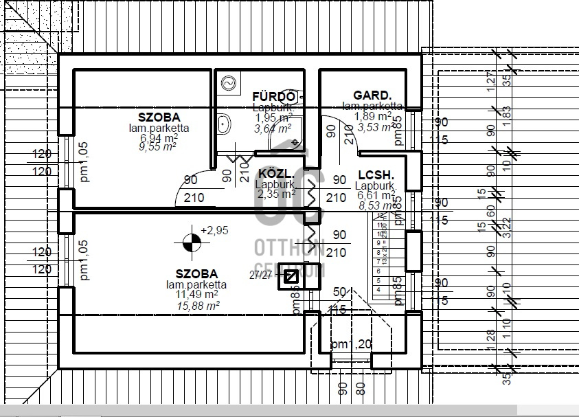
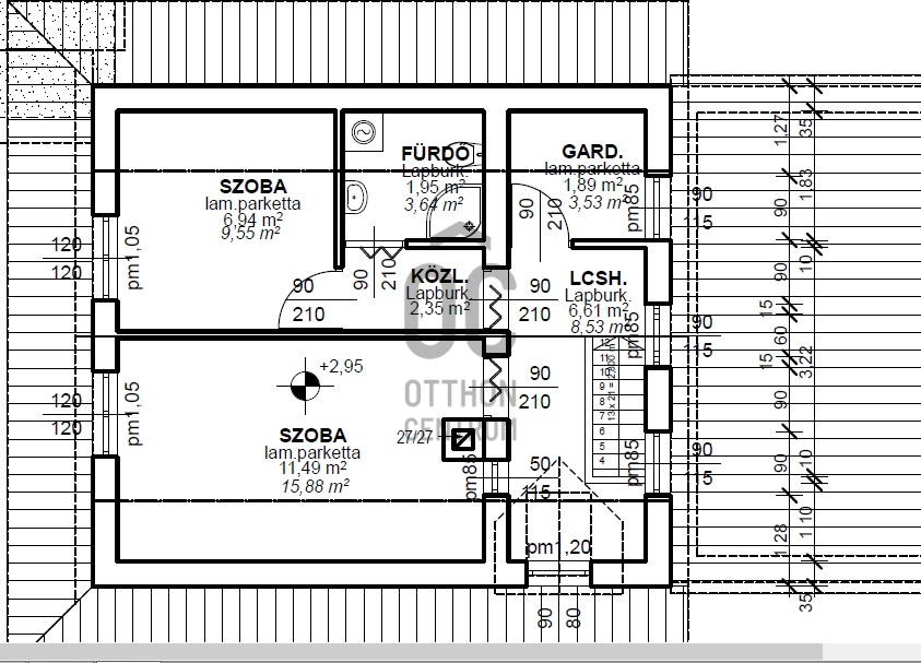
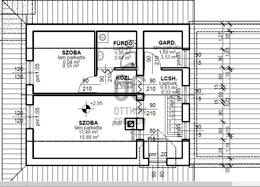
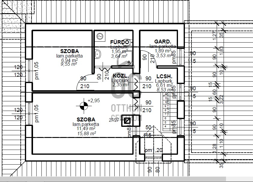
Rooms
room
15.88 m²
room
9.55 m²
kitchen
10.48 m²
bathroom-toilet
3.64 m²
corridor
2.35 m²
wardrobe
3.53 m²
dining room
12.02 m²
boiler room
3.24 m²
corridor
3.64 m²
corridor
3.78 m²
toilet
0.89 m²
bathroom
0.63 m²
utility room
4.68 m²
room
23.05 m²

Czellér András
Credit Expert