For sale new construction apartment, DLK057935
Sárbogárd

113,510,000 Ft

294,000 €

  • 100m²
  • 4 Rooms
  • 1st floor
Exclusive Contract

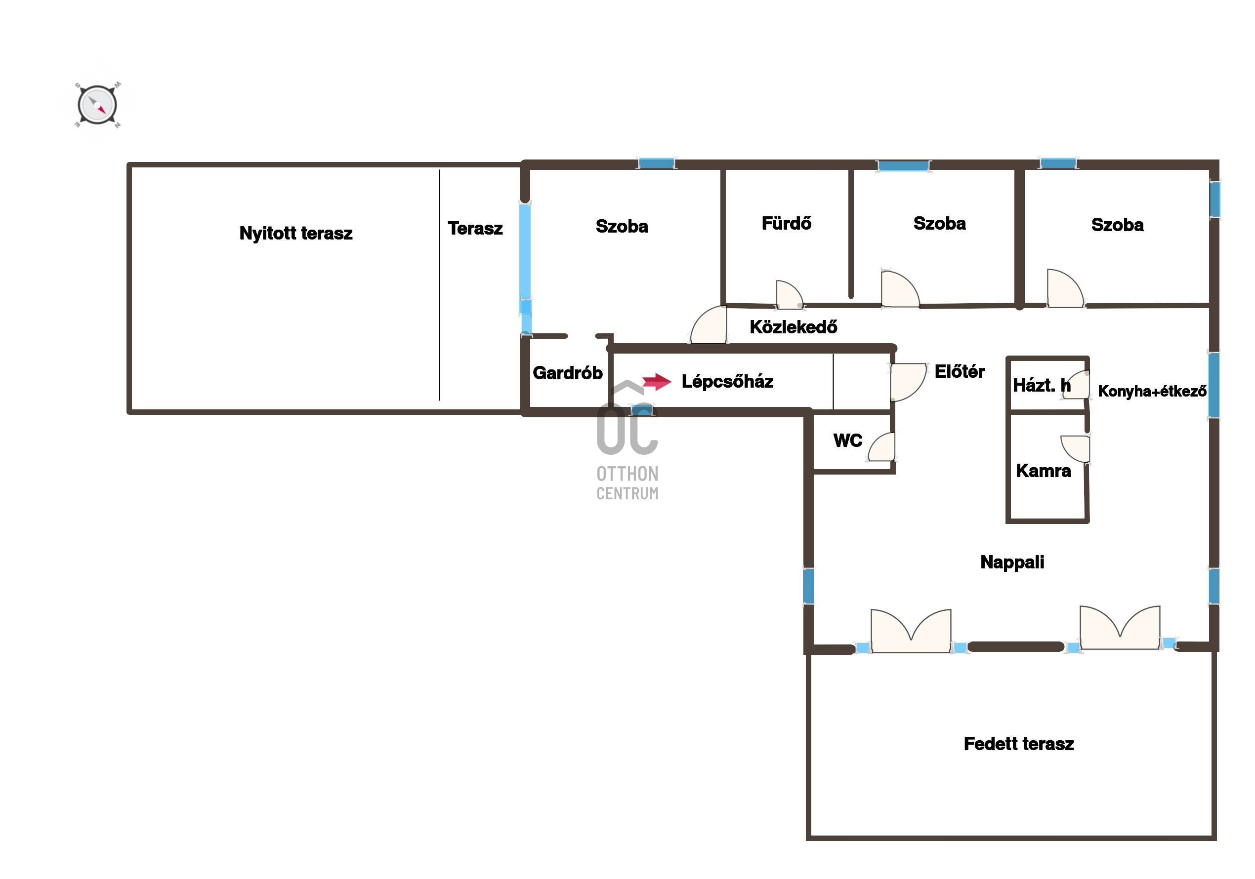
Eladásra kínálunk egy új építésű, tégla szerkezetű 100 nm-es 3 szobás, 76 nm terasszal rendelkező lakást a Mandula udvarban, Sárbogárd szívében. A 2026-ban épülő lakás kíméletlenül követi a modern építészeti irányelveket, egyben kínálva a jövőbeli lakóknak a ma elvárt komfortot és minőséget, az ingatlan jelenlegi készültsége 60%, a tervezett átadás 2026 március. A lakáshoz saját tároló és gépkocsitároló tartozik. Sárbogárd városa ideális otthona lehet mindazoknak, akik a városi kényelmet és a természeti szépségeket egyaránt értékelik. A városban több park, játszótér és sportlétesítmény található, amelyek kitűnő lehetőséget biztosítanak a szabadidő aktív és passzív eltöltésére. A közeli erdők és a természet közelsége tökéletes menedéket nyújtanak a hétköznapi rohanás elől. Sárbogárd egy dinamikusan fejlődő, ugyanakkor békés és barátságos közösséget kínál az itt élők számára. A Mandula udvar nyugalmat és zavartalan pihenést ígér, miközben Sárbogárd városának szolgáltatásai csak egy rövid sétára találhatóak. Akár a helyi piacokat, üzleteket vagy a kulturális eseményeket részesíti előnyben, itt minden megtalálható a kellemes élethez.

Registration Number

DLK057935

Property Details

Sales
for sale
Legal Status
new
Character
apartment
Construction Method
brick
Net Size
100 m²
Gross Size
100 m²
Heating
other
Ceiling Height
270 cm
Orientation
South-East
Staircase Type
enclosed staircase
Condition
Good
Condition of Facade
Good
Year of Construction
2026
Number of Bathrooms
2
Position
courtyard-facing

Rooms

room
10.46 m²
room
12.03 m²
room
13.16 m²
living room
26.13 m²
toilet
1.58 m²
open-plan kitchen and dining room
16.02 m²
utility room
2.54 m²
corridor
1.51 m²
staircase
5.25 m²
balcony
76 m²
Várnai Zoltán Jenő
Várnai Zoltán Jenő

Credit Expert

From Our Office Listings - Székesfehérvár - Szent István tér

for sale family house

Index image
data_sheet.details.realestate.section.main.otthonstart_flag.label
15

for sale family house

Index image
data_sheet.details.realestate.section.main.otthonstart_flag.label
23

for sale new construction semi-detached house

Index image
10

for sale family house

Index image
data_sheet.details.realestate.section.main.otthonstart_flag.label
12

for sale family house

Index image
data_sheet.details.realestate.section.main.otthonstart_flag.label
24

for sale family house

Index image
data_sheet.details.realestate.section.main.otthonstart_flag.label
23

for sale family house

Index image
data_sheet.details.realestate.section.main.otthonstart_flag.label
17