data_sheet.details.realestate.section.main.otthonstart_flag.label
For sale new construction family house,
DHZ037767
Sülysáp
74,900,000 Ft
210,000 €
- 120m²
- 5 Rooms
SÜLYSÁP: ÚJ ÉPÍTÉSŰ, NÉGYSZOBÁS SORHÁZI LAKÁSOK SAJÁT KERTTEL
Sülysápon, csendes, családi házas környezetben, az 1079 m²-es telken épülő sorházban nettó 100 m²-es lakásokat kínálunk megvételre.
Az első lakáshoz egy megközelítőleg 350 m²-es, kizárólagos használatú kerti rész tartozik. A lakások várható átadása: 2026. augusztus.
Műszaki tartalom:
-Falszerkezet: 30 cm-es nútféderes tégla, 15 cm EPS homlokzati hőszigeteléssel.
-Födém: Fa szerkezet, 25 cm ásványgyapot szigeteléssel.
-Tető: Antracit betoncserép fedés.
-Szigetelés: 10 cm Austrotherm aljzat szigetelés.
-Nyílászárók: 6 légkamrás, 3 rétegű hőszigetelt üvegezéssel.
-Fűtés: Korszerű, 10 kW-os monoblokkos hőszivattyúval üzemeltetett padlófűtés.
-Kényelmi elemek: 17 m²-es nyitott terasz, riasztó- és kapumozgató rendszer előkészítése.-A megadott műszaki tartalom alapján a várható energetikai besorolás: A
Tervezett elrendezés:
-4 tágas szoba, amerikai konyhás nappali, fürdőszoba és külön WC. Külön háztartási helyiség is kialakításra kerül.
Műszaki tartalom választási lehetősége (az alapár részét képező költségkereten belül):
-Burkolatok: Hideg- és melegburkolatok 3.000 Ft/m²-ig.
-Szaniterek: Csaptelepek 15.000 Ft/db-ig, kád vagy zuhany 40.000 Ft-ig.
-Ajtók: Beltéri ajtók 35.000 Ft/db-ig.
-Rendszer: Falsík mögötti WC tartály.
Ezen értékeket meghaladó, magasabb kategóriájú termékek a különbözet megfizetésével választhatók.
Elektromos kiépítés:
-Szobák: 3-3 konnektor.
-Nappali: 4 konnektor, internet és kábel TV csatlakozó.
-Konyha: 6 konnektor.
-Helyiségenként világítási kiállás és kábel TV előkészítés történik.
A kivitelező Kókán több mint 20 ingatlant épített. Referenciaházak komoly érdeklődés esetén megtekinthetők.
Független hitelügyintézőnk készséggel áll rendelkezésére a finanszírozási lehetőségek, állami támogatások és CSOK+ igénybevétele terén.
A képek illusztrációk, a látványtervek nem képezik az ajánlat részét. A fenti adatok tájékoztató jellegűek, az építési engedélyben foglaltak az irányadóak.
Sülysápon, csendes, családi házas környezetben, az 1079 m²-es telken épülő sorházban nettó 100 m²-es lakásokat kínálunk megvételre.
Az első lakáshoz egy megközelítőleg 350 m²-es, kizárólagos használatú kerti rész tartozik. A lakások várható átadása: 2026. augusztus.
Műszaki tartalom:
-Falszerkezet: 30 cm-es nútféderes tégla, 15 cm EPS homlokzati hőszigeteléssel.
-Födém: Fa szerkezet, 25 cm ásványgyapot szigeteléssel.
-Tető: Antracit betoncserép fedés.
-Szigetelés: 10 cm Austrotherm aljzat szigetelés.
-Nyílászárók: 6 légkamrás, 3 rétegű hőszigetelt üvegezéssel.
-Fűtés: Korszerű, 10 kW-os monoblokkos hőszivattyúval üzemeltetett padlófűtés.
-Kényelmi elemek: 17 m²-es nyitott terasz, riasztó- és kapumozgató rendszer előkészítése.-A megadott műszaki tartalom alapján a várható energetikai besorolás: A
Tervezett elrendezés:
-4 tágas szoba, amerikai konyhás nappali, fürdőszoba és külön WC. Külön háztartási helyiség is kialakításra kerül.
Műszaki tartalom választási lehetősége (az alapár részét képező költségkereten belül):
-Burkolatok: Hideg- és melegburkolatok 3.000 Ft/m²-ig.
-Szaniterek: Csaptelepek 15.000 Ft/db-ig, kád vagy zuhany 40.000 Ft-ig.
-Ajtók: Beltéri ajtók 35.000 Ft/db-ig.
-Rendszer: Falsík mögötti WC tartály.
Ezen értékeket meghaladó, magasabb kategóriájú termékek a különbözet megfizetésével választhatók.
Elektromos kiépítés:
-Szobák: 3-3 konnektor.
-Nappali: 4 konnektor, internet és kábel TV csatlakozó.
-Konyha: 6 konnektor.
-Helyiségenként világítási kiállás és kábel TV előkészítés történik.
A kivitelező Kókán több mint 20 ingatlant épített. Referenciaházak komoly érdeklődés esetén megtekinthetők.
Független hitelügyintézőnk készséggel áll rendelkezésére a finanszírozási lehetőségek, állami támogatások és CSOK+ igénybevétele terén.
A képek illusztrációk, a látványtervek nem képezik az ajánlat részét. A fenti adatok tájékoztató jellegűek, az építési engedélyben foglaltak az irányadóak.
Registration Number
DHZ037767
Property Details
Sales
for sale
Legal Status
new
Character
house
Construction Method
brick
Net Size
120 m²
Gross Size
120 m²
Plot Size
359 m²
Size of Terrace / Balcony
20.6 m²
Heating
other
Ceiling Height
285 cm
Number of Levels Within the Property
1
Orientation
South-East
Condition
Good
Condition of Facade
Good
Year of Construction
2026
Number of Bathrooms
1
Position
courtyard-facing
Water
Available
Electricity
Available
Sewer
Available
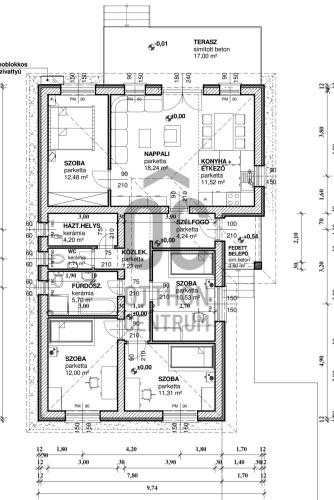
Rooms
room
12.48 m²
room
12 m²
room
11.31 m²
room
10.53 m²
open-plan kitchen and living room
29.76 m²
utility room
4.2 m²
toilet
1.71 m²
bathroom-toilet
5.7 m²
corridor
7.22 m²
veranda
3.6 m²
terrace
17 m²