Hatvan utcai kertben, újépítésű ikerházi lakások eladóak !
Debrecen csendes lakóövezeti részén, földszint + emelt kialakítású ikerházi lakások eladóak.
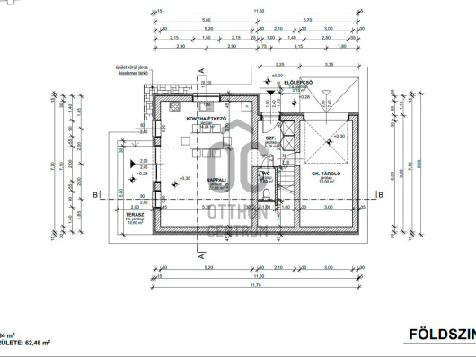
Földszint helyiségei : konyha - étkező - nappali, + terasz + garázs
Emelet helyiségei : 3 szoba, fürdő, háztartási helyiség + az egyik szobához gardrob szoba.
Az ingatlanok korszerű műszaki megoldásokkal, időtálló technológiával épülnek.
Főbb műszaki jellemzők : Porotherm NF 30 - as tégla falazat + 15 cm homlokzati szigetelés, 3 rtg hő és hangszigetelt nyílászárók, monolit vb födém, tetőszerkezet cserépfedéssel, IMMERGAS 24 Kw - os kondenzációs kazán biztosítja a fűtést, és a melegvizet, a fűtés : padlófűtés hőleadóval megoldott, szekcionált garázsajtó 2 db távirányítóval, stb...
A korszerű gépészet, modern elektromos hálózat és az igényes belső műszaki tartalom hozzájárulnak az élhető, modern lakás megvalósításához.
Várható átadás : 2026 nyara
ha felkeltettem az érdeklődését, kérem hívjon bizalommal !
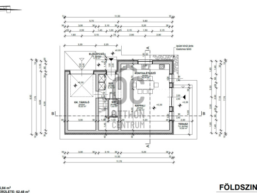
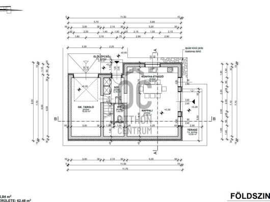
Földszint helyiségei : konyha - étkező - nappali, + terasz + garázs
Emelet helyiségei : 3 szoba, fürdő, háztartási helyiség + az egyik szobához gardrob szoba.
Az ingatlanok korszerű műszaki megoldásokkal, időtálló technológiával épülnek.
Főbb műszaki jellemzők : Porotherm NF 30 - as tégla falazat + 15 cm homlokzati szigetelés, 3 rtg hő és hangszigetelt nyílászárók, monolit vb födém, tetőszerkezet cserépfedéssel, IMMERGAS 24 Kw - os kondenzációs kazán biztosítja a fűtést, és a melegvizet, a fűtés : padlófűtés hőleadóval megoldott, szekcionált garázsajtó 2 db távirányítóval, stb...
A korszerű gépészet, modern elektromos hálózat és az igényes belső műszaki tartalom hozzájárulnak az élhető, modern lakás megvalósításához.
Várható átadás : 2026 nyara
ha felkeltettem az érdeklődését, kérem hívjon bizalommal !