400,000,000 Ft
1,029,000 €
- 575m²
- ground floor













































Kereskedelmi ingarlan eladó a Városliget vonzáskörzetében.
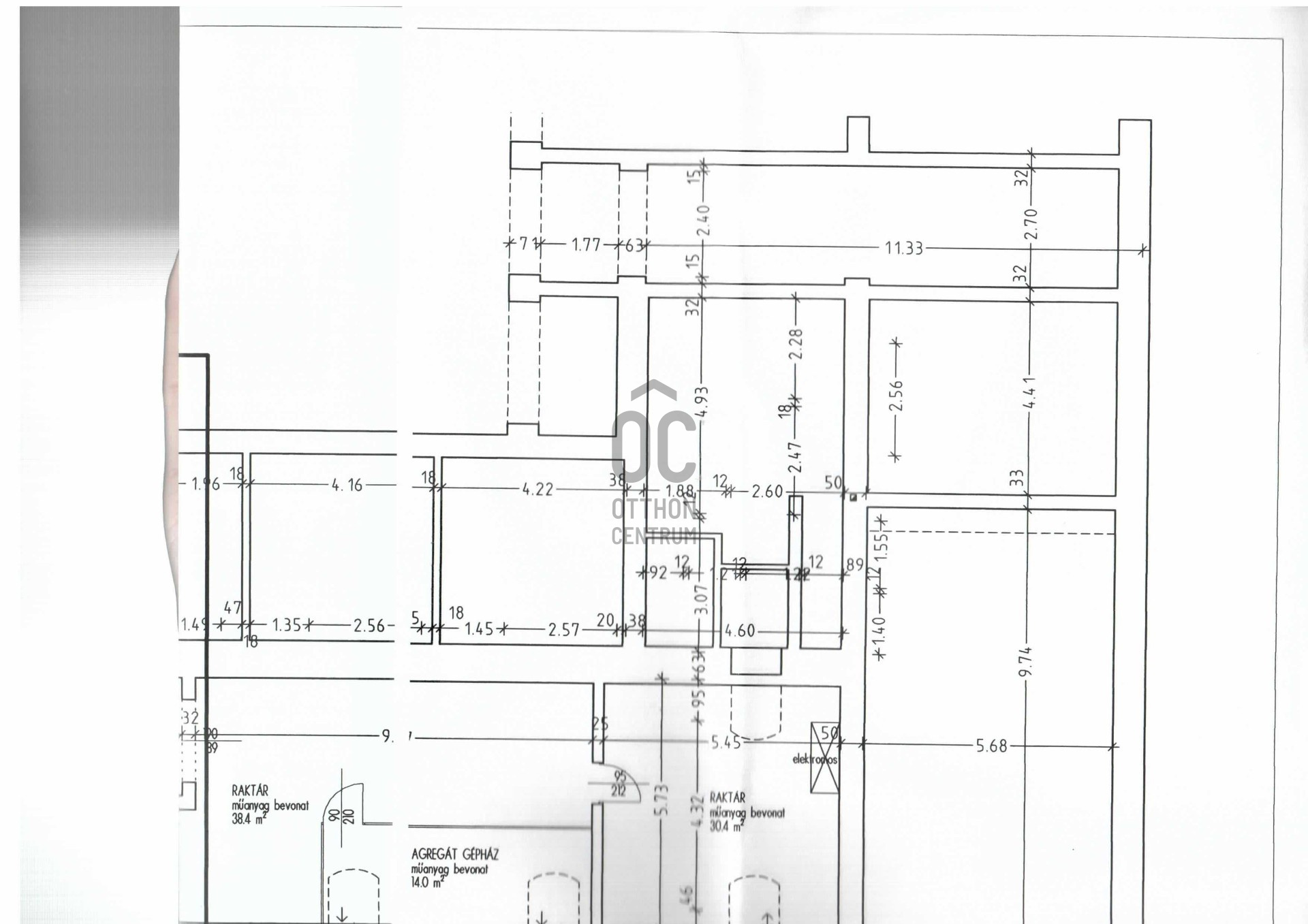
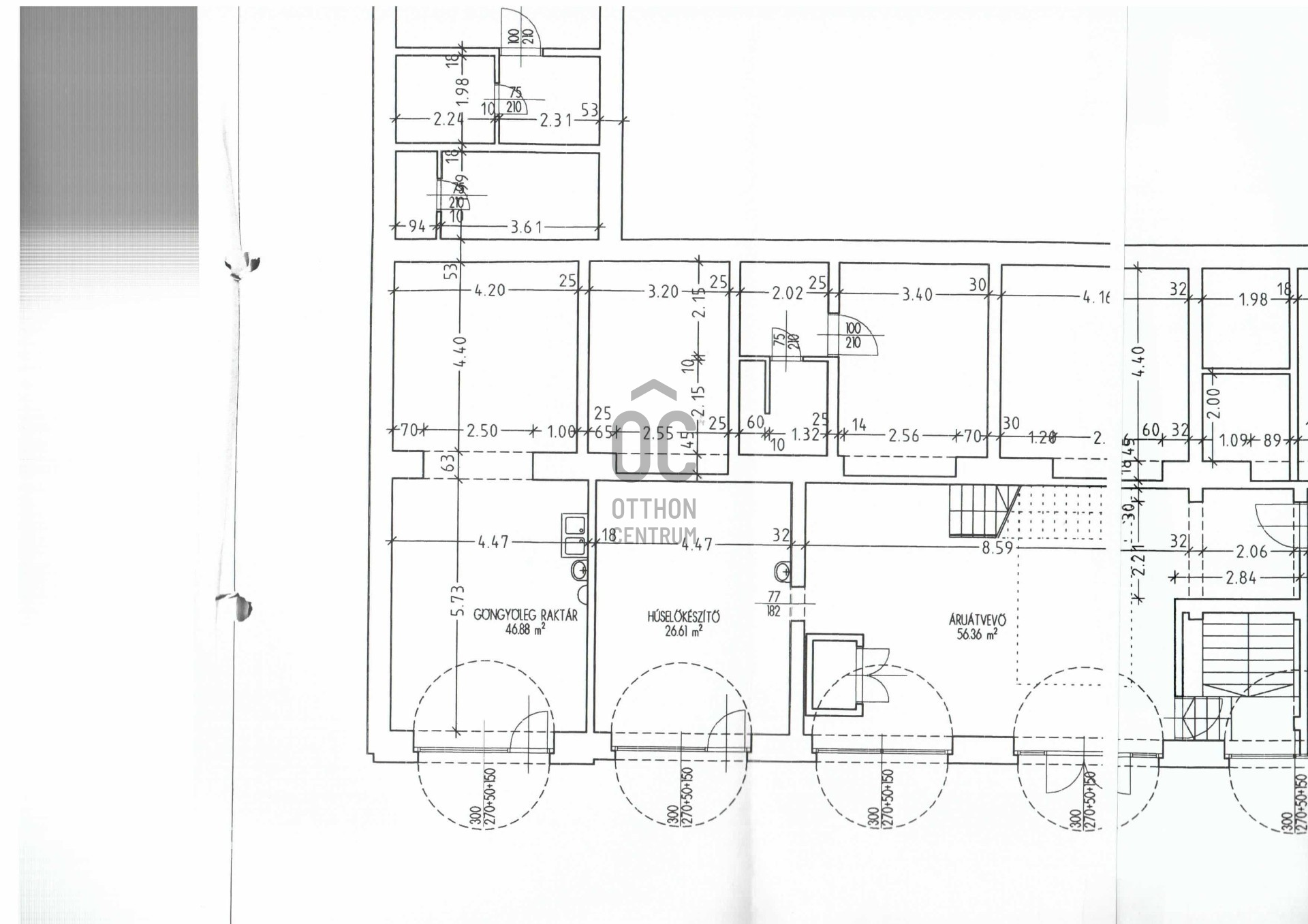
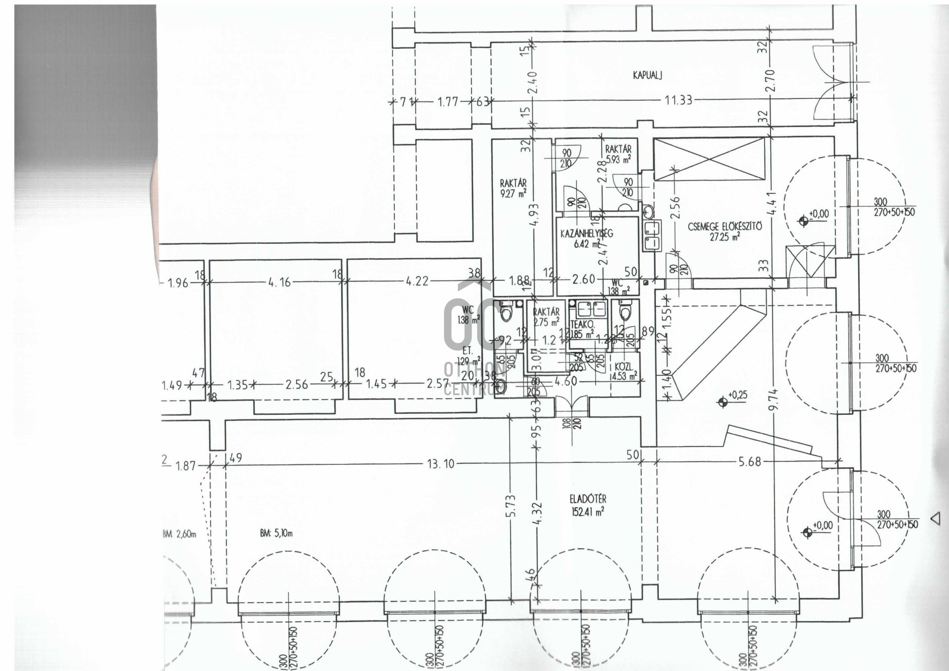
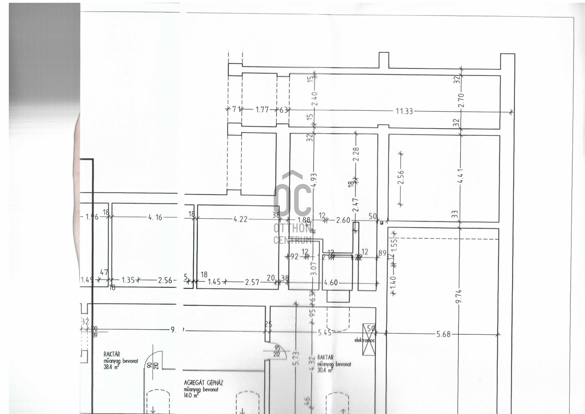
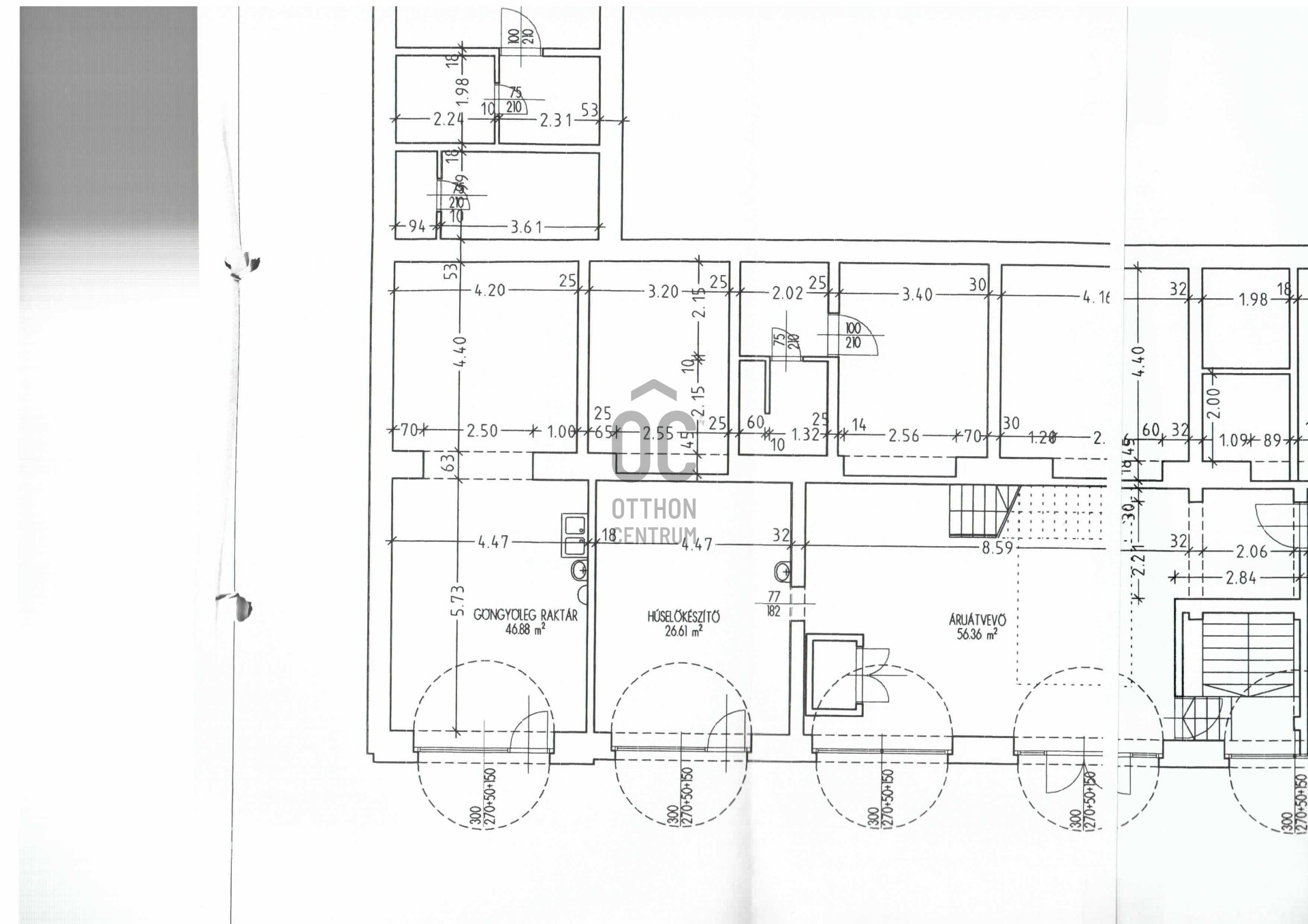
In Erzsébetváros, a street-facing commercial property with two entrances is for sale, with a gross area of 575 m2. The retail space is located at the corner of a residential building constructed in the early 1930s. The ground floor is 330 m2, the basement is 180 m2, and the gallery is 60 m2; the property has four entrances. Discover this exceptional commercial property. This area is attractive not only due to its central location but also because of the excellent amenities in the neighborhood, making it an ideal choice for any business. The property is situated in a trendy area, offering numerous opportunities for expansion. The property boasts a high ceiling, allowing you to design the interior space according to your vision. Excellent transportation ensures that guests and employees can easily access the property. Nearby public transportation options contribute to the strategic advantages of the property. The area is quiet and safe, providing an ideal location for businesses, while the friendly atmosphere contributes to a productive work environment. The proximity to City Park defines the infrastructure of the area. The property has versatile functions, suitable for various business activities. Whether it is a retail space, a showroom, or a service unit, the possibilities are wide-ranging. The dynamic development of the area and the continuously expanding services ensure that the property's value will only increase in the future. The property features a large sales area, large street-facing portals, and a separate entrance for goods receiving at the back. It has a basement equipped with a freight elevator, which is excellent for storage. The gallery includes offices, restrooms, and changing rooms. The sales area was renovated in 2000, while the other spaces require renovation. The ceiling height varies between 4.5 and 5.0 meters and is covered with a suspended ceiling. Heating is provided by a central boiler. There is a camera surveillance system. It is air-conditioned. Previously functioned as a grocery store and is currently in an empty state.
Registration Number
UZ017688
Property Details
Sales
for sale
Legal Status
used
Character
commercial
Type of Business Property
part of building
Construction Method
brick
Net Size
575 m²
Above-Ground Net Size
575 m²
Ceiling Height
500 cm
View
city view
Condition
To be renovated
Condition of Facade
Excellent
Condition of Staircase
Excellent
Year of Construction
1937
Water
Available
Gas
Available
Electricity
Available
Sewer
Available
Elevator
available
Accessibility
Entrance from busy main road
Utilization
vacant