568,579 Ft
1,470 €
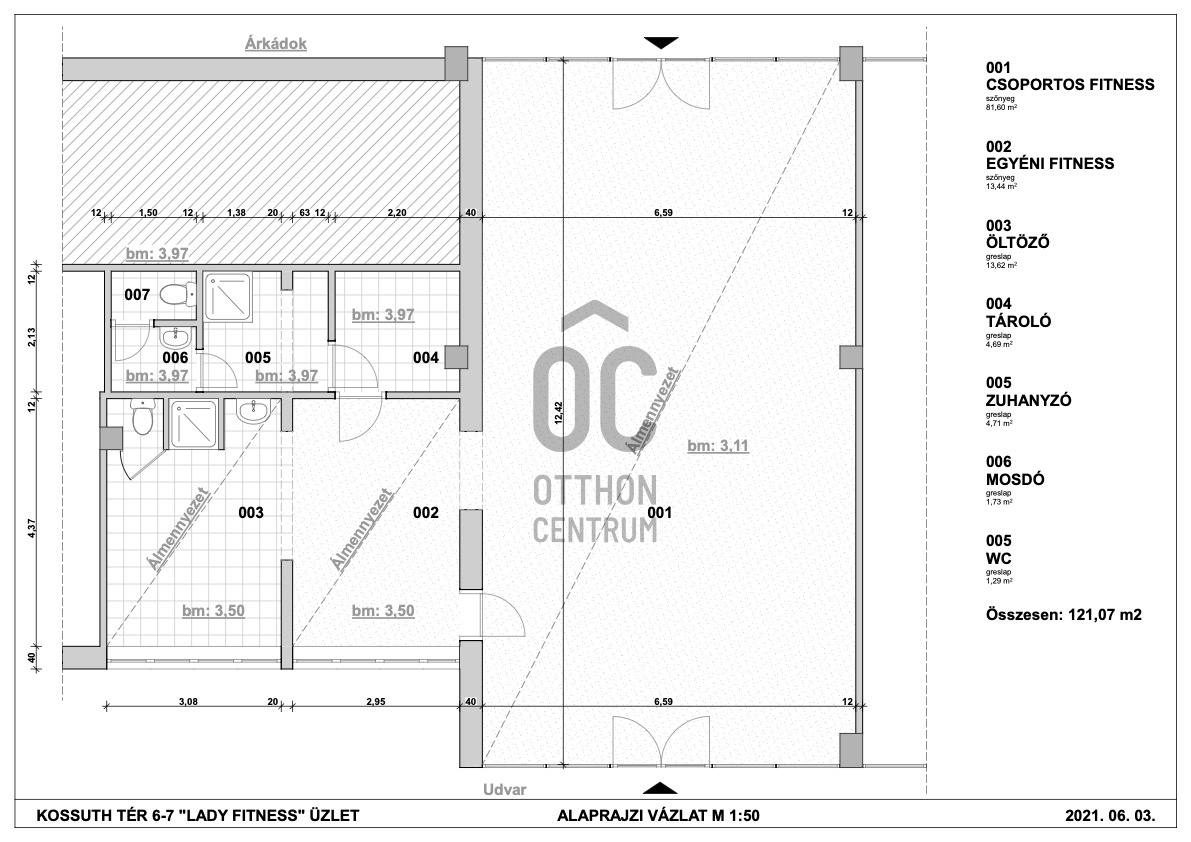
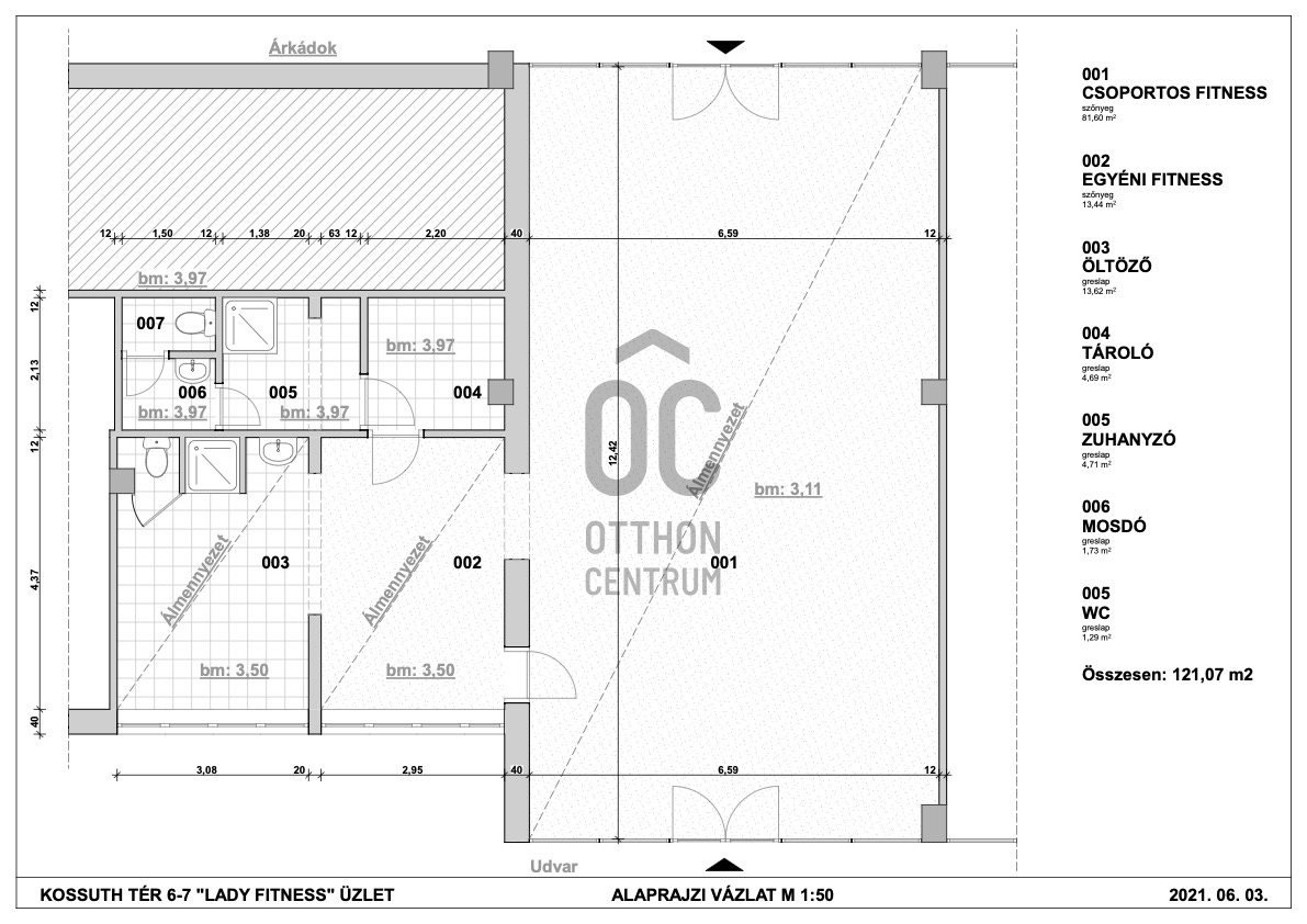
- 121m²
- ground floor





Üzlet a Lordok aljában
Vállakozni kívánók figyelmébe ajánlom ezt az ingatlant, elsősorban olyanoknak akiknek fontos a lokáció! Ez az ingatlan a Kossuth téren lévő Lordok házának a passage részén van, nagy átmenőforgalommal rendelkezik, jó állapotú bérlemény.
Az ingatlan alkalmas:
- edzőteremnek(az is volt régebben)
- kiskereskedelmi egységnek
- irodának
Az ingatlan a Kikfor Kft tulajdona, megtekintés miatt hívjon bizalommal!
Az ingatlan alkalmas:
- edzőteremnek(az is volt régebben)
- kiskereskedelmi egységnek
- irodának
Az ingatlan a Kikfor Kft tulajdona, megtekintés miatt hívjon bizalommal!
Registration Number
UZ013995
Property Details
Sales
for rent
Legal Status
used
Character
commercial
Type of Business Property
part of building
Construction Method
slipform
Net Size
121 m²
Above-Ground Net Size
121 m²
Heating
district heating
Ceiling Height
400 cm
Condition
Average
Condition of Facade
Good
Condition of Staircase
Good
Year of Construction
1970
Water
Available
Gas
Available
Electricity
Available
Sewer
Available
Possible Functions
retail, office, office and showroom or shop, office and warehouse, showroom, showroom and service or warehouse, sports center, healthcare center, educational center
Visibility
Located on a side street
Accessibility
Entrance from side street
Utilization
vacant