data_sheet.details.realestate.section.main.otthonstart_flag.label
For sale new construction semi-detached house,
U0049581
Dunaharaszti
148,900,000 Ft
416,000 €
- 117m²
- 5 Rooms
NEWLY BUILT SEMI-DETACHED HOUSE IN DUNAHARASZTI, IN THE BEZERÉDI RESIDENTIAL PARK – modern home with excellent technical specifications!
In the popular area of Dunaharaszti, we are offering for sale a newly built semi-detached house with excellent features in the quiet, family-friendly neighborhood of the Bezerédi residential park. The design and technical solutions of the property fully ensure the comfort of an independent family home, making it an ideal choice for those who want a peaceful home without compromises.
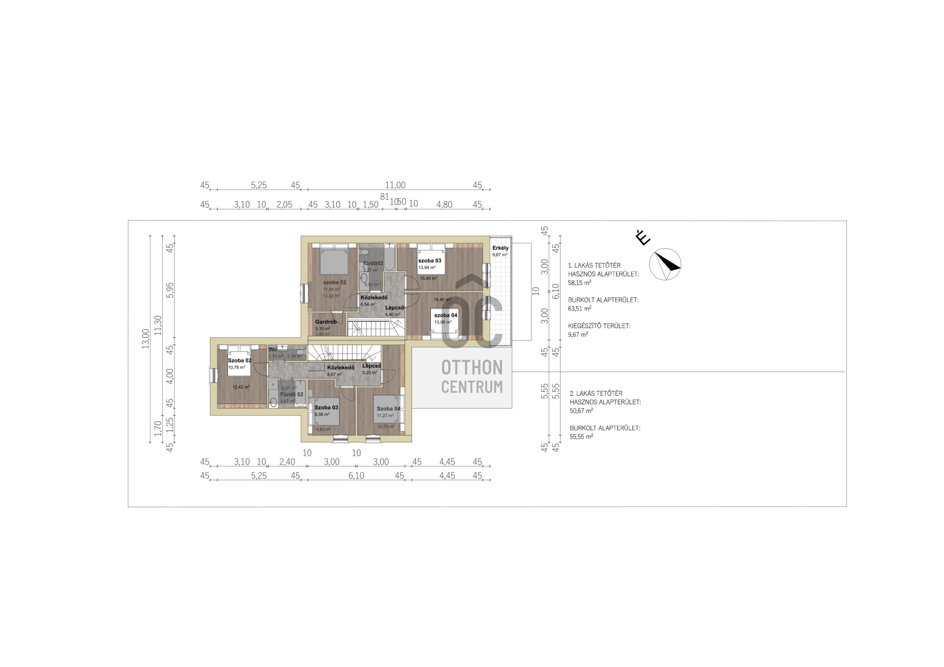
The apartment has a gross floor area of 110.43 m², which includes an additional 13.52 m² terrace and balcony, as well as a 405 m² private garden. The interior layout is practical: it features a spacious living room, 4 separate bedrooms, 2 bathrooms, and a dressing room.
The property is exceptionally energy-efficient (A+ rating), serviced by a modern heat pump system. The floor, ceiling, and wall heating and cooling provide a consistent thermal sensation throughout the year, while keeping maintenance costs low.
One of the greatest advantages of the semi-detached house is the excellent technical separation: the living units are separated by double walls, and the ceiling structures are built separately, ensuring high levels of sound insulation and privacy.
Key parameters:
• 110.43 m² living space + 13.52 m² outdoor connections
• 405 m² private garden
• Living room + 4 bedrooms
• 2 bathrooms
• A+ energy efficiency
• Heat pump system with complex surface heating and cooling
• 3-layer modern windows
• Preparation for electric blinds, mosquito nets
Brief technical content:
• 30 cm Porotherm masonry
• 15 cm EPS + 25 cm PIR thermal insulation
• Monolithic reinforced concrete ceiling
• Terrán Zenit Resistor roof tiles (in graphite shade)
• Stable, reinforced concrete structure
• Floor coverings can be chosen according to demand
The house can be customized to individual needs: there is an option for solar panel preparation and the establishment of a smart home system.
The environment is ideal for families: the streets of the residential park are traffic-free, and all important institutions and services can be found nearby – shopping options, kindergarten, school, medical office, and public transport connections.
Expected handover time: July 2026
Reservations for the property can be made with a 30% down payment.
If needed, we also provide comprehensive administrative assistance – in loan management and legal background support.
If you are looking for a modern, well-thought-out home that represents long-term value, it is worth getting to know it in person!
For inquiries, feel free to contact us, even on weekends!
The apartment has a gross floor area of 110.43 m², which includes an additional 13.52 m² terrace and balcony, as well as a 405 m² private garden. The interior layout is practical: it features a spacious living room, 4 separate bedrooms, 2 bathrooms, and a dressing room.
The property is exceptionally energy-efficient (A+ rating), serviced by a modern heat pump system. The floor, ceiling, and wall heating and cooling provide a consistent thermal sensation throughout the year, while keeping maintenance costs low.
One of the greatest advantages of the semi-detached house is the excellent technical separation: the living units are separated by double walls, and the ceiling structures are built separately, ensuring high levels of sound insulation and privacy.
Key parameters:
• 110.43 m² living space + 13.52 m² outdoor connections
• 405 m² private garden
• Living room + 4 bedrooms
• 2 bathrooms
• A+ energy efficiency
• Heat pump system with complex surface heating and cooling
• 3-layer modern windows
• Preparation for electric blinds, mosquito nets
Brief technical content:
• 30 cm Porotherm masonry
• 15 cm EPS + 25 cm PIR thermal insulation
• Monolithic reinforced concrete ceiling
• Terrán Zenit Resistor roof tiles (in graphite shade)
• Stable, reinforced concrete structure
• Floor coverings can be chosen according to demand
The house can be customized to individual needs: there is an option for solar panel preparation and the establishment of a smart home system.
The environment is ideal for families: the streets of the residential park are traffic-free, and all important institutions and services can be found nearby – shopping options, kindergarten, school, medical office, and public transport connections.
Expected handover time: July 2026
Reservations for the property can be made with a 30% down payment.
If needed, we also provide comprehensive administrative assistance – in loan management and legal background support.
If you are looking for a modern, well-thought-out home that represents long-term value, it is worth getting to know it in person!
For inquiries, feel free to contact us, even on weekends!
Registration Number
U0049581
Property Details
Sales
for sale
Legal Status
new
Character
house
Construction Method
brick
Net Size
117 m²
Gross Size
117 m²
Plot Size
405 m²
Size of Terrace / Balcony
11.7 m²
Heating
heat pump
Ceiling Height
270 cm
Number of Levels Within the Property
1
Orientation
East
Condition
Excellent
Condition of Facade
Excellent
Neighborhood
quiet, good transport
Year of Construction
2026
Number of Bathrooms
2
Water
Available
Electricity
Available
Sewer
Available
Storage
Independent
Rooms
living room
22.5 m²
open-plan kitchen and dining room
9.07 m²
room
12.02 m²
room
9.83 m²
room
12.78 m²
room
10.42 m²
toilet
2.39 m²
bathroom
4.31 m²
bathroom-toilet
3.52 m²
corridor
8.57 m²
entryway
2.75 m²
storage
5.02 m²
terrace
11.72 m²