data_sheet.details.realestate.section.main.otthonstart_flag.label
For sale new construction family house,
U0049100
Hajdúsámson
79,900,000 Ft
213,000 €
- 95m²
- 4 Rooms
Hajdúsámsonban – új 3 szobás családi ház várja Önt!
Hajdúsámson új lakóparkjában újabb családi házak foglalhatóak!
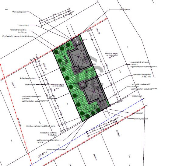
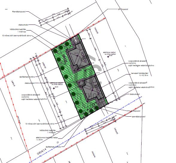
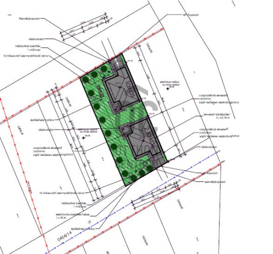
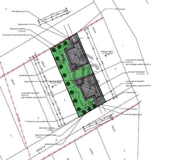
Az építési övezet jellemzői:
-Lke-3 kertvárosias lakózóna
-oldalhatáron álló beépítettség van
-beépítése max 30%, zöldfelület min. 50%
-építménymagasság: 5 m
-előkert és oldalkert mérete: 5 m
Az ingatlanokra vonatkozó adatok:
* telek mérete: 484 m2, a hirdetési ár tartalmazza a telekhányad árát, mely 9 M Ft
* beépített alapterület: 26,42 % ingatlanonként pedig 128,047 m2
* 30-as viablokk hanggátló falazat, 15 cm AUSTROTHERM hőszigeteléssel
* a lakótér területe: 95 m2
* 3 szoba + nappalis elosztású
* nyílásszárók 3 rétegű műanyag nyílászárók fehér színben
* fűtés és melegvíz ellátás víz-levegő hőszivattyú
* osztatlan közös területen található (teljes telek méret 970 m2)
* az ár tartalmazza a térkövezést ill. körbe kerítést,
* víz van az utcában jelenlegi helyzet miatt átadás fúrt kúttal történik vízszűrő berendezéssel, vízóra akna kiépítésre került
* csatorna van telken belül, azonban jelenleg csatlakozási lehetőség nincs
* gáz nincs
* áram van
Tervezett átadás: 2026. dec.31
Az épület jelenleg alapozásnál tart!
Az ingatlanra Csok+, piaci hitel és babaváró támogatás felhsználható!
Az ingatlan tulajdoni lap szerint külterület, ezért az Otthon Start hitel feltételeinek 2026. januártól megfelel! Addig vidd míg tart a hitelkeret!
Egyeztetés telefonon, megtekintés előre egyeztetett időpontban lehetséges!
Az építési övezet jellemzői:
-Lke-3 kertvárosias lakózóna
-oldalhatáron álló beépítettség van
-beépítése max 30%, zöldfelület min. 50%
-építménymagasság: 5 m
-előkert és oldalkert mérete: 5 m
Az ingatlanokra vonatkozó adatok:
* telek mérete: 484 m2, a hirdetési ár tartalmazza a telekhányad árát, mely 9 M Ft
* beépített alapterület: 26,42 % ingatlanonként pedig 128,047 m2
* 30-as viablokk hanggátló falazat, 15 cm AUSTROTHERM hőszigeteléssel
* a lakótér területe: 95 m2
* 3 szoba + nappalis elosztású
* nyílásszárók 3 rétegű műanyag nyílászárók fehér színben
* fűtés és melegvíz ellátás víz-levegő hőszivattyú
* osztatlan közös területen található (teljes telek méret 970 m2)
* az ár tartalmazza a térkövezést ill. körbe kerítést,
* víz van az utcában jelenlegi helyzet miatt átadás fúrt kúttal történik vízszűrő berendezéssel, vízóra akna kiépítésre került
* csatorna van telken belül, azonban jelenleg csatlakozási lehetőség nincs
* gáz nincs
* áram van
Tervezett átadás: 2026. dec.31
Az épület jelenleg alapozásnál tart!
Az ingatlanra Csok+, piaci hitel és babaváró támogatás felhsználható!
Az ingatlan tulajdoni lap szerint külterület, ezért az Otthon Start hitel feltételeinek 2026. januártól megfelel! Addig vidd míg tart a hitelkeret!
Egyeztetés telefonon, megtekintés előre egyeztetett időpontban lehetséges!
Registration Number
U0049100
Property Details
Sales
for sale
Legal Status
new
Character
house
Construction Method
ytong
Net Size
95 m²
Gross Size
110 m²
Plot Size
482 m²
Size of Terrace / Balcony
14 m²
Heating
renewable
Ceiling Height
270 cm
Orientation
South-West
Condition
Excellent
Condition of Facade
Excellent
Neighborhood
good transport
Year of Construction
2026
Number of Bathrooms
2
Rooms
entryway
3.65 m²
kitchen
10.36 m²
open-plan living and dining room
31 m²
bathroom-toilet
5.75 m²
wardrobe
4.56 m²
utility room
5.75 m²
bedroom
13.12 m²
bedroom
8.01 m²
bedroom
9.61 m²
bathroom-toilet
3.12 m²
Czellér András
Credit Expert