data_sheet.details.realestate.section.main.otthonstart_flag.label
For sale new construction apartment,
U0048948
Szolnok, Belváros
84,067,550 Ft
235,000 €
- 84.4m²
- 4 Rooms
- 2nd floor
Eladó igényes újépítésű lakás Szolnok belvárosában!
Szolnok szívében, egy modern, 12 lakásos újépítésű társasházban kínálunk eladásra egy igényesen kialakított, minőségi anyagokból épült lakást. A lakás tágas, világos, energiahatékony, és minden kényelmet biztosít a leendő tulajdonosának.
Ingatlan jellemzői:
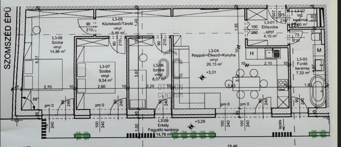
- 77,11 nm +14,76 erkély
- 2. emelet
- nappali+ konyha +étkező (26,15 nm) + 3 szoba
- tágas terek
- fűtés Nobo Fjord fali fűtőtestek
- napelem
- klíma
Ideális választás fiatal pároknak, családoknak vagy befektetésnek is.
Várható átadás : 2026- 09 hó
További műszaki leírással állok rendelkezésére!
Az ingatlanhoz van lehetőség garázs vagy udvari beálló vásárlására.
Irodánkban bankfüggetlen hitel-ügyintézéssel állunk ügyfeleink rendelkezésére!
A hirdetésben szereplő információkat a megbízótól kaptuk, irodánk azokért felelősséget nem vállal!
Ha felkeltettem érdeklődését, kérem hívjon, forduljon hozzám bizalommal, és nézzük meg együtt !
Szolnok szívében, egy modern, 12 lakásos újépítésű társasházban kínálunk eladásra egy igényesen kialakított, minőségi anyagokból épült lakást. A lakás tágas, világos, energiahatékony, és minden kényelmet biztosít a leendő tulajdonosának.
Ingatlan jellemzői:
- 77,11 nm +14,76 erkély
- 2. emelet
- nappali+ konyha +étkező (26,15 nm) + 3 szoba
- tágas terek
- fűtés Nobo Fjord fali fűtőtestek
- napelem
- klíma
Ideális választás fiatal pároknak, családoknak vagy befektetésnek is.
Várható átadás : 2026- 09 hó
További műszaki leírással állok rendelkezésére!
Az ingatlanhoz van lehetőség garázs vagy udvari beálló vásárlására.
Irodánkban bankfüggetlen hitel-ügyintézéssel állunk ügyfeleink rendelkezésére!
A hirdetésben szereplő információkat a megbízótól kaptuk, irodánk azokért felelősséget nem vállal!
Ha felkeltettem érdeklődését, kérem hívjon, forduljon hozzám bizalommal, és nézzük meg együtt !
Registration Number
U0048948
Property Details
Sales
for sale
Legal Status
new
Character
apartment
Construction Method
brick
Net Size
84.4 m²
Gross Size
84.4 m²
Size of Terrace / Balcony
14.7 m²
Heating
electric, infrared
Ceiling Height
270 cm
Number of Levels Within the Property
1
Orientation
East
Staircase Type
enclosed staircase
Condition
Excellent
Condition of Facade
Excellent
Condition of Staircase
Excellent
Year of Construction
2026
Number of Bathrooms
1
Position
street-facing
Water
Available
Electricity
Available
Sewer
Available
Rooms
entryway
4.1 m²
toilet-washbasin
1.6 m²
bathroom
7.33 m²
open-plan kitchen and living room
26.15 m²
corridor
5.46 m²
room
8.07 m²
room
9.54 m²
room
14.86 m²
Szuda Zsolt
Credit Expert