168,900,000 Ft
472,000 €
- 150m²
- 4 Rooms
Eladásra kínálunk egy igényes, útépítésű földszintes családi házat, Érd egyik legkedveltebb környékén, Parkváros és Dombosváros határán.
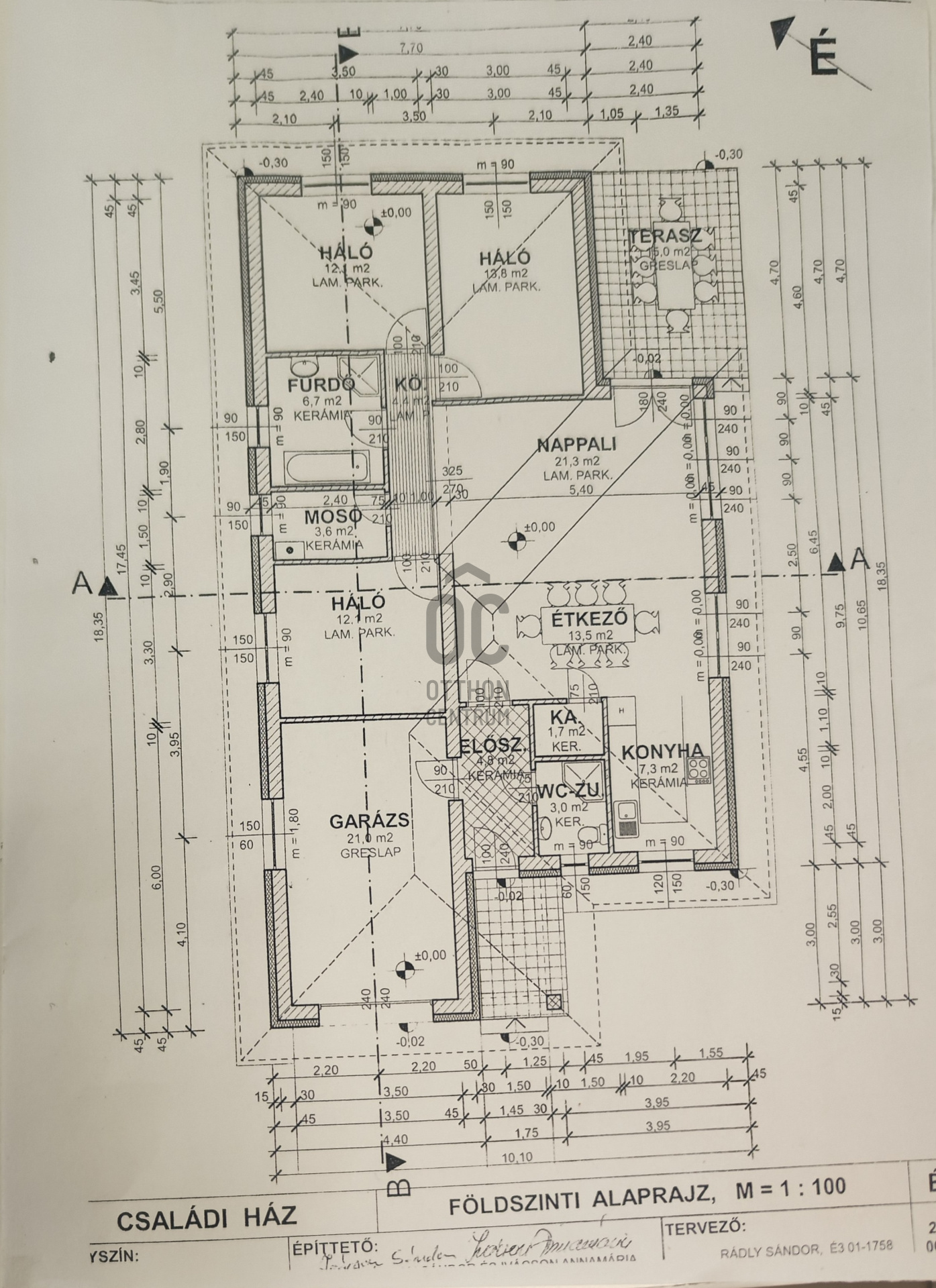
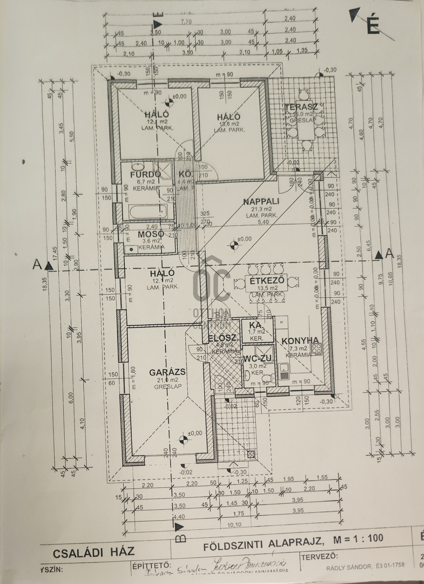
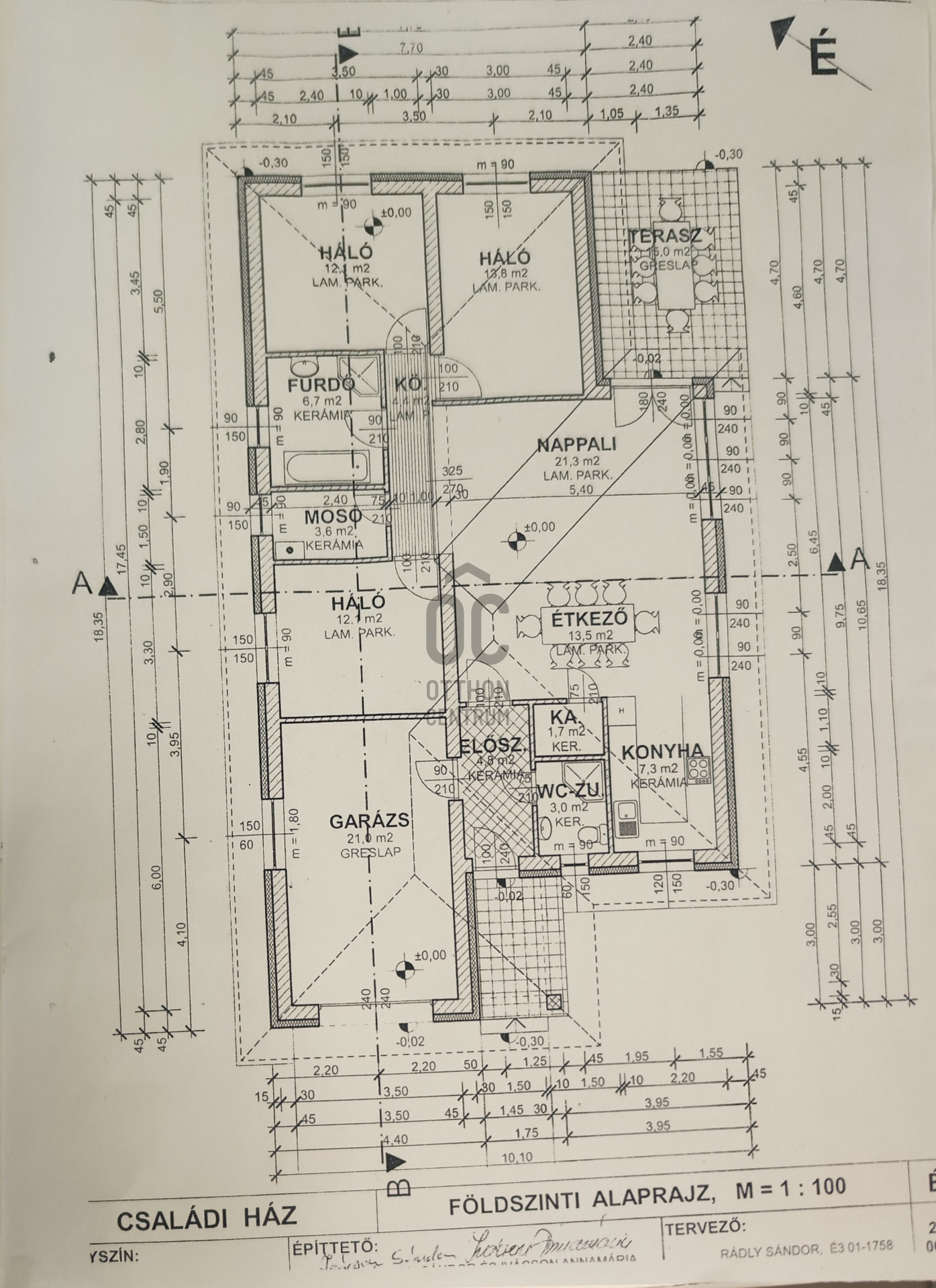
Az ingatlan 150 m², 4 szobás, 659 m²-es önálló telken helyezkedik el, és magas minőségű anyagokból, energiahatékony technológiával épült.
Főbb jellemzők:
GREE SPLIT hőszivattyú + 400 literes HMV-tároló
Padlófűtés és mennyezeti hűtés
Monolit vasbeton födém, 30 cm tégla + 15 cm hőszigetelés
Motoros alumínium redőnyök, előkészítés automatizáláshoz
Riasztórendszer, elektromos kapu és garázsbejárat
„Az energetikai tanúsítvány készítése folyamatban van, amint rendelkezésre áll, úgy azzal a hirdetés frissítésre kerül.”
Amerikai konyhás nappali nagy üvegfelületekkel
Terméskő burkolat, travertin kőpárkányok, Terrán cserépfedés
Választható elemek (az ár tartalmazza):
Burkolatok 9 000 Ft/m²-ig
Szaniterek 700 000 Ft összértékben
Beltéri ajtók 100 000 Ft/db értékhatárig
A ház alacsony rezsiköltségű, modern és kényelmes, minden fázis dokumentálva.
Tökéletes választás, ha új építésű, földszintes, saját kertes otthont keres, Érd egyik legjobb részén.
Keressen bizalommal további információért vagy a megtekintés egyeztetéséért!
Az ingatlan 150 m², 4 szobás, 659 m²-es önálló telken helyezkedik el, és magas minőségű anyagokból, energiahatékony technológiával épült.
Főbb jellemzők:
GREE SPLIT hőszivattyú + 400 literes HMV-tároló
Padlófűtés és mennyezeti hűtés
Monolit vasbeton födém, 30 cm tégla + 15 cm hőszigetelés
Motoros alumínium redőnyök, előkészítés automatizáláshoz
Riasztórendszer, elektromos kapu és garázsbejárat
„Az energetikai tanúsítvány készítése folyamatban van, amint rendelkezésre áll, úgy azzal a hirdetés frissítésre kerül.”
Amerikai konyhás nappali nagy üvegfelületekkel
Terméskő burkolat, travertin kőpárkányok, Terrán cserépfedés
Választható elemek (az ár tartalmazza):
Burkolatok 9 000 Ft/m²-ig
Szaniterek 700 000 Ft összértékben
Beltéri ajtók 100 000 Ft/db értékhatárig
A ház alacsony rezsiköltségű, modern és kényelmes, minden fázis dokumentálva.
Tökéletes választás, ha új építésű, földszintes, saját kertes otthont keres, Érd egyik legjobb részén.
Keressen bizalommal további információért vagy a megtekintés egyeztetéséért!
Registration Number
U0048869
Property Details
Sales
for sale
Legal Status
new
Character
house
Construction Method
brick
Net Size
150 m²
Gross Size
150 m²
Plot Size
659 m²
Size of Terrace / Balcony
15 m²
Heating
heat pump
Ceiling Height
265 cm
Orientation
South-West
Condition
Excellent
Condition of Facade
Excellent
Year of Construction
2025
Number of Bathrooms
2
Garage
Included in the price
Garage Spaces
1
Water
Available
Gas
Available
Electricity
Available
Sewer
Available
Rooms
open-plan kitchen and living room
42.1 m²
entryway
10 m²
room
12.1 m²
room
12.1 m²
room
13.8 m²
bathroom-toilet
3 m²
bathroom
6.7 m²
pantry
1.7 m²
laundry room
3.6 m²
Hazay Melinda
Credit Expert