960,000,000 Ft
2,513,000 €
- 192,000m²
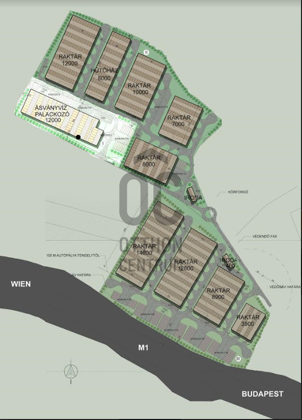
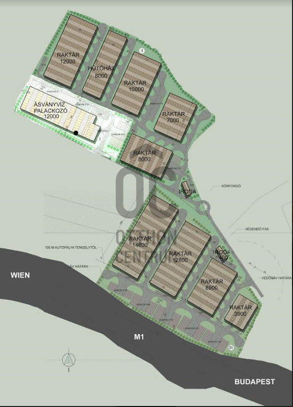
Eladó 19,2 ha beruházási terület az M1 mellett 60 %-os beépíthetőséggel
Eladó 19,2 ha beruházási terület az M1 mellett 60 %-os beépíthetőséggel
Elhelyezkedés:
- Központi régióban található
- Közvetlen autópálya lehajtó
- M0 10-15 percre
- Budapest 40 km
- Bécs 210 km
- Ferihegy 50 km
- Győr 80 km
A terület egy része közvetlen az autópálya mellett van, a másik része beljebb, csendesebb részen.
A beruházási terület nagyon sok lehetőséget rejt magában,
akár ipari hasznosításra,
- ásványvíz palackozó üzem,
- logisztikai központ,
- gyár, stb./
akár egyéb fejlesztésekre,
- idősek otthona,
- kórház,
- wellness központ stb./.
Övezeti besorolás: GKSZ
Beépíthetőség: 60 %
Építmény magasság: 12 méter
Minimum zöldfelület: 20 %
A területre összesen 115200 nm felépítmény építhető.
Az alsó terület mellett további 7 ha vásárlására van még lehetőség.
Elhelyezkedés:
- Központi régióban található
- Közvetlen autópálya lehajtó
- M0 10-15 percre
- Budapest 40 km
- Bécs 210 km
- Ferihegy 50 km
- Győr 80 km
A terület egy része közvetlen az autópálya mellett van, a másik része beljebb, csendesebb részen.
A beruházási terület nagyon sok lehetőséget rejt magában,
akár ipari hasznosításra,
- ásványvíz palackozó üzem,
- logisztikai központ,
- gyár, stb./
akár egyéb fejlesztésekre,
- idősek otthona,
- kórház,
- wellness központ stb./.
Övezeti besorolás: GKSZ
Beépíthetőség: 60 %
Építmény magasság: 12 méter
Minimum zöldfelület: 20 %
A területre összesen 115200 nm felépítmény építhető.
Az alsó terület mellett további 7 ha vásárlására van még lehetőség.
Registration Number
T028242
Property Details
Sales
for sale
Character
plot
Type of Land
Developmental plot
Zone
industrial-economic zone
Plot Size
192,000 m²
Orientation
East
Water
On the street
Gas
On the street
Electricity
On the street
Buildability
60%
Facade Height
120
Type of Buildable Property
Industrial hall or warehouse, Farm building
Liber Róbert Ferenc
Credit Expert