205,900,000 Ft
525,000 €
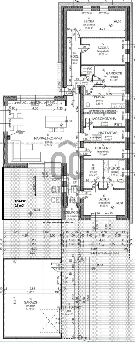
- 185m²
- 5 Rooms
Megvételre kínálom ezt a kiváló minőségű családi házat Pest vármegye szívében, Nagytarcsán.
Az ingatlan 185 m2-es, amerikai konyhás nappali +3 és fél szobás, amely tökéletes helyet biztosít a családi együttlétekhez és a baráti összejövetelekhez.
És, hogy mitől annyira prémium ez a 2022-ben épült ház?
- 966 m2 telek
- 30 cm-es ytong falazat, rajta 20 cm kőzetgyapot szigetelés
- dupla aljzatszigetelés
- műanyag nyílászárók 3 rétegű üvegezéssel
- a nappaliban és a közlekedőkben valódi márvány padlóburkolat
- padlófűtés az egész házban
- hang és hőszigetelt 60 cm-es betonfödém
- betoncserép fedés
- rejtett redőnytokok
- 5 db hűtő-fűtő inverteres klíma
- 2 fürdőszoba
- 3 wc
- riasztórendszer vezetékezése megtörtént
- 2 állásos garázs
- az esőcsatorna egy föld alatti esővízgyűjtőbe van vezetve
- télikert, ami alatt pince található
- 22 m2 terasz
- magánúton megközelíthető
A tetőtérbe a közművek kiállása megtörtént, így tovább bővíthető a hasznos lakótér.
A környék biztonságos és csendes, ideális választás családok számára, akik szeretnék, ha gyermekeik nyugodt környezetben nőhetnének fel. Nagytarcsa kiváló közlekedési lehetőségeket kínál, hiszen a város könnyen megközelíthető autóval, de a tömegközlekedés is jól kiépített, így a főváros könnyen elérhető.
Ez az ingatlan nem csupán egy ház, hanem egy exkluzív otthon, amely a modern élet minden követelményének megfelel.
Ha Ön is szeretne egy olyan helyet, ahol a család minden tagja megtalálja a számításait, ne habozzon!
Kérdéseivel bizalommal kereshet engem, szívesen állok rendelkezésére, hogy segítsek Önnek megtalálni álmai otthonát.
Az ingatlan 185 m2-es, amerikai konyhás nappali +3 és fél szobás, amely tökéletes helyet biztosít a családi együttlétekhez és a baráti összejövetelekhez.
És, hogy mitől annyira prémium ez a 2022-ben épült ház?
- 966 m2 telek
- 30 cm-es ytong falazat, rajta 20 cm kőzetgyapot szigetelés
- dupla aljzatszigetelés
- műanyag nyílászárók 3 rétegű üvegezéssel
- a nappaliban és a közlekedőkben valódi márvány padlóburkolat
- padlófűtés az egész házban
- hang és hőszigetelt 60 cm-es betonfödém
- betoncserép fedés
- rejtett redőnytokok
- 5 db hűtő-fűtő inverteres klíma
- 2 fürdőszoba
- 3 wc
- riasztórendszer vezetékezése megtörtént
- 2 állásos garázs
- az esőcsatorna egy föld alatti esővízgyűjtőbe van vezetve
- télikert, ami alatt pince található
- 22 m2 terasz
- magánúton megközelíthető
A tetőtérbe a közművek kiállása megtörtént, így tovább bővíthető a hasznos lakótér.
A környék biztonságos és csendes, ideális választás családok számára, akik szeretnék, ha gyermekeik nyugodt környezetben nőhetnének fel. Nagytarcsa kiváló közlekedési lehetőségeket kínál, hiszen a város könnyen megközelíthető autóval, de a tömegközlekedés is jól kiépített, így a főváros könnyen elérhető.
Ez az ingatlan nem csupán egy ház, hanem egy exkluzív otthon, amely a modern élet minden követelményének megfelel.
Ha Ön is szeretne egy olyan helyet, ahol a család minden tagja megtalálja a számításait, ne habozzon!
Kérdéseivel bizalommal kereshet engem, szívesen állok rendelkezésére, hogy segítsek Önnek megtalálni álmai otthonát.
Registration Number
H515090
Property Details
Sales
for sale
Legal Status
used
Character
house
Construction Method
ytong
Net Size
185 m²
Gross Size
185 m²
Plot Size
966 m²
Size of Terrace / Balcony
22 m²
Heating
Gas circulator
Ceiling Height
280 cm
Orientation
West
Condition
Excellent
Condition of Facade
Excellent
Basement
Independent
Neighborhood
quiet, green
Year of Construction
2022
Number of Bathrooms
2
Garage
Included in the price
Garage Spaces
2
Water
Available
Gas
Available
Electricity
Available
Sewer
Available
Rooms
open-plan kitchen and living room
53.13 m²
room
17.36 m²
room
12.88 m²
toilet-washbasin
1.27 m²
bathroom-toilet
16.6 m²
laundry room
8.14 m²
half room
6.6 m²
study
7.48 m²
room
12.36 m²
wardrobe
6 m²
bathroom-toilet
6.77 m²
corridor
6.3 m²
corridor
7.41 m²
garage
47.19 m²
Joó Krisztina
Credit Expert