data_sheet.details.realestate.section.main.otthonstart_flag.label
For sale family house,
H511298
Nyársapát
46,500,000 Ft
124,000 €
- 113m²
- 3 Rooms
Három szoba+nappali családi ház Nyársapáton!
Eladásra kínálok Nyársapát csendes részén egy szerkezetileg jól megépített, felújított családi házat!
Az ingatlan téglából épült 1970-ben, és 1463 m² telken helyezkedik el.
Az épület 2024-ben teljes körű felújítást kapott, melynek során kicserélték a teljes villany hálózatot, új burkolatokat kaptak a helyiségek.
Az épület fűtése gázcirko, nyáron a nappaliban felszerelt 5.3 kw inverteres, hűtő-fűtő funkcióval ellátott klíma biztosítja a kellemes hőmérsékletet.
Új bejárati ajtó, és új műanyag nyílászárók kerültek behelyezésre az utcafront felőli szobáknál.
A nappaliban régi de jó állapotú fa nyílászáró található, az ablakok redőnyös.
A korszerűsítés során új fűtés rendszert alakítottak ki.
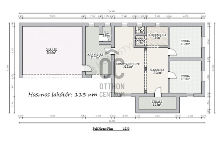
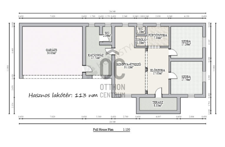
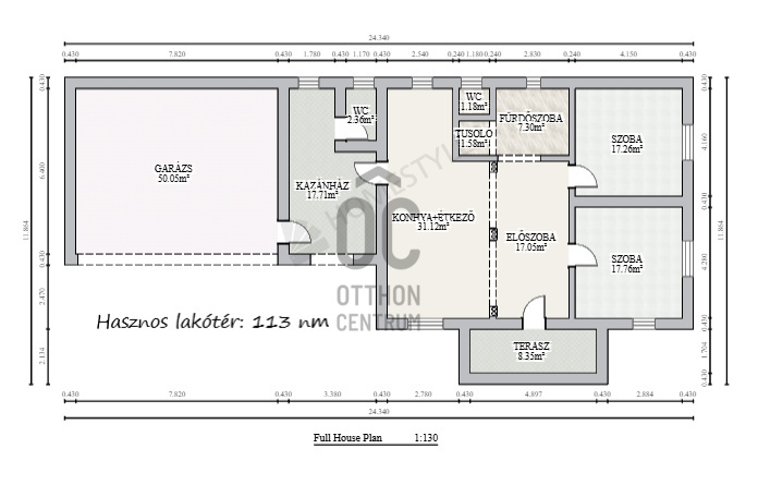
HASZNOS LAKÓ TÉR 113 m²
- kettő külön nyíló szoba
- nappali
- konyha+étkező
- fürdőszoba+WC
- előszoba
A főépületből átjárható a kazánház, ahol egy WC+kézmosó is kialakításra került.
Az ingatlanhoz tartozik egy 50 m² dupla garázs, ahonnan a kazánházon keresztül a konyha könnyen megközelíthető.
A szépen gondozott, rendezett telken egy hangulatos kis tó, fúrt kút, az udvar hátsó részén ólak, és tárolók találhatóak.
INGATLAN ELHELYEZKEDÉSE
Iskola, élelmiszerbolt, Polgármesteri Hivatal, Művelődési központ, pizzéria 500 méteren belül, gyalogosan is könnyen megközelíthető.
MIÉRT AJÁNLOM A FIGYELMÉBE?
- nem kell a felújítással bajlódnia
- jelenlegi állapotában azonnal költözhető
- alapvetően csendes, nyugodt, szép környéken helyezkedik el, zöldövezet mellett
- per- és tehermentes ingatlan
Amennyiben megtetszett Önnek ez a harmonikus családi ház, várom megtisztelő hívását az ország legismertebb ingatlanközvetítő hálózat tagjaként.
Elérhető vagyok a hét minden napján.
Érdemes tudni, hogy az Otthon Centrum több banknak is az egyik legnagyobb ügyfele, ezért nálunk kedvezőbb konstrukciókkal tud lakáshitelhez jutni, rövidebb időn belül!
A hitelközvetítésünk ingyenes!
#Nyársapát #kettőszoba+nappali #központifűtés #113m² #klíma #duplagarázs #tégla
Az ingatlan téglából épült 1970-ben, és 1463 m² telken helyezkedik el.
Az épület 2024-ben teljes körű felújítást kapott, melynek során kicserélték a teljes villany hálózatot, új burkolatokat kaptak a helyiségek.
Az épület fűtése gázcirko, nyáron a nappaliban felszerelt 5.3 kw inverteres, hűtő-fűtő funkcióval ellátott klíma biztosítja a kellemes hőmérsékletet.
Új bejárati ajtó, és új műanyag nyílászárók kerültek behelyezésre az utcafront felőli szobáknál.
A nappaliban régi de jó állapotú fa nyílászáró található, az ablakok redőnyös.
A korszerűsítés során új fűtés rendszert alakítottak ki.
HASZNOS LAKÓ TÉR 113 m²
- kettő külön nyíló szoba
- nappali
- konyha+étkező
- fürdőszoba+WC
- előszoba
A főépületből átjárható a kazánház, ahol egy WC+kézmosó is kialakításra került.
Az ingatlanhoz tartozik egy 50 m² dupla garázs, ahonnan a kazánházon keresztül a konyha könnyen megközelíthető.
A szépen gondozott, rendezett telken egy hangulatos kis tó, fúrt kút, az udvar hátsó részén ólak, és tárolók találhatóak.
INGATLAN ELHELYEZKEDÉSE
Iskola, élelmiszerbolt, Polgármesteri Hivatal, Művelődési központ, pizzéria 500 méteren belül, gyalogosan is könnyen megközelíthető.
MIÉRT AJÁNLOM A FIGYELMÉBE?
- nem kell a felújítással bajlódnia
- jelenlegi állapotában azonnal költözhető
- alapvetően csendes, nyugodt, szép környéken helyezkedik el, zöldövezet mellett
- per- és tehermentes ingatlan
Amennyiben megtetszett Önnek ez a harmonikus családi ház, várom megtisztelő hívását az ország legismertebb ingatlanközvetítő hálózat tagjaként.
Elérhető vagyok a hét minden napján.
Érdemes tudni, hogy az Otthon Centrum több banknak is az egyik legnagyobb ügyfele, ezért nálunk kedvezőbb konstrukciókkal tud lakáshitelhez jutni, rövidebb időn belül!
A hitelközvetítésünk ingyenes!
#Nyársapát #kettőszoba+nappali #központifűtés #113m² #klíma #duplagarázs #tégla
Registration Number
H511298
Property Details
Sales
for sale
Legal Status
used
Character
house
Construction Method
brick
Net Size
113 m²
Gross Size
125 m²
Plot Size
1,463 m²
Size of Terrace / Balcony
8.3 m²
Heating
Gas circulator
Ceiling Height
272 cm
Orientation
East
Condition
Average
Condition of Facade
Average
Neighborhood
quiet, good transport, green
Year of Construction
1970
Number of Bathrooms
1
Garage
Included in the price
Water
Available
Gas
Available
Electricity
Available
Sewer
Available
Storage
Independent
Rooms
room
17.76 m²
room
17.26 m²
open-plan kitchen and dining room
31.12 m²
bathroom
8.88 m²
entryway
17.12 m²
toilet
1.18 m²
boiler room
20.07 m²
garage
50 m²
terrace
8.35 m²