198,000,000 Ft
510,000 €
- 385m²
- 8 Rooms


































Fedezze fel álmai otthonát Sopronban: Tágas 8 szobás ház az Egeredi dombon!
Egy különleges lehetőséget kínálunk nagycsaládosok vagy összeköltözők számára, akik álmaik otthonát keresik a gyönyörű Sopronban, a csendes és zöld Egeredi dombon. Az ingatlan alapterülete 385 négyzetméter, míg a telek mérete 459 négyzetméter és egy sarok telken helyezkedik el így két utca felől is megközelíthető.
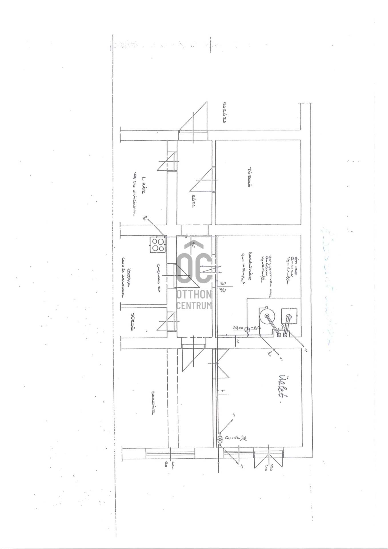
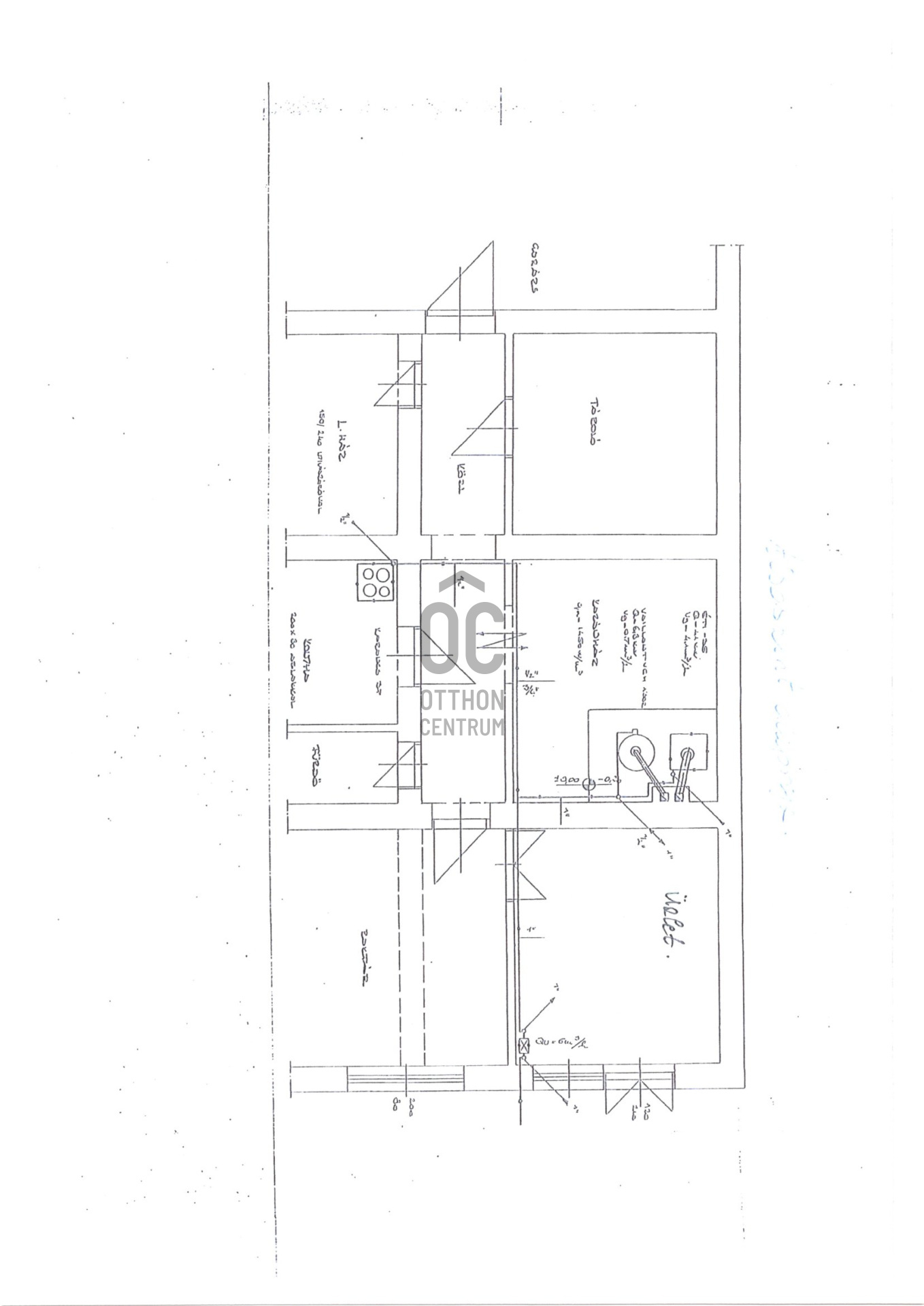
A ház három szintes, három különálló lakással, melyek zárt lépcsőházból, külön bejárattal klözelíthetőek meg.
A földszinten , amely 130 m2 található
- konyha-étkezővel
- kamra
- kazánház
- mosókonyha
- mosdó
- üzlethelyiség, mely külön bejárattal az utcafrontról közelíthető meg.
Az I. emeleten, amely 130 m2 található
- 4 tágas szoba
- konyha étkezővel
- fürdőszoba+ wc
- különálló wc
- spájz
- mosókonyha
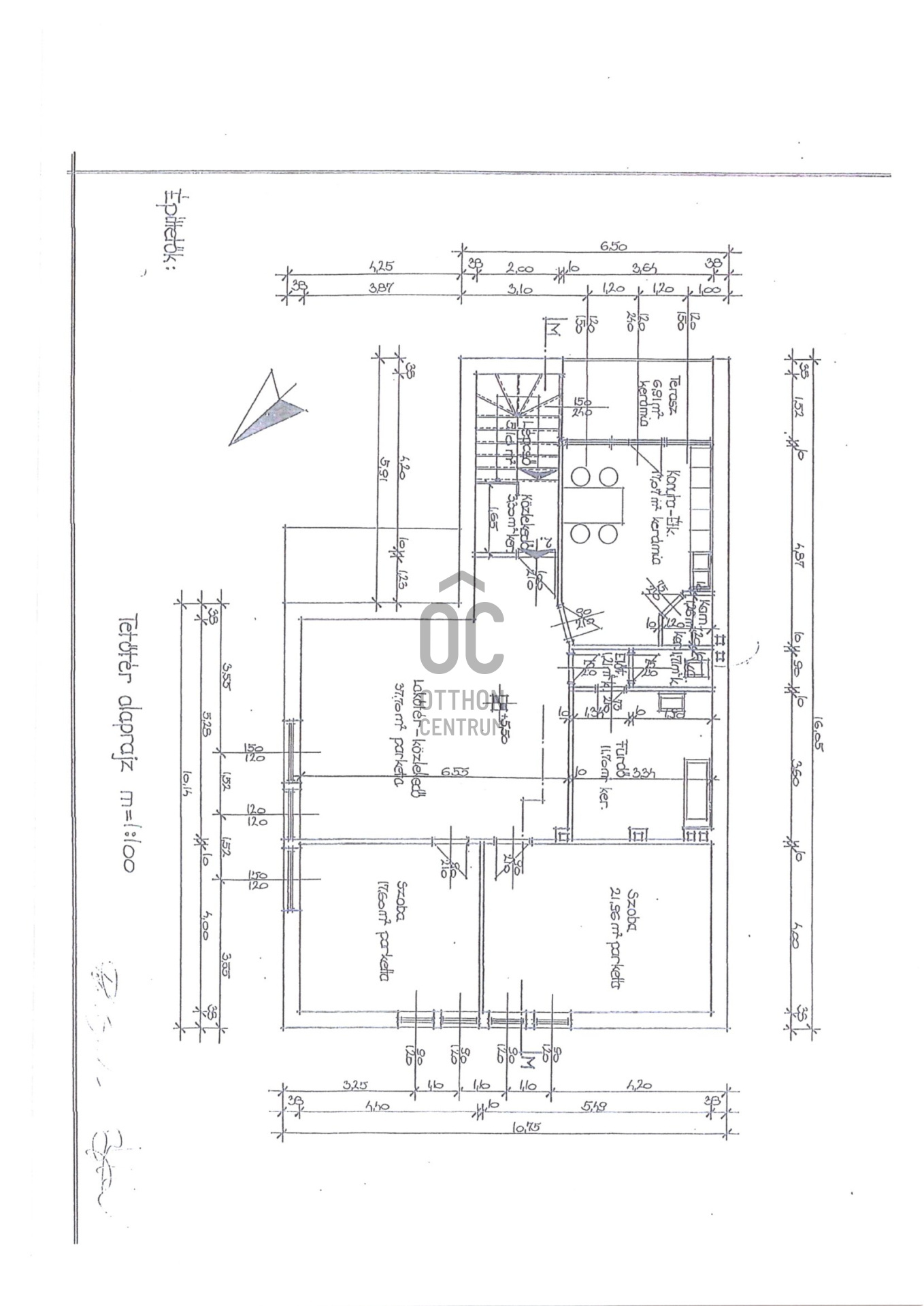
A II. emelet ami 125 m2 található
- tágas nappali
- 2 szoba
- konyha étkezővel
- spájz
- fürdőszoba
- külön wc
- mosókonyha
- erkély
- Téglaépítésű ház, vastag 40 cm falakkal és 12 cm szigeteléssel.
- Műanyag ablakok 3 rétegű üveggel, alu redőnnyel, szúnyoghálóval 5 éve lettek cserélve.
- A ház fűtését kondenzációs gázkazán és vegyestüzelésű kazán biztosítja.
- A ház jól megközelíthető központi helyen van, mégis csendes nyugodt környezet.
A házban több generáció is zavartalanul tud élni, az önálló bejáratoknak köszönhetően.
Alkalmas lehet akár összeköltöző családoknak, apartmannak vagy panziónak is.
Az udvaron található 3 garázs is, melyek közül az egyik autószerelő műhely beépített emelővel.
Az utcán a parkolás aház előtt ingyenes, akár több autó is elfér.
Ha felkeltettem érdeklődését keressen bizalommal, további információért.
Hitelre van szüksége?
Az Otthon Centrum az ország egyik legnagyobb és legmegbízhatóbb hitelközvetítőjeként, teljes körű és díjmentes hitelügyintézéssel, biztosításkötéssel áll rendelkezésére!
Kérje személyre szabott ajánlatunkat Kollégáinktól!
Lakásbiztosításban is otthon vagyunk!
Ingatlan és biztosítás egy helyen! Szakértő kollégáink segítenek megtalálni a legmegfelelőbb ajánlatot.
A ház három szintes, három különálló lakással, melyek zárt lépcsőházból, külön bejárattal klözelíthetőek meg.
A földszinten , amely 130 m2 található
- konyha-étkezővel
- kamra
- kazánház
- mosókonyha
- mosdó
- üzlethelyiség, mely külön bejárattal az utcafrontról közelíthető meg.
Az I. emeleten, amely 130 m2 található
- 4 tágas szoba
- konyha étkezővel
- fürdőszoba+ wc
- különálló wc
- spájz
- mosókonyha
A II. emelet ami 125 m2 található
- tágas nappali
- 2 szoba
- konyha étkezővel
- spájz
- fürdőszoba
- külön wc
- mosókonyha
- erkély
- Téglaépítésű ház, vastag 40 cm falakkal és 12 cm szigeteléssel.
- Műanyag ablakok 3 rétegű üveggel, alu redőnnyel, szúnyoghálóval 5 éve lettek cserélve.
- A ház fűtését kondenzációs gázkazán és vegyestüzelésű kazán biztosítja.
- A ház jól megközelíthető központi helyen van, mégis csendes nyugodt környezet.
A házban több generáció is zavartalanul tud élni, az önálló bejáratoknak köszönhetően.
Alkalmas lehet akár összeköltöző családoknak, apartmannak vagy panziónak is.
Az udvaron található 3 garázs is, melyek közül az egyik autószerelő műhely beépített emelővel.
Az utcán a parkolás aház előtt ingyenes, akár több autó is elfér.
Ha felkeltettem érdeklődését keressen bizalommal, további információért.
Hitelre van szüksége?
Az Otthon Centrum az ország egyik legnagyobb és legmegbízhatóbb hitelközvetítőjeként, teljes körű és díjmentes hitelügyintézéssel, biztosításkötéssel áll rendelkezésére!
Kérje személyre szabott ajánlatunkat Kollégáinktól!
Lakásbiztosításban is otthon vagyunk!
Ingatlan és biztosítás egy helyen! Szakértő kollégáink segítenek megtalálni a legmegfelelőbb ajánlatot.
Registration Number
H506587
Property Details
Sales
for sale
Legal Status
used
Character
house
Construction Method
brick
Net Size
385 m²
Gross Size
390 m²
Plot Size
459 m²
Heating
Gas circulator
Ceiling Height
300 cm
Number of Levels Within the Property
3
Orientation
North-East
View
city view
Condition
Good
Condition of Facade
Good
Neighborhood
quiet, good transport
Year of Construction
1971
Number of Bathrooms
3
Water
Available
Gas
Available
Electricity
Available
Sewer
Available
Multi-Generational
yes
Rooms
open-plan kitchen and dining room
26 m²
pantry
10.56 m²
laundry room
10.5 m²
toilet
3.6 m²
shop
22.5 m²
boiler room
19.6 m²
bathroom-toilet
10.5 m²
corridor
19.8 m²
room
10.56 m²
storage
1.77 m²
open-plan kitchen and dining room
20.7 m²
room
19.56 m²
room
20 m²
room
15 m²
entryway
12 m²
bathroom-toilet
7 m²
toilet
1.6 m²
staircase
9.6 m²
open-plan kitchen and dining room
17.7 m²
bathroom
11.7 m²
room
21.96 m²
room
17.6 m²
living room
37.7 m²
corridor
3.3 m²
staircase
6 m²
terrace
7 m²
pantry
3 m²

Horváth Zsoltné Edit
Credit Expert