data_sheet.details.realestate.section.main.otthonstart_flag.label
For sale semi-detached house,
GDH377810
Szeged, Új Petőfitelep
89,000,000 Ft
229,000 €
- 122m²
- 3 Rooms
















ELADÓ IKERHÁZ ÚJPETŐFITELEPEN
Szeged dinamikusan fejlődő és kiváló közlekedési adottságokkal rendelkező, de mégis csendes, békés, kertvárosias hangulatot árasztó városrészében eladó ez az 1981-ben épült ikerház egyik fele.
Az ingatlan 511 m2-es telken található, a 2 épületrész teljesen tükörképe egymásnak, használati megosztással rendelkezik így hitelezhető is.
A jobb oldali rész, ami eladóvá vált 2009-ben teljes körű felújításon esett át, a nyílászárók korszerű hőszigeteltre lettek cserélve, a külső homlokzat 5 cm-es szigetelést kapott, a villamos hálózat is fel lett újítva, 3 fázis is van. A padlástérben elkezdődött még egy szobának a kialakítása, de ezt majd az új tulajdonos igény szerint fejezheti be.
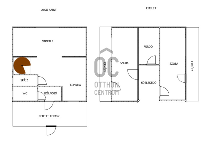
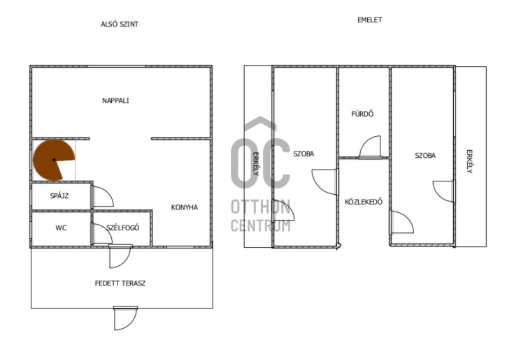
A fő épület 122 m2, belső 2 szintes, az alsó részen egy 20 m2-es fedett teraszról jutunk a házba, ahol wc, és spájz található a bejáratnál. az alsó szinten egy nagy közösségi tér lett kialakítva, itt kaphat helyet a konyha ( kialakítása az új tulajdonosra vár) és az étkező illetve a nappali.
Az emeleti részen 2 hálószoba, mindkettő erkély kapcsolattal és egy fördőszoba kapott helyet.
Az udvar hátsó részében található egy melléképület, szintén magosztva ahogy az ikerház is, itt egy beépített teraszról egy konyhába, abból pedig egy szobába juthatunk, ami akár egy külön lakrésze is lehet idősebb szülőnek, vagy önállósódni vágyó gyermeknek.
Minkét lakrész fűtéséről Ariston típusú vadonatúj kazán gondoskodik, radiátoros hőleadókkal.
Kiváló választás lehet gyermekes családnak, vagy több generáció összeköltözésére.
Az ingatlan tehermentes, rövid határidővel költözhető!
NÉZZE MEG AJÁNLATUNKAT SZEMÉLYESEN IS!
Szeged dinamikusan fejlődő és kiváló közlekedési adottságokkal rendelkező, de mégis csendes, békés, kertvárosias hangulatot árasztó városrészében eladó ez az 1981-ben épült ikerház egyik fele.
Az ingatlan 511 m2-es telken található, a 2 épületrész teljesen tükörképe egymásnak, használati megosztással rendelkezik így hitelezhető is.
A jobb oldali rész, ami eladóvá vált 2009-ben teljes körű felújításon esett át, a nyílászárók korszerű hőszigeteltre lettek cserélve, a külső homlokzat 5 cm-es szigetelést kapott, a villamos hálózat is fel lett újítva, 3 fázis is van. A padlástérben elkezdődött még egy szobának a kialakítása, de ezt majd az új tulajdonos igény szerint fejezheti be.
A fő épület 122 m2, belső 2 szintes, az alsó részen egy 20 m2-es fedett teraszról jutunk a házba, ahol wc, és spájz található a bejáratnál. az alsó szinten egy nagy közösségi tér lett kialakítva, itt kaphat helyet a konyha ( kialakítása az új tulajdonosra vár) és az étkező illetve a nappali.
Az emeleti részen 2 hálószoba, mindkettő erkély kapcsolattal és egy fördőszoba kapott helyet.
Az udvar hátsó részében található egy melléképület, szintén magosztva ahogy az ikerház is, itt egy beépített teraszról egy konyhába, abból pedig egy szobába juthatunk, ami akár egy külön lakrésze is lehet idősebb szülőnek, vagy önállósódni vágyó gyermeknek.
Minkét lakrész fűtéséről Ariston típusú vadonatúj kazán gondoskodik, radiátoros hőleadókkal.
Kiváló választás lehet gyermekes családnak, vagy több generáció összeköltözésére.
Az ingatlan tehermentes, rövid határidővel költözhető!
NÉZZE MEG AJÁNLATUNKAT SZEMÉLYESEN IS!
Registration Number
GDH377810
Property Details
Sales
for sale
Legal Status
used
Character
house
Construction Method
brick
Net Size
122 m²
Gross Size
150 m²
Plot Size
256 m²
Size of Terrace / Balcony
25 m²
Heating
Gas circulator
Ceiling Height
2,700 cm
Condition
Excellent
Condition of Facade
Good
Year of Construction
1981
Position
street-facing
Number of Covered Parking Spots
1
Water
Available
Gas
Available
Electricity
Available
Sewer
Available
Connected to Garden
yes
Storage
Independent