Eladó újépítésű lakás, P4798-1-0A-11-1101
Budapest XI. kerület, Kelenföld

191 130 000 Ft

505 000 €

  • 86,5m²
  • 4 szoba
  • 11. emelet

Prémium életérzés Újbuda Duna-partján

Ez a lakás:
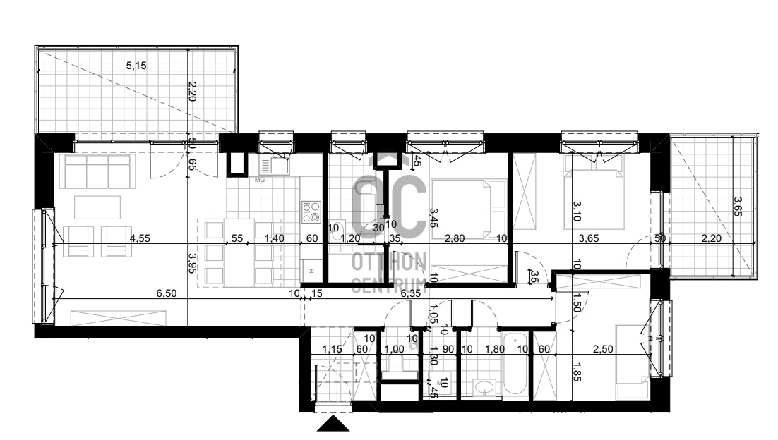
NY,É,D-i tájolású, napfényes lakás a sétány felé nyitott kilátással.
Az ablakos konyha, a két fürdőszoba – melyek közül az egyik az egyik hálószobához kapcsolódik – valamint a külön háztartási helyiség a kényelmes, jól szervezett mindennapokat szolgálják.
A lakás két terasszal rendelkezik: az egyik a nappaliból, a másik az egyik hálószobából nyílik, ideális teret biztosítva pihenéshez és elvonuláshoz.

Regisztrációs szám

P4798-1-0A-11-1101

Az ingatlan adatai

Értékesités
eladó
Jogi státusz
új
Jelleg
lakás
Építési mód
tégla
Méret
86,5 m²
Bruttó méret
97,7 m²
Terasz / erkély mérete
20,4 m²
Belmagasság
270 cm
Lakáson belüli szintszám
1
Tájolás
Dél-nyugat
Panoráma
városi panoráma, Egyéb
Lépcsőház típusa
zárt lépcsőház
Állapot
Kiváló
Homlokzat állapota
Kiváló
Lépcsőház állapota
Kiváló
Környék
jó közlekedés, központi
Építés éve
2027
Fürdőszobák száma
2
Fekvés
udvari
Garázs
Külön vásárolható
Víz
Van
Villany
Van
Csatorna
Van
Lift
van
Tároló
Külön vásárolható
Vízpart távolsága
vízparti

Helyiségek

előszoba
3.35 m²
nappali
22.53 m²
konyha
6.07 m²
ebédlő
3.96 m²
fürdőszoba
3.33 m²
hálószoba
12.18 m²
hálószoba
10.71 m²
hálószoba
9.48 m²
közlekedő
6.93 m²
fürdőszoba-wc
5 m²
wc-kézmosó
1.3 m²
háztartási helyiség
1.67 m²
terasz
12 m²
terasz
8.39 m²
Tóth Róbert
Tóth Róbert

Hitelszakértő

Irodánk kínálatából - II. kerület - TDG

for sale new construction apartment

Index image
34

for sale new construction apartment

Index image
37

for sale new construction apartment

Index image
37

eladó lakás

Index image
Elérhető Otthon Start hitellel
15

for sale new construction apartment

Index image
28

for sale apartment

Index image
16

for sale apartment

Index image
12

eladó lakás

Index image
12

kiadó lakás

Index image
34

eladó lakás

Index image
9