179 000 000 Ft
470 000 €
- 78m²
- 3 szoba
- 2. emelet
Magával ragadó hangulat a XII. kerület egyik legkedveltebb utcájában
Egy lakás, amelyben a művészet nem dísz, hanem jelenlét. Üdv itthon!
RÖVID ÖSSZEFOGLALÓ
Budapest XII. kerületének ikonikus bel-budai részén, a Kiss János altábornagy utcában található ez a 78 m²-es, nappali + két hálós két fürdős teljeskörűen felújított erkélyes lakás tárolóval.
A 2. emeleten, liftes épületben helyezkedik el, déli tájolású, így a terek egész nap világosak és barátságosak. Modern gépészet (padlófűtés, hűtő–fűtő klímával, H-tarifán) és igényes belső kialakítás várja új tulajdonosát. A közös költség kedvező: 17 000 Ft.
ELHELYEZKEDÉS – XII. KERÜLET, KISS JÁNOS ALTÁBORNAGY UTCA
A környék évtizedek óta a XII. kerület legélhetőbb részei közé tartozik: sok zöld, klasszikus épületek, széles utcák és egyfajta csendes, budai elegancia jellemzi.
A Kiss János altábornagy utca különösen szerethető, mert ritka módon ötvözi a központi és a nyugodt fekvést: innen indulni és ide megérkezni is jó.
A közvetlen közelben több karakteres budai helyszín is megtalálható: a Királyhágó tér, az Apor Vilmos tér, a Németvölgyi játszótér és a Böszörményi út mind pár perces sétára vannak. A mindennapi bevásárlást kisboltok, pékségek és hentesek könnyítik meg — ott van a Szamos Cukrászda, a Fragola, a MOM Park pedig néhány perces távolságban művészmozijával, éttermeivel, üzleteivel.
Ez a környék kulturálisan is él: a Polgármesteri Hivatal előtti téren tavasztól őszig kézműves vásárok, nemzetközi ízek fesztiválja, szabadtéri tangóestek és más programok váltják egymást.
Tömegközlekedéssel is kiválóan ellátott:
– 102-es, 105-ös, 112-es busz,
– 59-es és 61-es villamos,
– gyors elérés a Széll Kálmán tér, a Déli pályaudvar és a belváros felé.
AZ ÉPÜLET – KLASSZIKUS, RENDEZETT, JÓL KARBANTARTOTT
A társasház rendezett, igényes és lifttel felszerelt — ritka érték ebben a városrészben. A közös területek tiszták, a lakóközösség barátságos és hosszú távon gondolkodó.
ÚJ OTTHONOD BELSŐ VILÁGA – MŰVÉSZIEN ÚJRAÉRTELMEZETT POLGÁRI TEREK
Belépés után egy tágas előtér nyitja meg a lakás hangulatát: a méretre készült fa előszobabútor és az itt kialakított étkező természetes átmenetet ad a közösségi és privát zónák között. A frissen gyártott fa nyílászárók az eredeti polgári ablakok karakterét idézik, így a felújítás egyszerre tiszteleg a ház múltja előtt és teremti meg a modern érzést.
A nappali déli irányból kapja a fényt, így egész nap meleg tónusok járják át a teret. A felújításnál tudatos koncepció szerint válogatták össze a bútorokat és tárgyakat: Breuer Marcell szék hoz markáns, ikonikus jelenlétet, Török János keramikus padlóvázája szoborszerű, mégis otthonos eleme a helyiségnek, a klasszikus márvány dohányzóasztal pedig finom eleganciát ad a nappali közepének. A háttérben álló, Angliából származó, 1960-as évekből fennmaradt eredeti komód olyan darab, amely önmagában is időtlen karaktert hordoz.
A falakon Dukai István, hazai kortárs festő és grafikus művei jelennek meg – minimalista, geometrikus kompozíciói nem harsányak, mégis mélyen formálják a tér ritmusát. A színek redukált világa és a kompozíciók tisztasága tökéletesen kapcsolódik a lakás elegáns, visszafogott enteriőrjéhez. A művek megvásárolhatók; a technikájukról, történetükről személyesen mesélsz majd az érdeklődőknek.
A világítás külön történet: régi, galériákból vásárolt és az ország különböző pontjairól összegyűjtött lámpák finom fényeket rajzolnak a falakra. Este meleg, kifejező atmoszféra tölti meg a nappalit – olyan fényekkel, amelyek emberközelibbé és intimebbé teszik a teret.
A konyha egyedi asztalosmunka: a gépesítés letisztult, a tárolás átgondolt, a felületek harmonikusan illeszkednek a lakás művészien szerkesztett stílusához. A funkcionalitás modern, a látvány mégis klasszikusabb tónust követ, így a tér nem töri meg a polgári alaphangot.
A szülői háló intimebb helyre került, távolabb a központi terektől. Üvegajtós átjárón keresztül vezet a saját fürdőszobába, ahol a len függöny lágyítja a fényt és megtöri a felületek feszességét. Az ágy fejtámlája angol szövetből készült, a két oldalsó olvasólámpa pedig kifejezetten a pihenés kényelmét szolgálja. A szoba olyan hangulatot áraszt, amely egyszerre csendes, elegáns és időtlen.
A második hálószoba rugalmasan alakítható: gyerekszobaként, vendégszobaként vagy dolgozóként is jól működik. A tér mellett található különálló zuhanyzó és külön WC ritka előny, különösen akkor, ha vendégek érkeznek, vagy ha egy tinédzsernek szeretnék önállóbb, privát életteret kialakítani. A választott angol tapéták és olasz burkolatok itt is elegáns, hangsúlyos karaktert adnak a szobának.
A fürdőkben az olasz burkolatok és a letisztult, modern szaniterek harmóniája látható. A hidegburkolatos helyiségekben külön termosztáttal vezérelt padlófűtés működik, minden szobában pedig hűtő–fűtő klíma adja a komfortot H-tarifával, amely jelentősen kedvezőbb, mint a hagyományos gázfűtési megoldások.
A déli fekvésű erkély egész nap fényben úszik, reggeltől késő délutánig. A mérete ugyan intim, mégis használható: kávézóasztalos kialakítása miatt tökéletes hely egy gyors reggelihez, egy esti megálláshoz vagy egy pár perces nyugalomhoz a nappal ritmusában.
Ez a lakás nem egyszerűen felújított ingatlan — sokkal inkább egy művészien összeállított tartalmi egység, ahol a múlt értékei és a kortárs szemlélet egyetlen, harmonikus történetté állnak össze.
MŰSZAKI TARTALOM
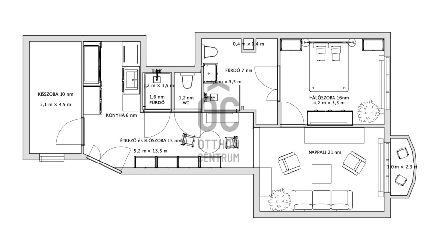
• alapterület: 78 m²
• nappali + 2 háló (N+2)
• erkély
• 2 fürdőszoba
• padlófűtés a hidegburkolatos helyiségekben, külön termosztáttal
• hűtő–fűtő klímarendszer H-tarifával (a fűtés költsége kb. fele a gázfűtéshez képest)
• déli tájolás
• utcai kilátás
• liftes épület
• közös költség: 17 000 Ft
• tároló és parkoló: nincs
A vételár a képeken látható minden bútort és gépet tartalmaz.
ÖSSZEGZÉS
Ez az otthon azoknak szól, akik a XII. kerület nyugodt, rendezett, értéktartó részén keresnek felújított, azonnal költözhető lakást.
A modern gépészet, a két fürdő, a napfényes belső terek és a kiváló elhelyezkedés együtt olyan mindennapi kényelmet adnak, amely hosszú távon is biztonságos döntéssé teszi ezt a lakást.
Ha szeretnéd élőben is megtapasztalni ezt a kellemes, tiszta atmoszférát, keress időpontért bizalommal.
----------------------------------------------
Díjmentes, bankfüggetlen hiteltanácsadással támogatjuk vevő ügyfeleinket a számukra legelőnyösebb finanszírozási döntések meghozatalában. Opcionálisan igénybe vehető kiegészítő szolgáltatásainkkal – mint ügyvédi közreműködés, energetikai tanúsítvány vagy villamos biztonsági felülvizsgálat – teljes körű szakmai támogatást nyújtunk az adásvétel folyamatának minden egyes lépésénél.
--------------------------------------------
A hirdetésben szereplő információk tájékoztató jellegűek. A tévedés és az árváltoztatás jogát fenntartjuk. Az esetleges elírásokért és technikai hibákért felelősséget nem vállalunk.
RÖVID ÖSSZEFOGLALÓ
Budapest XII. kerületének ikonikus bel-budai részén, a Kiss János altábornagy utcában található ez a 78 m²-es, nappali + két hálós két fürdős teljeskörűen felújított erkélyes lakás tárolóval.
A 2. emeleten, liftes épületben helyezkedik el, déli tájolású, így a terek egész nap világosak és barátságosak. Modern gépészet (padlófűtés, hűtő–fűtő klímával, H-tarifán) és igényes belső kialakítás várja új tulajdonosát. A közös költség kedvező: 17 000 Ft.
ELHELYEZKEDÉS – XII. KERÜLET, KISS JÁNOS ALTÁBORNAGY UTCA
A környék évtizedek óta a XII. kerület legélhetőbb részei közé tartozik: sok zöld, klasszikus épületek, széles utcák és egyfajta csendes, budai elegancia jellemzi.
A Kiss János altábornagy utca különösen szerethető, mert ritka módon ötvözi a központi és a nyugodt fekvést: innen indulni és ide megérkezni is jó.
A közvetlen közelben több karakteres budai helyszín is megtalálható: a Királyhágó tér, az Apor Vilmos tér, a Németvölgyi játszótér és a Böszörményi út mind pár perces sétára vannak. A mindennapi bevásárlást kisboltok, pékségek és hentesek könnyítik meg — ott van a Szamos Cukrászda, a Fragola, a MOM Park pedig néhány perces távolságban művészmozijával, éttermeivel, üzleteivel.
Ez a környék kulturálisan is él: a Polgármesteri Hivatal előtti téren tavasztól őszig kézműves vásárok, nemzetközi ízek fesztiválja, szabadtéri tangóestek és más programok váltják egymást.
Tömegközlekedéssel is kiválóan ellátott:
– 102-es, 105-ös, 112-es busz,
– 59-es és 61-es villamos,
– gyors elérés a Széll Kálmán tér, a Déli pályaudvar és a belváros felé.
AZ ÉPÜLET – KLASSZIKUS, RENDEZETT, JÓL KARBANTARTOTT
A társasház rendezett, igényes és lifttel felszerelt — ritka érték ebben a városrészben. A közös területek tiszták, a lakóközösség barátságos és hosszú távon gondolkodó.
ÚJ OTTHONOD BELSŐ VILÁGA – MŰVÉSZIEN ÚJRAÉRTELMEZETT POLGÁRI TEREK
Belépés után egy tágas előtér nyitja meg a lakás hangulatát: a méretre készült fa előszobabútor és az itt kialakított étkező természetes átmenetet ad a közösségi és privát zónák között. A frissen gyártott fa nyílászárók az eredeti polgári ablakok karakterét idézik, így a felújítás egyszerre tiszteleg a ház múltja előtt és teremti meg a modern érzést.
A nappali déli irányból kapja a fényt, így egész nap meleg tónusok járják át a teret. A felújításnál tudatos koncepció szerint válogatták össze a bútorokat és tárgyakat: Breuer Marcell szék hoz markáns, ikonikus jelenlétet, Török János keramikus padlóvázája szoborszerű, mégis otthonos eleme a helyiségnek, a klasszikus márvány dohányzóasztal pedig finom eleganciát ad a nappali közepének. A háttérben álló, Angliából származó, 1960-as évekből fennmaradt eredeti komód olyan darab, amely önmagában is időtlen karaktert hordoz.
A falakon Dukai István, hazai kortárs festő és grafikus művei jelennek meg – minimalista, geometrikus kompozíciói nem harsányak, mégis mélyen formálják a tér ritmusát. A színek redukált világa és a kompozíciók tisztasága tökéletesen kapcsolódik a lakás elegáns, visszafogott enteriőrjéhez. A művek megvásárolhatók; a technikájukról, történetükről személyesen mesélsz majd az érdeklődőknek.
A világítás külön történet: régi, galériákból vásárolt és az ország különböző pontjairól összegyűjtött lámpák finom fényeket rajzolnak a falakra. Este meleg, kifejező atmoszféra tölti meg a nappalit – olyan fényekkel, amelyek emberközelibbé és intimebbé teszik a teret.
A konyha egyedi asztalosmunka: a gépesítés letisztult, a tárolás átgondolt, a felületek harmonikusan illeszkednek a lakás művészien szerkesztett stílusához. A funkcionalitás modern, a látvány mégis klasszikusabb tónust követ, így a tér nem töri meg a polgári alaphangot.
A szülői háló intimebb helyre került, távolabb a központi terektől. Üvegajtós átjárón keresztül vezet a saját fürdőszobába, ahol a len függöny lágyítja a fényt és megtöri a felületek feszességét. Az ágy fejtámlája angol szövetből készült, a két oldalsó olvasólámpa pedig kifejezetten a pihenés kényelmét szolgálja. A szoba olyan hangulatot áraszt, amely egyszerre csendes, elegáns és időtlen.
A második hálószoba rugalmasan alakítható: gyerekszobaként, vendégszobaként vagy dolgozóként is jól működik. A tér mellett található különálló zuhanyzó és külön WC ritka előny, különösen akkor, ha vendégek érkeznek, vagy ha egy tinédzsernek szeretnék önállóbb, privát életteret kialakítani. A választott angol tapéták és olasz burkolatok itt is elegáns, hangsúlyos karaktert adnak a szobának.
A fürdőkben az olasz burkolatok és a letisztult, modern szaniterek harmóniája látható. A hidegburkolatos helyiségekben külön termosztáttal vezérelt padlófűtés működik, minden szobában pedig hűtő–fűtő klíma adja a komfortot H-tarifával, amely jelentősen kedvezőbb, mint a hagyományos gázfűtési megoldások.
A déli fekvésű erkély egész nap fényben úszik, reggeltől késő délutánig. A mérete ugyan intim, mégis használható: kávézóasztalos kialakítása miatt tökéletes hely egy gyors reggelihez, egy esti megálláshoz vagy egy pár perces nyugalomhoz a nappal ritmusában.
Ez a lakás nem egyszerűen felújított ingatlan — sokkal inkább egy művészien összeállított tartalmi egység, ahol a múlt értékei és a kortárs szemlélet egyetlen, harmonikus történetté állnak össze.
MŰSZAKI TARTALOM
• alapterület: 78 m²
• nappali + 2 háló (N+2)
• erkély
• 2 fürdőszoba
• padlófűtés a hidegburkolatos helyiségekben, külön termosztáttal
• hűtő–fűtő klímarendszer H-tarifával (a fűtés költsége kb. fele a gázfűtéshez képest)
• déli tájolás
• utcai kilátás
• liftes épület
• közös költség: 17 000 Ft
• tároló és parkoló: nincs
A vételár a képeken látható minden bútort és gépet tartalmaz.
ÖSSZEGZÉS
Ez az otthon azoknak szól, akik a XII. kerület nyugodt, rendezett, értéktartó részén keresnek felújított, azonnal költözhető lakást.
A modern gépészet, a két fürdő, a napfényes belső terek és a kiváló elhelyezkedés együtt olyan mindennapi kényelmet adnak, amely hosszú távon is biztonságos döntéssé teszi ezt a lakást.
Ha szeretnéd élőben is megtapasztalni ezt a kellemes, tiszta atmoszférát, keress időpontért bizalommal.
----------------------------------------------
Díjmentes, bankfüggetlen hiteltanácsadással támogatjuk vevő ügyfeleinket a számukra legelőnyösebb finanszírozási döntések meghozatalában. Opcionálisan igénybe vehető kiegészítő szolgáltatásainkkal – mint ügyvédi közreműködés, energetikai tanúsítvány vagy villamos biztonsági felülvizsgálat – teljes körű szakmai támogatást nyújtunk az adásvétel folyamatának minden egyes lépésénél.
--------------------------------------------
A hirdetésben szereplő információk tájékoztató jellegűek. A tévedés és az árváltoztatás jogát fenntartjuk. Az esetleges elírásokért és technikai hibákért felelősséget nem vállalunk.
Regisztrációs szám
H511103
Az ingatlan adatai
Értékesités
eladó
Jogi státusz
használt
Jelleg
lakás
Építési mód
tégla
Méret
78 m²
Bruttó méret
79 m²
Terasz / erkély mérete
2,3 m²
Fűtés
Gáz cirkó
Belmagasság
330 cm
Lakáson belüli szintszám
1
Tájolás
Dél
Lépcsőház típusa
körfolyosó
Állapot
Kiváló
Homlokzat állapota
Jó
Lépcsőház állapota
Jó
Pince
Közös
Környék
jó közlekedés, központi
Építés éve
1914
Fürdőszobák száma
2
Fekvés
utcai
Közös költség
17000
Víz
Van
Gáz
Van
Villany
Van
Csatorna
Van
Lift
van
Tároló
Önálló
Helyiségek
előszoba
15 m²
konyha
6 m²
szoba
10 m²
fürdőszoba
1.6 m²
wc
1.2 m²
fürdőszoba-wc
7 m²
hálószoba
16 m²
nappali
21 m²
erkély
2.3 m²
Ruczek János
Hitelszakértő