Elérhető Otthon Start hitellel
Eladó ikerház,
DHZ023605
Szigetszentmiklós,
79 900 000 Ft
209 000 €
- 78m²
- 4 szoba
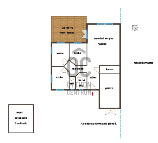
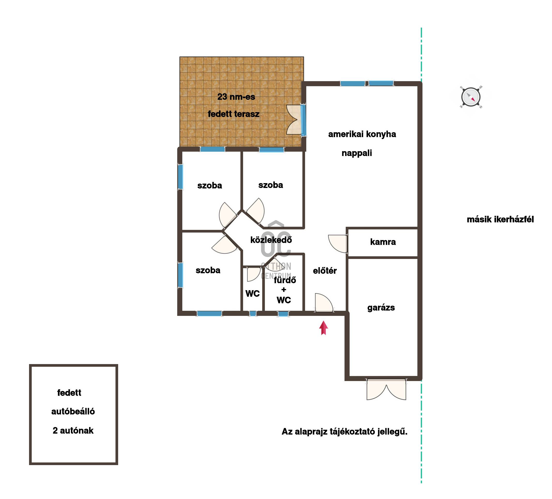
Szigetszentmiklóson, 2008-ban téglából épült szigetelt, nappali +3 hálószobás, 78 m2-es, ikerház, 500 m2-es telekkel, csendes zsákutcában sürgősen eladó!
- 30 cm vastag téglafalazat
- 10 cm szigetelés
- műanyag nyílászárók, redőny, szúnyogháló
- klíma
- fűtött garázs
- gázcirkó fűtés
- összközműves
- fedett terasz
A közelben, buszmegálló, bevásárlási lehetőség, óvoda, iskola minden elérhető, amire a hétköznapokban szüksége lehet, éttermek, csónakbérlés és kirándulási lehetőség várja az érdeklődőket, közel a városhoz, de mégis modern, vidékies hangulatban.
Ez az, amit keresett? Ne habozzon, a hét bármely napján elérhető vagyok telefonon és e-mailen is! Jöjjön, nézzük meg együtt és szeressen bele!
Amennyiben ajánlatom megfelelne az elvárásainak, de nem rendelkezik a kiválasztott ingatlan vételárával, a Credipass hitelügyintéző munkatársai díjmentesen biztosítják a legkedvezőbb, személyre szabott hitelkonstrukciót a kedves vevők számára.
- 30 cm vastag téglafalazat
- 10 cm szigetelés
- műanyag nyílászárók, redőny, szúnyogháló
- klíma
- fűtött garázs
- gázcirkó fűtés
- összközműves
- fedett terasz
A közelben, buszmegálló, bevásárlási lehetőség, óvoda, iskola minden elérhető, amire a hétköznapokban szüksége lehet, éttermek, csónakbérlés és kirándulási lehetőség várja az érdeklődőket, közel a városhoz, de mégis modern, vidékies hangulatban.
Ez az, amit keresett? Ne habozzon, a hét bármely napján elérhető vagyok telefonon és e-mailen is! Jöjjön, nézzük meg együtt és szeressen bele!
Amennyiben ajánlatom megfelelne az elvárásainak, de nem rendelkezik a kiválasztott ingatlan vételárával, a Credipass hitelügyintéző munkatársai díjmentesen biztosítják a legkedvezőbb, személyre szabott hitelkonstrukciót a kedves vevők számára.
Regisztrációs szám
DHZ023605
Az ingatlan adatai
Értékesités
eladó
Jogi státusz
használt
Jelleg
ház
Építési mód
tégla
Méret
78 m²
Bruttó méret
78 m²
Telek méret
500 m²
Terasz / erkély mérete
23 m²
Fűtés
Gáz cirkó
Belmagasság
270 cm
Lakáson belüli szintszám
1
Tájolás
Dél-nyugat
Állapot
Kiváló
Homlokzat állapota
Kiváló
Építés éve
2008
Fürdőszobák száma
1
Fekvés
udvari
Víz
Van
Gáz
Van
Villany
Van
Csatorna
Van
Helyiségek
nappali-konyha
27 m²
szoba
7.7 m²
szoba
7.5 m²
szoba
8.3 m²
fürdőszoba-wc
4.8 m²
wc
1.5 m²
közlekedő
5.7 m²
kamra
3.6 m²
veranda
23 m²
Joó Krisztina
Hitelszakértő